Enekullsvägen 62
Du har sökt denna lägenhet
Sista dagen att söka denna lägenhet är 19 april.
Ta bort min ansökanÄr du säker på att du vill ta bort din ansökan?
Antal rum: 2 rum fördelat på 45.0 m²
Hyra: 8 012 kr/mån
Inflyttning: 1 juli 2026
Våning: 5 av 5
Anmäl senast: 19 april
- Ålder är minst 18
- Ingen i hushållet röker
- Antal personer är högst 3
- Årsinkomst före skatt är minst 305400
- Områden är Kungälv / Ytterby
Rangordning: Ködagar hos Boplats .
Kötider i detta område Under de senaste 12 månaderna har 30 stycken liknande bostäder förmedlats i området. De har förmedlats med en genomsnittlig kötid på 15 år och 100 månader.
Du måste vara inloggad för att ansöka
Hyresvärdens beskrivning
Kom hem till Enekullen
Välkommen till ett hemtrevligt boende i en kvadratsmart och prisvärd bostad vid Enekullen, mitt emellan Kungälv och Ytterby.
Kommunikationerna är goda, och den närliggande busshållplatsen tar dig till Hjalmar Brantingsplatsen i Göteborg på 18 minuter och Nordstan under halvtimmen.
Läs mer om bostäderna här i vår Projektpresentation.
Visning av lägenheten kan vid önskemål ordnas i kommunikation med nuvarande hyresgäst. Du fattar i övrigt ditt beslut utifrån den information som finns i annonsen.
LÄGENHETEN
I lägenheten bor du i ett modernt hus nybyggt år 2020, med nya ytskikt och vitvaror.
Parkett och klinker i samtliga lägenheter och med hög kvalité på vitvaror. Smarta kökslösningar och andra praktiska ytor gör lägenheten mycket funktionell, inte minst med tanke på förvaringsmöjligheter. Lägenheten har tvättmaskin och torktumlare.
Lägenheten har fiberanslutning för TV, internet och telefoni från Tele2. TV-box med grundutbud ingår i hyran.
PARKERING
Det finns i dagsläget inga lediga parkeringsplatser på området. Sökande har möjlighet att ställa sig i parkeringskö, väntetiden är i nuläge ca ett år.
HYRESVÄRDENS KRAV
Det är förbjudet att röka i lägenheten och på området.
Hemförsäkring är obligatorisk.
Samtliga sökanden ska skriva "Intyg om stadigvarande boende"
Samtliga sökanden skall stå med på och underteckna hyreskontraktet. Hyresgästen skall sedan skriva sig och bosätta sig i den uthyrda bostadslägenheten.
1 betalningsanmärkning om max 5000 kr godkänns. Vid betalningsanmärkning är det krav på borgensman.
Hyresvärden godkänner tillsvidareanställning. Övriga anställningar godkänns med borgensman. Borgensman får ej ha betalningsanmärkning samt måste ha en årsinkomst om minst 4 ggr/årshyran.
Kontaktuppgifter till tidigare hyresvärd behöver presenteras, samt godkännande till denna om att referens kommer att tas.
En månadshyra i deposition, erläggs i samband med första månadshyran.
Beskrivning av området
Kungälv är den mysiga småstaden med närhet till Göteborg, havet, naturen och nöjen. Här är det enkelt att leva.
Vid Enekullen bor du bokstavligen granne med friluftsområdet Kastellegården med sina vackra stigar, utsiktsplatser och fornlämningar. Du har nära till Kungälv city med sina kullerstensgator eller Kongahälla Center för shopping. Åt andra hållet når du Ytterby med sin stadskärna och tågstation. Vill du åka in till Göteborg går du bara till den närliggande busshållplatsen (Rollsbovägen) och tar expressbussen så är du inne i Nordstan på under halvtimmen.
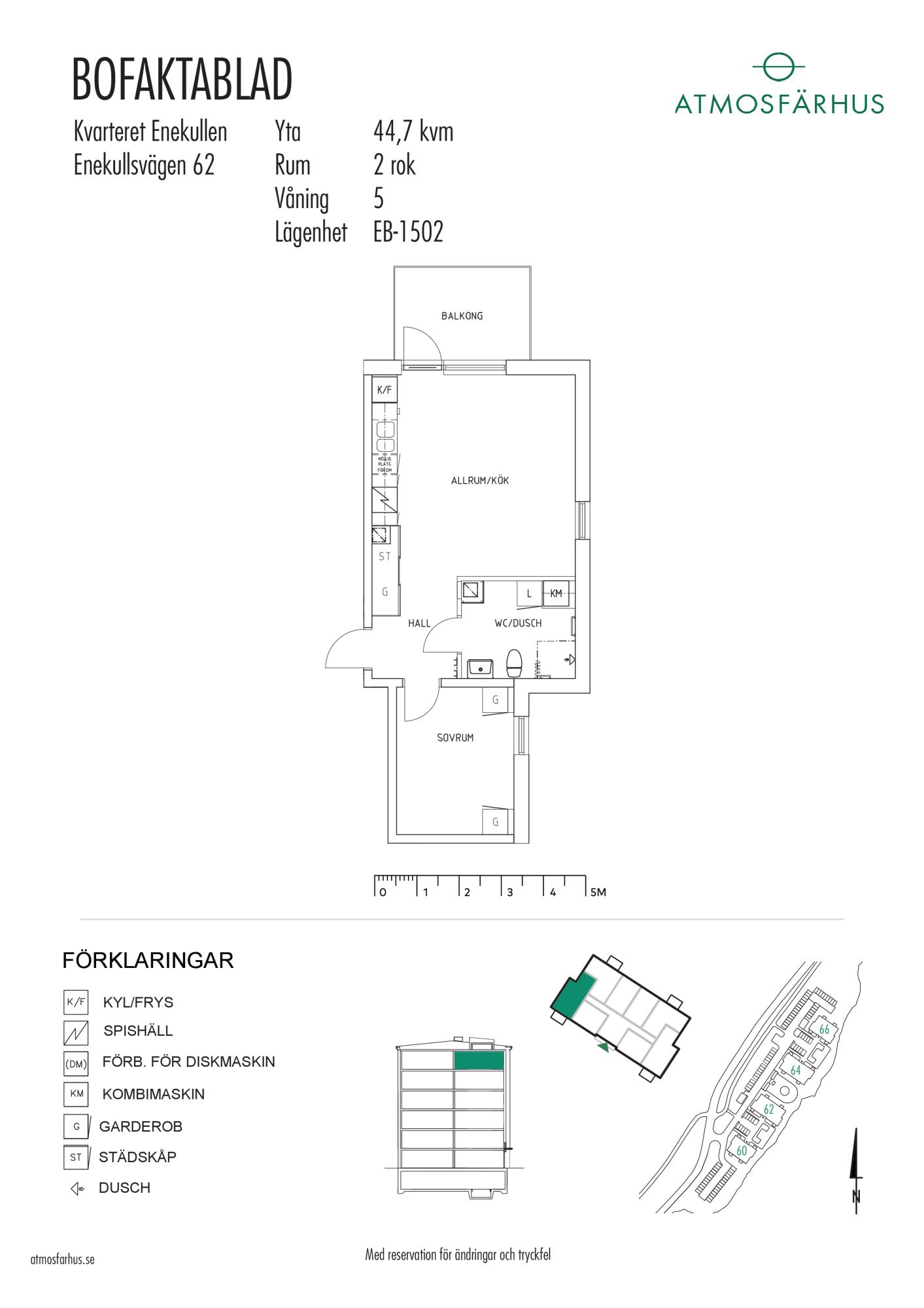
Planskiss
Viktigt om lägenheten
- Tidigare inflyttning möjligt
Lägenheten har
Vad ingår i hyran?
Karta
Så bestäms vem som får lägenheten
Läs mer om Boplats förmedlingsregler här.