Kvillepiren 12
Du har sökt denna lägenhet
Sista dagen att söka denna lägenhet är 19 april.
Ta bort min ansökanÄr du säker på att du vill ta bort din ansökan?
Antal rum: 1 rum fördelat på 29.0 m²
Hyra: 8 550 kr/mån
Inflyttning: 19 apr. 2026
Våning: 1 av 6
Anmäl senast: 19 april
Den här lägenheten hyrs ut med ett korttidsavtal utan besittningsrätt. Det betyder att du inte har någon rätt till förlängning av hyrestiden. Det datum avtalet mellan dig och hyresvärden går ut måste du därför flytta.
- Årsinkomst före skatt är minst 350000
- Huvudsaklig sysselsättning är något av Arbete, Studier, Pension
- Huvudsaklig inkomst är något av Tjänst (lön), Studiemedel, Pension, Näringsverksamhet
- Antal personer är högst 2
- Antal vuxna är högst 2
Rangordning: Ködagar hos Boplats .
Kötider i detta område Under de senaste 12 månaderna har 30 stycken liknande bostäder förmedlats i området. De har förmedlats med en genomsnittlig kötid på 15 år och 100 månader.
Du måste vara inloggad för att ansöka
Hyresvärdens beskrivning
Letar du efter boende i Göteborg?
Waterfront Cabins erbjuder fullt utrustade studios för dig - vare sig du är student, konsult eller behöver ett övergångsboende. Vi finns här för dig i alla faser i livet - oavsett om du önskar boka en kortare eller längre vistelse.
JUST NU HAR VI ETT APRIL-ERBJUDANDE:
Checka in hos oss i April och betala endast 285 kr per dag (cirka 8 550 kr/mån). Erbjudandet gäller till 1 juni. Vid längre vistelse gäller ordinarie pris från 10 000 kr per månad. Erbjudandet gäller endast nya kunder med incheckning under April och kan inte kombineras med andra kampanjer eller rabatter.
Vårt all-inclusive koncept inkluderar allt du behöver under din vistelse, såsom möbler, WiFi, el, värme, vatten och AC.
Deposition på 10500 kr och återställningsavgift på 1200 kr tillkommer.
Beskrivning av området
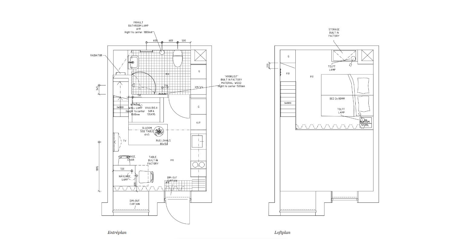
Planskiss
Viktigt om lägenheten
- Tidigare inflyttning möjligt
Lägenheten har
Vad ingår i hyran?
Karta
Hyresvärd
- Waterfront No 1 Cabins AB
- +46(0)31 12 21 93
- booking@waterfrontcabins.se
Så bestäms vem som får lägenheten
Läs mer om Boplats förmedlingsregler här.