Hällebergsgatan 8
Du har sökt denna lägenhet
Sista dagen att söka denna lägenhet är 2 februari.
Ta bort min ansökanÄr du säker på att du vill ta bort din ansökan?
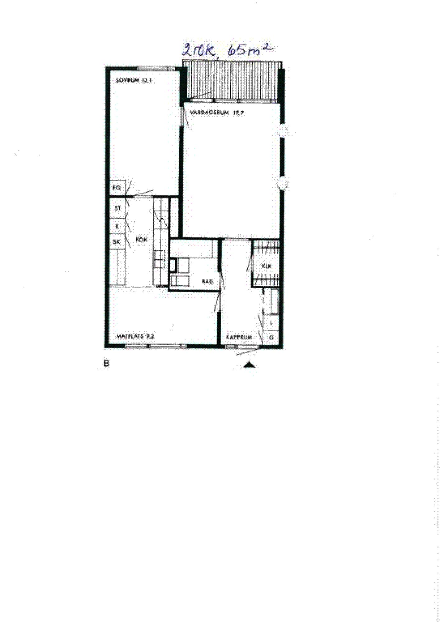
Antal rum: 2 rum fördelat på 65.0 m²
Hyra: 7 260 kr/mån
Inflyttning: 9 feb. 2026
Våning: 2 av 3
Anmäl senast: 2 februari
Den här lägenheten hyrs ut med ett korttidsavtal utan besittningsrätt. Det betyder att du inte har någon rätt till förlängning av hyrestiden. Det datum avtalet mellan dig och hyresvärden går ut måste du därför flytta.
- Antal vuxna är minst 1
- Antal barn är högst 3
- Antal personer är högst 4
Rangordning: Ködagar hos Boplats .
Kötider i detta område Under de senaste 12 månaderna har 30 stycken liknande bostäder förmedlats i området. De har förmedlats med en genomsnittlig kötid på 15 år och 100 månader.
Du måste vara inloggad för att ansöka
Hyresvärdens beskrivning
Korttidskontrakt!
Korttidskontrakt med en garanterad boende tid fram till 2027-01-31
Korttidskontrakt med en garanterad boende tid fram till 2027-01-31
Mer info om lägenheten
I denna lägenhet får det bo max 4 personer, inklusive barn.
Hall: Grön tapet, beige linoleummatta, två fasta garderober, klädkammare och hatthylla.
Kök: Äldre brun plastmatta med korkmönster, vita köksskåp, ljus bänkskiva i virrvarrmönster, vitt kakel och blå tapet. Diskmaskin
Badrum: Ljusblå väggar, vitt kakel runt badkar med ljusblå bård samt ljusblå våtrumsmatta.
Sovrum: Mörkare väggar och plastmatta.
Klädkammare: Vita väggar, plastmatta samt fasta hyllor med klädstång.
Vardagsrum: Fyrstavsparkett i ek och gråblå tapeter.
Balkong: Finns.
I denna lägenhet får det bo max 4 personer, inklusive barn.
Hall: Grön tapet, beige linoleummatta, två fasta garderober, klädkammare och hatthylla.
Kök: Äldre brun plastmatta med korkmönster, vita köksskåp, ljus bänkskiva i virrvarrmönster, vitt kakel och blå tapet. Diskmaskin
Badrum: Ljusblå väggar, vitt kakel runt badkar med ljusblå bård samt ljusblå våtrumsmatta.
Sovrum: Mörkare väggar och plastmatta.
Klädkammare: Vita väggar, plastmatta samt fasta hyllor med klädstång.
Vardagsrum: Fyrstavsparkett i ek och gråblå tapeter.
Balkong: Finns.
Hyra
Angiven hyra är 2025 års hyresnivå, hyrorna för 2026 är under förhandling.
Angiven hyra är 2025 års hyresnivå, hyrorna för 2026 är under förhandling.
Korttidskontrakt
Lägenheten hyrs ut tillfälligt på grund av planerad ombyggnad i området och du som hyresgäst har möjlighet att bo kvar tills dess att Förbo AB har behov av bostaden. Avtalet förlängs månadsvis om inte du eller hyresvärden säger upp hyresavtalet. Dock max 4 år.
Efter ombyggnationen har du ingen förtur till lägenheten.
Lägenheten hyrs ut i befintligt skick och enbart nödvändiga reparationer utförs. Det finns inte heller möjlighet att göra tillval via personliga hem .
Lägenheten hyrs ut tillfälligt på grund av planerad ombyggnad i området och du som hyresgäst har möjlighet att bo kvar tills dess att Förbo AB har behov av bostaden. Avtalet förlängs månadsvis om inte du eller hyresvärden säger upp hyresavtalet. Dock max 4 år. Efter ombyggnationen har du ingen förtur till lägenheten. Lägenheten hyrs ut i befintligt skick och enbart nödvändiga reparationer utförs. Det finns inte heller möjlighet att göra tillval via personliga hem .
Om området
Området är vidsträckt och trevåningshusen ligger bredvid varandra med gott om plats mellan husen som ger ett luftigt och lummigt intryck. Utsikten från vissa balkonger erbjuder vackra naturscener. Lägenheterna är rymliga och välplanerade, och utgörs framförallt av två- och trerummare, men det finns också ett antal fyror i två plan. Läs mer på förbo.se.
För närvarande pågår en omfattande renovering av området som kommer att sträcka sig över flera år framåt. Under denna tid kan viss störning förekomma, men målsättningen är att skapa en ännu mer trivsam och modern boendemiljö för de boende
Området är vidsträckt och trevåningshusen ligger bredvid varandra med gott om plats mellan husen som ger ett luftigt och lummigt intryck. Utsikten från vissa balkonger erbjuder vackra naturscener. Lägenheterna är rymliga och välplanerade, och utgörs framförallt av två- och trerummare, men det finns också ett antal fyror i två plan. Läs mer på förbo.se.
För närvarande pågår en omfattande renovering av området som kommer att sträcka sig över flera år framåt. Under denna tid kan viss störning förekomma, men målsättningen är att skapa en ännu mer trivsam och modern boendemiljö för de boende
Beskrivning av området
Om området
Planskiss
Viktigt om lägenheten
Lägenheten har
Vad ingår i hyran?
Karta
Hyresvärd
- Förbo AB
- 031-7455000
- info@foerbo.se
Så bestäms vem som får lägenheten
Läs mer om Boplats förmedlingsregler här.