Hällebergsgatan 66
Du har sökt denna lägenhet
Sista dagen att söka denna lägenhet är 18 januari.
Ta bort min ansökanÄr du säker på att du vill ta bort din ansökan?
Antal rum: 3 rum fördelat på 81.0 m²
Hyra: 8 811 kr/mån
Inflyttning: 9 feb. 2026
Våning: 1 av 3
Anmäl senast: 18 januari
Den här lägenheten hyrs ut med ett korttidsavtal utan besittningsrätt. Det betyder att du inte har någon rätt till förlängning av hyrestiden. Det datum avtalet mellan dig och hyresvärden går ut måste du därför flytta.
- Antal vuxna är minst 1
- Antal barn är högst 4
- Antal personer är högst 5
Rangordning: Ködagar hos Boplats .
Kötider i detta område Under de senaste 12 månaderna har 30 stycken liknande bostäder förmedlats i området. De har förmedlats med en genomsnittlig kötid på 15 år och 100 månader.
Du måste vara inloggad för att ansöka
Hyresvärdens beskrivning
Korttidskontrakt med en garanterad boende tid fram till 2027-01-31
Information om lägenheten
Förbos lägenhetsnummer: 4303 00520 Lantmäterinummer: 1003
I denna lägenhet får det bo max 5 personer, inklusive barn.
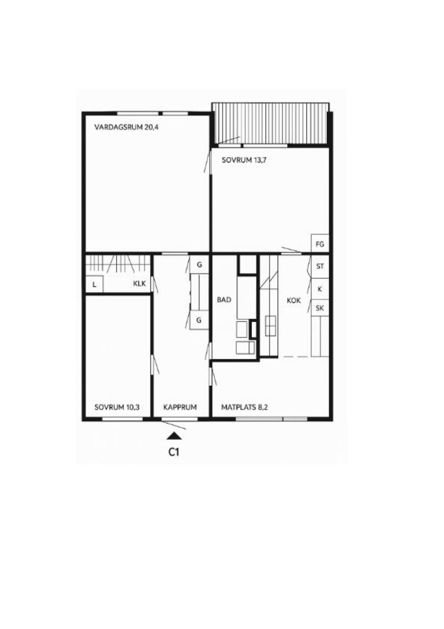
Lägenheten kommer inte att visas. Det betyder att du behöver ta ställning till om du vill ha bostaden endast utifrån informationen i annonsen, planritningen samt bilder. Planritningen är spegelvänd.
Hall
Ljusa tapeter, eklaminat, två garderober och hatthylla.
Kök
Ljusa tapeter och eklaminat. Vita köksluckor, mörkgrå bänkskiva och ljust kakel. Utrustat med spis med häll och varmluftsugn, kolfilterfläkt samt kyl/frys.
Badrum
Ljusa våtrumsmattor på golv och väggar. Duschplats, badrumsskåp, spegel samt tvättpelare.
Sovrum 1
Ljusgrå tapet och eklaminat. Garderob saknas men kan åtgärdas av Förbo.
Sovrum 2
Ljusa tapeter och eklaminat. Fönster mot innergård.
Klädkammare
Blåmålade väggar, laminatgolv, hylla med klädstång samt garderob.
Vardagsrum
Ljus, något sliten tapet och eklaminat. Fönster mot naturområde.
Balkong
Balkong i sydvästläge mot naturområde
Förbos lägenhetsnummer: 4303 00520 Lantmäterinummer: 1003
I denna lägenhet får det bo max 5 personer, inklusive barn.
Lägenheten kommer inte att visas. Det betyder att du behöver ta ställning till om du vill ha bostaden endast utifrån informationen i annonsen, planritningen samt bilder. Planritningen är spegelvänd.
Hall
Ljusa tapeter, eklaminat, två garderober och hatthylla.
Kök
Ljusa tapeter och eklaminat. Vita köksluckor, mörkgrå bänkskiva och ljust kakel. Utrustat med spis med häll och varmluftsugn, kolfilterfläkt samt kyl/frys.
Badrum
Ljusa våtrumsmattor på golv och väggar. Duschplats, badrumsskåp, spegel samt tvättpelare.
Sovrum 1
Ljusgrå tapet och eklaminat. Garderob saknas men kan åtgärdas av Förbo.
Sovrum 2
Ljusa tapeter och eklaminat. Fönster mot innergård.
Klädkammare
Blåmålade väggar, laminatgolv, hylla med klädstång samt garderob.
Vardagsrum
Ljus, något sliten tapet och eklaminat. Fönster mot naturområde.
Balkong
Balkong i sydvästläge mot naturområde
Korttidskontrakt med en garanterad boende tid fram till 2027-01-31
Lägenheten hyrs ut på korttidskontrakt med en garanterad boendetid tom 2027-01-31.
Lägenheten hyrs ut på korttidskontrakt med en garanterad boendetid tom 2027-01-31.
Hyra
Angiven hyra är 2025 års hyresnivå, hyrorna för 2026 är under förhandling.
Angiven hyra är 2025 års hyresnivå, hyrorna för 2026 är under förhandling.
Korttidskontrakt
Beskrivning av området
Om Björkås
Planskiss
Viktigt om lägenheten
- Tidigare inflyttning möjligt
Lägenheten har
Vad ingår i hyran?
Karta
Hyresvärd
- Förbo AB
- 031-7455000
- info@foerbo.se
Så bestäms vem som får lägenheten
Läs mer om Boplats förmedlingsregler här.