Bergmansgatan 29
Du har sökt denna lägenhet
Sista dagen att söka denna lägenhet är 4 januari.
Ta bort min ansökanÄr du säker på att du vill ta bort din ansökan?
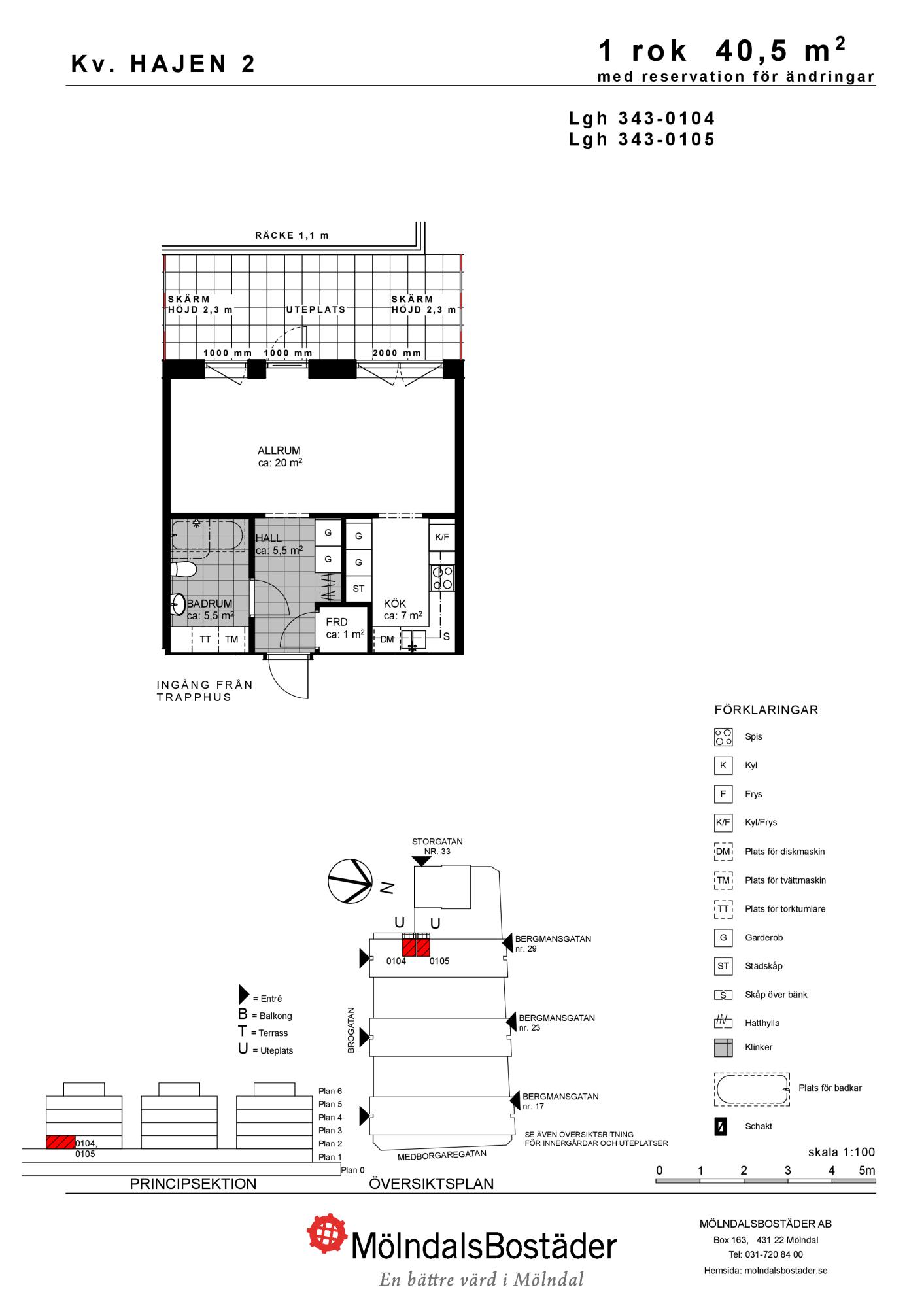
Antal rum: 1 rum fördelat på 40.5 m²
Hyra: 8 459 kr/mån
Inflyttning: 1 mars 2026
Våning: 2 av 6
Anmäl senast: 4 januari
- Årsinkomst före skatt är minst 153000
- Ålder är minst 18
Rangordning: Ködagar hos Boplats .
FÖRETRÄDE bland de som har anmält intresse
- Varför vill du flytta? är Evakuering
- Nuvarande hyresvärd är Mölndalsbostäder
- Nuvarande boendeform är Hyresrätt
- Dagar hos hyresvärden är minst 1
Rangordning: Dagar hos hyresvärden .
Kötider i detta område Under de senaste 12 månaderna har 30 stycken liknande bostäder förmedlats i området. De har förmedlats med en genomsnittlig kötid på 15 år och 100 månader.
Du måste vara inloggad för att ansöka
Hyresvärdens beskrivning
Mölndalsbostäders hyresgäster som bor på Torallagatan och Piltegatan har förtur till lägenheten då de måste evakueras på grund av en kommande renovering i fastigheten.
Observera att förtur till bostad inte gäller för hyresgäster som bor med korttidsavtal eller så kallat rivningskontrakt. Hyresgäster med sådana avtal behöver därför söka bostad på samma villkor som övriga sökande via vår ordinarie bostadskö.
Om ingen från Torallagatan eller Piltegatan söker lägenheten så går den vidare i vanlig turordning enligt vår uthyrningspolicy. Läs mer på vår hemsida, https://molndalsbostader.se/kundservice/uthyrningspolicy/
Information om pågående renoveringsprojekt
Mölndalsbostäder arbetar kontinuerligt med att förbättra våra fastigheter för att skapa trygga och moderna boendemiljöer. Ibland innebär detta att vi genomför renoveringsprojekt som kan påverka vissa områden.
För aktuell information om våra renoveringsprojekt, besök: https://www.molndalsbostader.se/bo-hos-oss/renovering/
Om lägenheten
I lägenheten finns genomgående ekparkett, vitmålade väggar i nyans NCS S 0500 och fönsterbänkar av marmor. Lägenheterna är förberedda för diskmaskin, tvättmaskin och kondenstorktumlare. Separat tvättstuga finns på den gemensamma gården.
Fastigheten är tillgänglighetsanpassad.
Beskrivning av området
Om Mölndals innerstad
Välkommen till Mölndals innerstad och till kvarteret Hajen. Mölndal genomgår en stor förändring som omvandlar centrala Mölndal till en levande och attraktiv stad med ett stort utbud av handel och mötesplatser. I direkt anslutning till Hajen ligger stadsbiblioteket samt Gallerian.
Parkering
Parkering erbjuds i parkeringshuset i Mölndals Galleria. För att köpa parkeringstillstånd för dig som är boende på Storgatan 31 eller Bergmansgatan 6-29 måste man vara folkbokförd på adressen och bilen måste vara registrerad på den sökande.
Kostnaden för tillståndet kan du se på Mölndals Parkerings hemsida . De boende köper tillståndet som heter Gråsejen/Hajen (boende). Vid frågor kontakta Mölndals Parkering.
Kommunikationer
Utmärkta kommunikationer i form av spårvagn, buss och tåg med Västtrafiks resecentrum i direkt anslutning.
Lägenheten har
Vad ingår i hyran?
Karta
Hyresvärd
- Mölndalsbostäder
- 031-720 84 00
- kundcenter@molndalsbostader.se
Så bestäms vem som får lägenheten
Läs mer om Boplats förmedlingsregler här.