Solhöjden 3B
Du har sökt denna lägenhet
Sista dagen att söka denna lägenhet är 3 november.
Ta bort min ansökanÄr du säker på att du vill ta bort din ansökan?
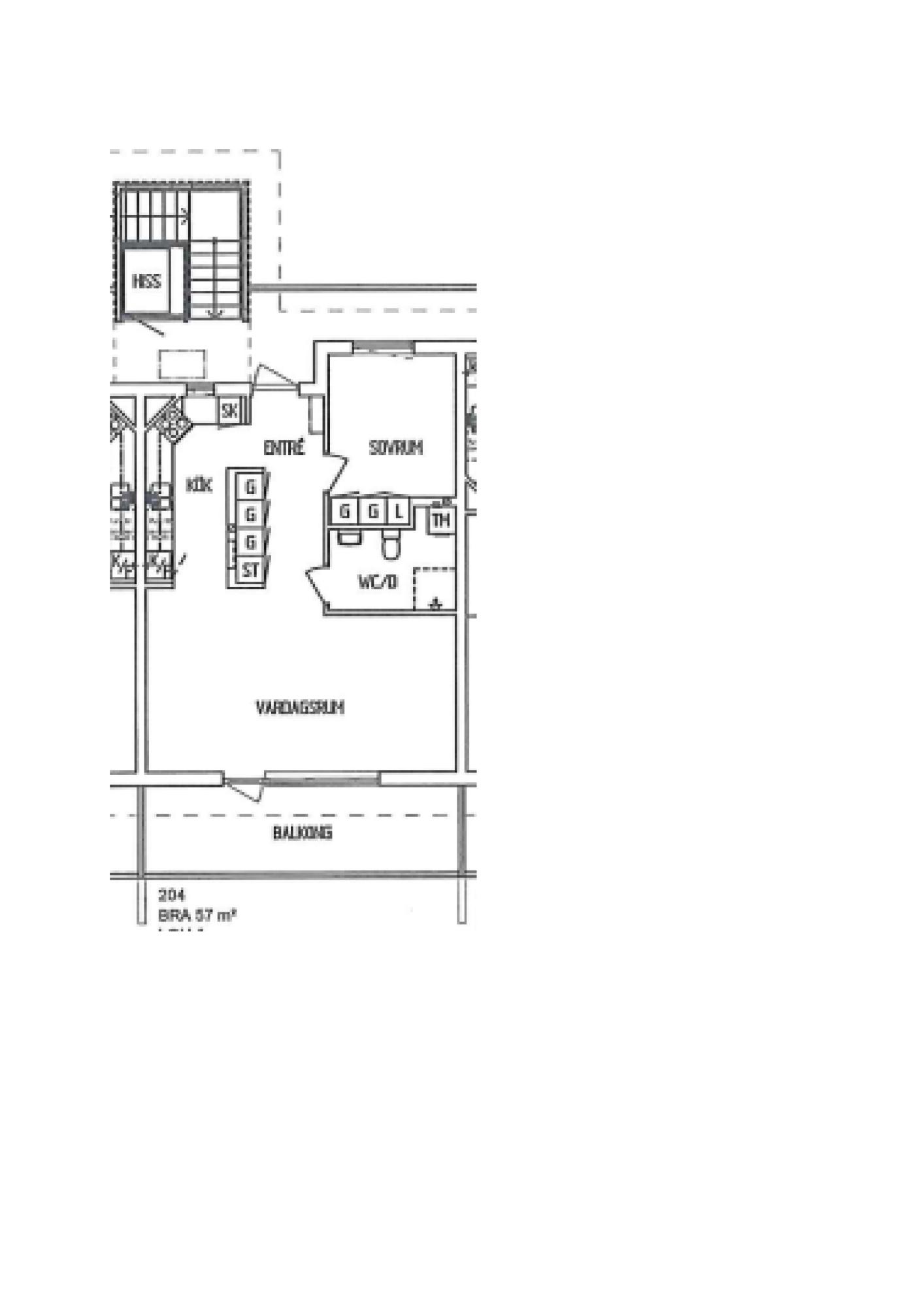
Antal rum: 2 rum fördelat på 57.0 m²
Hyra: 9 145 kr/mån
Inflyttning: 1 dec. 2025
Våning: 1 av 1
Anmäl senast: 3 november
- Ålder är minst 70
- Årsinkomst före skatt är minst 219500
Rangordning: Ködagar hos Boplats .
FÖRETRÄDE bland de som har anmält intresse
- Poäng hos hyresvärden är minst 1
Rangordning: Poäng hos hyresvärden .
Kötider i detta område Under de senaste 12 månaderna har 30 stycken liknande bostäder förmedlats i området. De har förmedlats med en genomsnittlig kötid på 15 år och 100 månader.
Du måste vara inloggad för att ansöka
Hyresvärdens beskrivning
Varmt välkomna till denna trevliga lägenheten på 2 rum och kök. Lägenheten ligger en trappa upp. I lägenheten finns plastgolv och väggarna är i vitt. I lägenheten finns fiberanslutning och vi erbjuder alla våra hyresgäster ett gratis grundutbud på TV.
Vad innebär poäng hos Öckerö Fastigheter?
Innan Öckerö Fastigheter gick med i Boplats hade man en egen kö. De sökande som stod i denna kö har fått ta med sig sina poäng/ködagar till Boplats.
Dessa poäng går före Boplats poäng/ködagar.
När man tecknar ett avtal hos Öckerö Fastigheter försvinner samtliga poäng hos både Öckerö Fastigheter och Boplats. Nya dagar erhålls sedan bara hos Boplats.
Beskrivning av området
Planskiss
Viktigt om lägenheten
Lägenheten har
Vad ingår i hyran?
Karta
Så bestäms vem som får lägenheten
Läs mer om Boplats förmedlingsregler här.