Lejonstensgatan 14 C
Du har sökt denna lägenhet
Sista dagen att söka denna lägenhet är 3 maj.
Ta bort min ansökanÄr du säker på att du vill ta bort din ansökan?
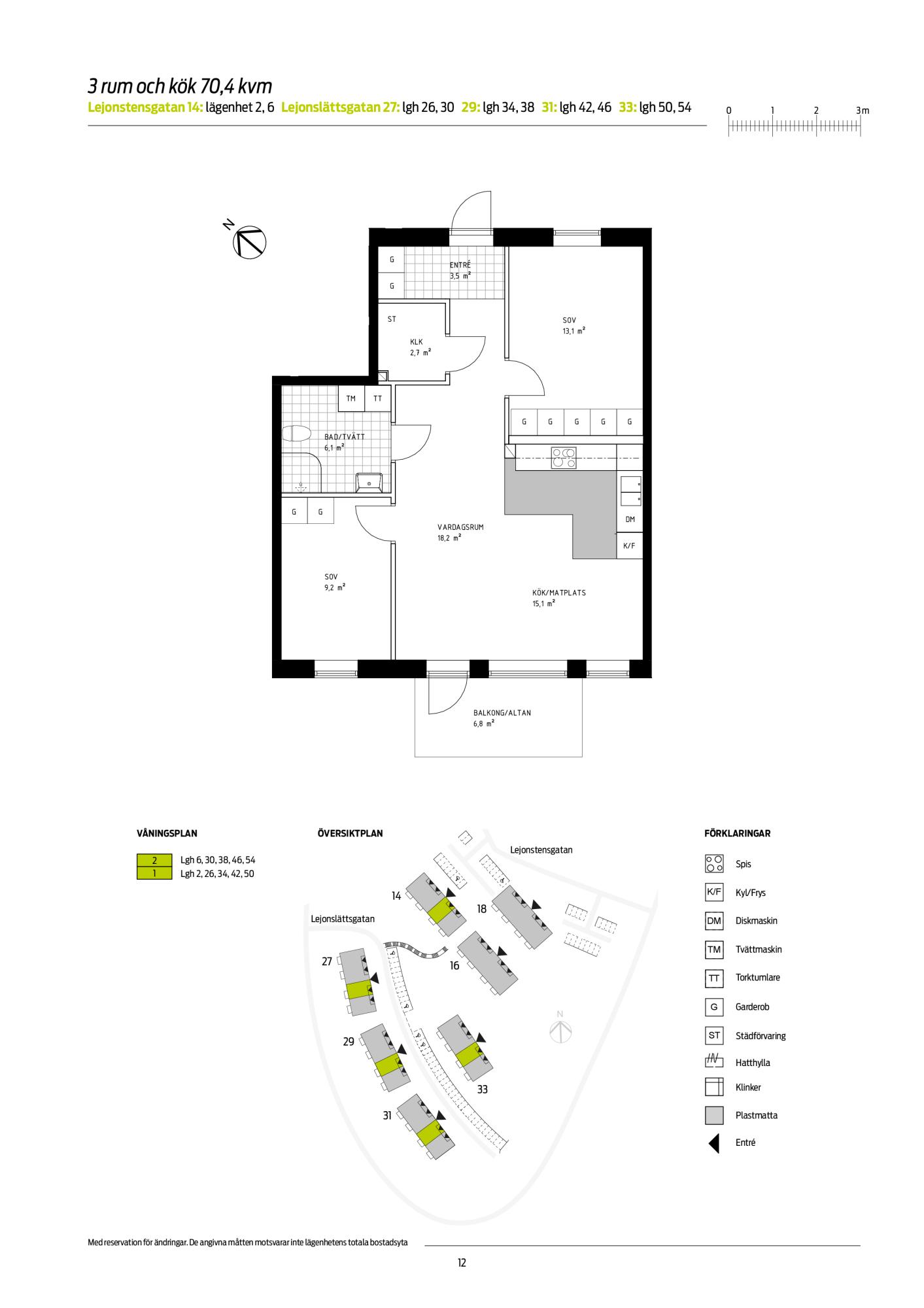
Antal rum: 3 rum fördelat på 70.4 m²
Hyra: 12 070 kr/mån
Inflyttning: 1 aug. 2026
Våning: 2 av 2
Anmäl senast: 3 maj
- Årsinkomst före skatt är minst 217266
- Ålder är minst 18
Rangordning: Ködagar hos Boplats .
FÖRETRÄDE bland de som har anmält intresse
-
I första hand
- Varför vill du flytta? är Evakuering
- Nuvarande hyresvärd är Mölndalsbostäder
- Nuvarande boendeform är Hyresrätt
- Poäng hos hyresvärden är minst 1
Rangordning: Poäng hos hyresvärden .
-
I andra hand
- Nuvarande hyresvärd är Mölndalsbostäder
- Nuvarande boendeform är Hyresrätt
- Poäng hos hyresvärden är minst 1095
Rangordning: Poäng hos hyresvärden .
Kötider i detta område Under de senaste 12 månaderna har 30 stycken liknande bostäder förmedlats i området. De har förmedlats med en genomsnittlig kötid på 15 år och 100 månader.
Du måste vara inloggad för att ansöka
Hyresvärdens beskrivning
I över hundra år har Mölndalsbostäder bidragit till stadens utveckling genom att förvalta, utveckla och bygga nya hem för mölndalsborna. Vårt uppdrag är att tillföra Mölndal hållbara och attraktiva bostäder för människor i livets alla skeden. Ett bekymmersfritt boende utan risk och med möjlighet att påverka.
Mölndalsbostäders hyresgäster som bor på Torallagatan och Piltegatan har förtur till lägenheten då de måste evakueras på grund av en kommande renovering i fastigheten.
Observera att förtur till bostad inte gäller för hyresgäster som bor med korttidsavtal eller så kallat rivningskontrakt. Hyresgäster med sådana avtal behöver därför söka bostad på samma villkor som övriga sökande via vår ordinarie bostadskö.
Om ingen från Torallagatan eller Piltegatan söker lägenheten så går den vidare i vanlig turordning enligt vår uthyrningspolicy. Läs mer på vår hemsida, https://molndalsbostader.se/kundservice/uthyrningspolicy/
Om lägenheten
I lägenheten finns ekparkett, plastmatta i kök och klinker i hall och badrum. Vitmålade väggar och fönsterbänkar av natursten. Lägenheterna är utrustade med tvättmaskin, torktumlare och diskmaskin från Electrolux. Kök och badrumsinredning i vitt är från Vedum. Alla lägenheter har balkong eller uteplats.
Det finns gott om eluttag för att minimera lösa sladdar. Fiberanslutning finns för tv, telefoni och dator. Avtal och abonnemang för tv och telefoni träffas mellan hyresgäst och leverantör genom Mölndalsbostäders kommunikationsoperatör. Kallförråd till varje bostad finns i separata byggnader.
Beskrivning av området
Kikås ligger i östra Mölndal, omgiven av skog, berg och fina strövområden. I närheten finns Gunnebo Slott och sjöarna Långvattnet, Horsikan och Stensjön.
I området finns förskola och närhet till skola i angränsande delar av Mölndal. Det finns goda kollektivtrafikförbindelser och det är enkelt att ta sig till Mölndals innerstad med shopping, service, restauranger, gym, bibliotek och kultur. Där ligger också Mölndals resecentrum med täta förbindelser till hela regionen.
Parkering
Parkeringsmöjligheterna i området är begränsat till 1 plats per hushåll. Parkeringar i området hyrs ut digital av Mölndals Parkering. Har du frågor om kostnader och möjligheter till parkering, vänligen ta kontakt med Mölndals Parkering.
Lägenheten har
Vad ingår i hyran?
Karta
Hyresvärd
- Mölndalsbostäder
- 031-720 84 00
- kundcenter@molndalsbostader.se
Så bestäms vem som får lägenheten
Läs mer om Boplats förmedlingsregler här.