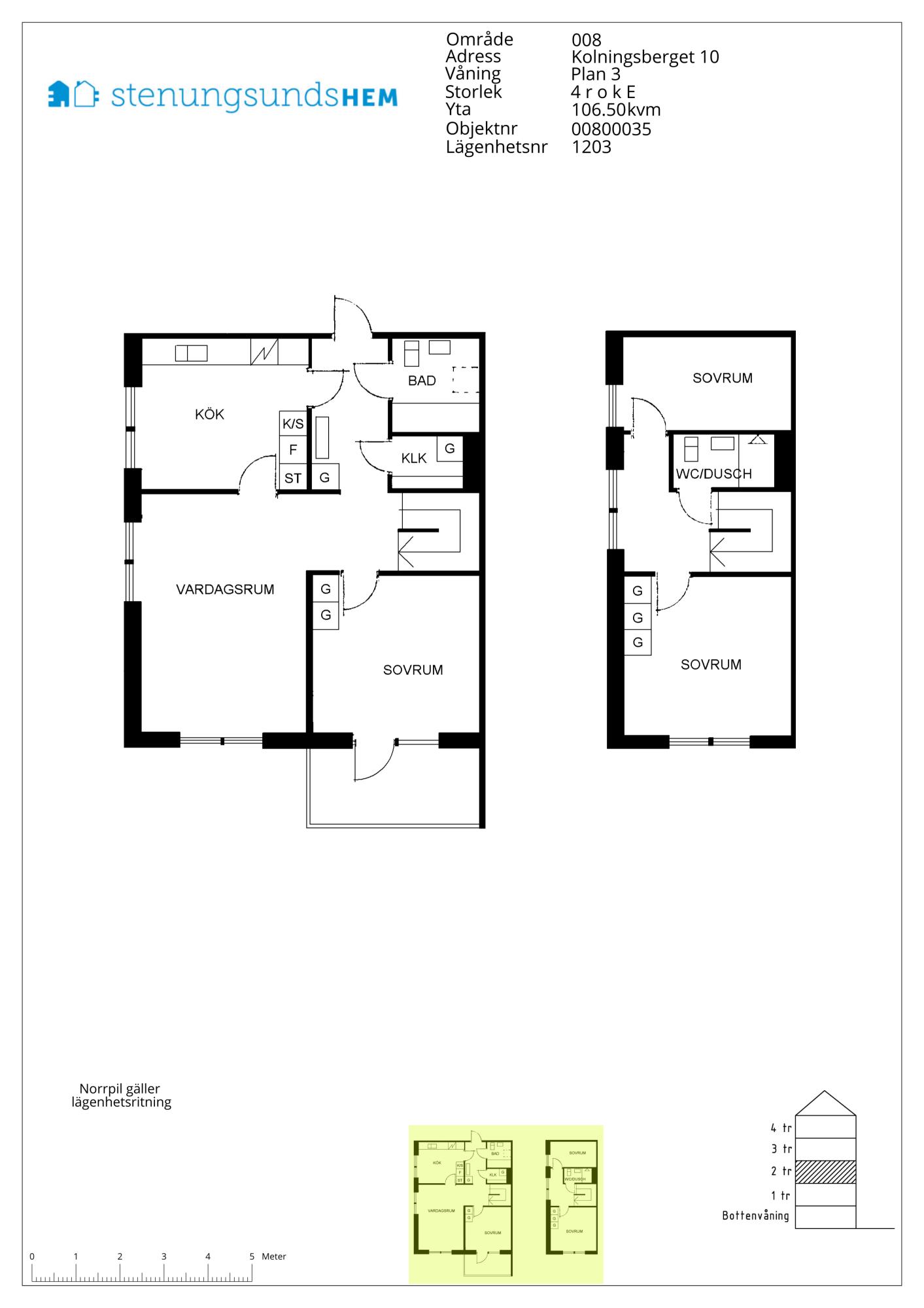
Kolningsberget 10
Du har sökt denna lägenhet
Sista dagen att söka denna lägenhet är 5 maj.
Ta bort min ansökanÄr du säker på att du vill ta bort din ansökan?
Antal rum: 4 rum fördelat på 106.0 m²
Hyra: 11 146 kr/mån
Inflyttning: 1 aug. 2026
Våning: 3
Anmäl senast: 5 maj
- Antal personer är högst 6
- Årsinkomst före skatt är minst 267504
Rangordning: Ködagar hos Boplats .
FÖRETRÄDE bland de som har anmält intresse
- Dagar hos hyresvärden är minst 1
Rangordning: Dagar hos hyresvärden .
Kötider i detta område Under de senaste 12 månaderna har 30 stycken liknande bostäder förmedlats i området. De har förmedlats med en genomsnittlig kötid på 15 år och 100 månader.
Du måste vara inloggad för att ansöka
Hyresvärdens beskrivning
Lägenheterna på Kolningsberget ligger dels i radhusliknande hus i två plan, dels i fyra- och femvåningars punkthus. Lägenheterna i markplan har uteplats och husen är omgivna av grönytor med träd, gräsmattor och bergsknallar. Radhusen är populära hos barnfamiljer. I de över lägenheterna i punkthuset har du en fantastisk utsikt över centrum och Hakefjorden.
Lägenhetsfakta:
- Antal lägenheter: 90
- Byggnadsår: 1984
- Hustyp: radhusliknande hus i två plan samt fyra- och femvåningars punkthus
- Antal rum: 2-4
- Hiss: Ja, i punkthusen
- I området finns en samlingslokal som kan hyras av hyresgästerna
- Adress: Kolningsberget
Byggår 1984
Beskrivning av området
Keplers Gård, Kolningsberget och Solgårdsterrasen ligger alla i direkt anslutning till varandra men har olika karaktärer på fastigheter och innergårdar. Mellan husen finns förutom gräsmattor mycket träd och bergsknallar. Från området har du utsikt över centrum och Hakefjorden. Till centrum; med shopping, restauranger, bibliotek, biograf och småbåtshamn, går du på mindre än en kvart. Expressbussar till och från Göteborg eller öarna går bara tio minuters gångväg bort.
I närheten:
- Brudhammars förskola: 6 min gångväg
- Kulturhuset Fregatten: 12 min gångväg
- Stenungstorg: 14 min gångväg
- ICA Supermarket Stenungsund: 9 min gångväg
- Stenungsund tåg- och busstation: 15 min gångväg
- Kristinedalskolan (F-9): 3 min cykelväg
- Skejtpark: 3 min cykelväg
- Stenungsund Arena: 8 min cykelväg
- Nösnäsgymnasiet: 8 min cykelväg
Planskiss
Lägenheten har
Vad ingår i hyran?
Karta
Hyresvärd
- Stenungsundshem
- 0303-686 00
- info@stenungsundshem.se
Så bestäms vem som får lägenheten
Läs mer om Boplats förmedlingsregler här.