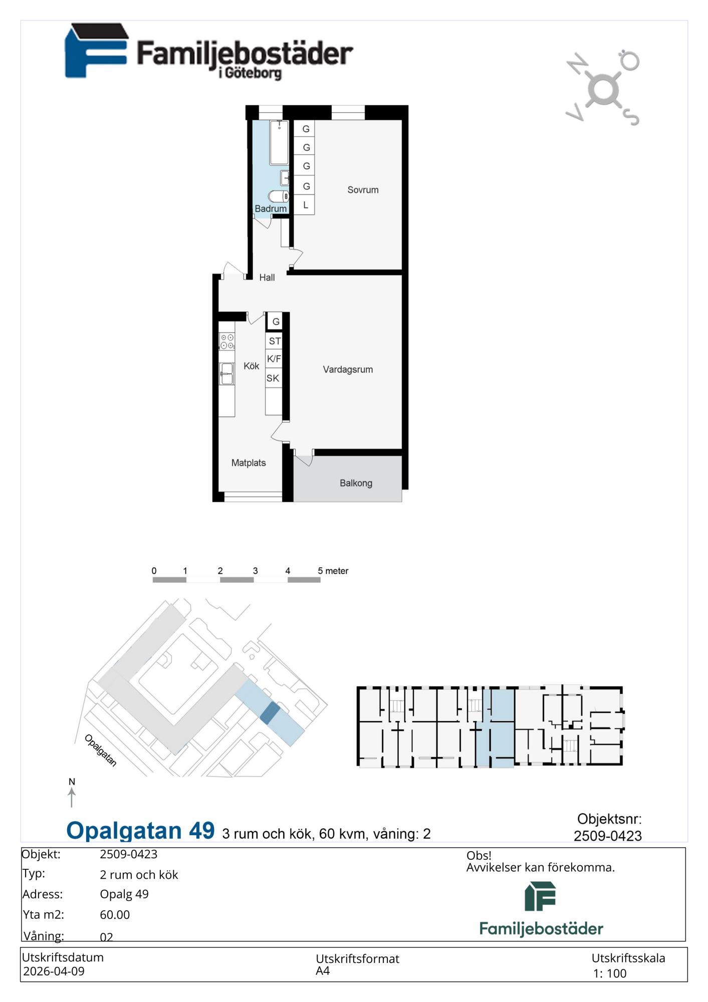
Opalgatan 49
Du har sökt denna lägenhet
Sista dagen att söka denna lägenhet är 12 april.
Ta bort min ansökanÄr du säker på att du vill ta bort din ansökan?
Antal rum: 2 rum fördelat på 60.0 m²
Hyra: 6 630 kr/mån
Inflyttning: 1 juli 2026
Våning: 2 av 3
Anmäl senast: 12 april
- Antal personer är högst 4
- Antal vuxna är minst 1
- Antal vuxna är högst 4
- Antal barn är minst 0
- Antal barn är högst 3
- Ålder är minst 18
- Huvudsaklig inkomst är något av Studiemedel, Näringsverksamhet, A-kassa, Tjänst (lön), Pension
Rangordning: Ködagar hos Boplats .
Kötider i detta område Under de senaste 12 månaderna har 30 stycken liknande bostäder förmedlats i området. De har förmedlats med en genomsnittlig kötid på 15 år och 100 månader.
Du måste vara inloggad för att ansöka
Hyresvärdens beskrivning
Lägenheten annonseras med inkomstkrav. För att kunna söka lägenheten måste du uppvisa intyg på skattepliktig inkomst eller studiestöd från CSN. Denna 2 rums lägenhet på 2:a våning är belägen i Tynnered, för mer information om området se områdesbeskrivning nedan. Badrum med badkar. Kök finns förberett för diskmaskin (Hyresgäst ansvarar för inköp & installation av maskin). Förråd i källare. För bilen finns garage med tillståndsparkering under hela gården, som söks via Parkering Göteborg. Bilfria och stora innergårdar som erbjuder möjlighet till grillning, odling, lek & träning. Nära till skola, förskola samt service & kollektivtrafik vid Opaltorget. Lägenheterna har äldre standard där skicket kan variera & har rustats upp för ökad trygghet och trivsel. Denna lägenhet söks på planlösning. Om du som sökande går vidare i processen och blir aktuell för ett erbjudande kommer det att erbjudas en fysisk visning.
Beskrivning av området
Välkommen till Tynnered! Området närmast Opaltorget består av fyravåningshus i rött tegel och med drag av 1950-tal. De flesta lägenheter har tre eller fyra rum och kök. Goda förvaringsutrymmen och välplanerade bostäder bidrar till trivseln. Här är nära till Opaltorget med stor livsmedelsbutik, apotek, vårdcentral och bra kollektivtrafik. Läget ligger endast en cykeltur från havet och en kort spårvagnstur från Frölunda torg, Linnégatan och City. Trygghetsåtgärder som mer och bättre utomhusbelysning har installerats och på entréer finns nu porttelefon och elektroniska lås. Alla gemensamma utrymmen har fått beröringsfria lås och branddörrar med fönster i.
Lägenheten har
Vad ingår i hyran?
Karta
Hyresvärd
- Familjebostäder i Göteborg AB
- 031-7316700
- info@familjebostader.se
Så bestäms vem som får lägenheten
Läs mer om Boplats förmedlingsregler här.