Knapebacken 27
Du har sökt denna lägenhet
Sista dagen att söka denna lägenhet är 21 april.
Ta bort min ansökanÄr du säker på att du vill ta bort din ansökan?
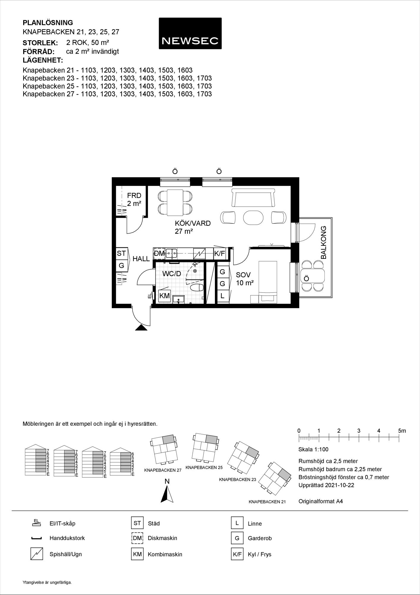
Antal rum: 2 rum fördelat på 50.0 m²
Hyra: 10 024 kr/mån
Inflyttning: 1 juli 2026
Våning: 3 av 7
Anmäl senast: 21 april
- Antal barn är högst 1
- Antal vuxna är högst 2
- Ingen i hushållet röker
- Huvudsaklig sysselsättning är något av Arbete, Studier, Pension
- Huvudsaklig inkomst är något av Tjänst (lön), Pension, Studiemedel
- Årsinkomst före skatt är minst 360870
Rangordning: Ködagar hos Boplats .
Kötider i detta område Under de senaste 12 månaderna har 30 stycken liknande bostäder förmedlats i området. De har förmedlats med en genomsnittlig kötid på 15 år och 100 månader.
Du måste vara inloggad för att ansöka
Hyresvärdens beskrivning
Välkommen till Knapebacken!
Lägenheterna på Knapebacken håller en god standard både vad gäller materialval och vitvaror. I badrummen finns kombinerad tvättmaskin/torktumlare och köken är utrustade med diskmaskin. Badrummen är helkaklade, övriga rum har parkettgolv och är målade i ljus kulör.
Möjlighet till parkering finns, avtal tecknas separat. I dagsläget är det längre kötid för att få en parkeringsplats. I samband med inflyttningen erbjuder hyresvärden ett 90-dagars-periodkort hos Västtrafik, som är giltigt för en person i hushållet.
Bilderna i annonsen är exempelbilder, alla lägenheter har samma materialval.
Hyresvärdens krav:
- Att du är fastanställd, studerar eller är pensionerad.
- Att du ej innehar betalningsanmärkningar.
- Att du tecknar hemförsäkring från och med kontraktsstart.
- Att lägenheten är din permanenta bostad.
Övrigt
- Hyresvärden godkänner ej två kontraktsinnehavare om inte båda två, sammankopplat sökt lägenheten (medsökande).
- Det är ej tillåtet att tillgodoräkna en annan persons ködagar.
- Enbart den som avser att stadigvarande bo i bostaden skall stå som kontraktsinnehavare.
- Hyresvärden har visningskrav. Detta innebär att du inte kan bli erbjuden lägenheten om du blivit inbjuden till visning och inte dyker upp på denna.
- Utöver hyran tillkommer kostnad för hushållsel och varmvatten. Varmvatten debiteras efter förbrukning, elavtal tecknas på egen hand av hyresgästen.
- Hyran avser 2025-års hyresnivå.
Beskrivning av området
Sisjödal är beläget i stadsdelen Askim i sydvästra Göteborg och ligger mitt emellan skog, hav och shopping. Du når enkelt flertalet av Göteborgs stadsdelar med kollektivtrafiken. En kort promenad tar dig till Sisjöns stora handelsområde och du har cykelavstånd till havsbad.
Planskiss
Lägenheten har
Vad ingår i hyran?
Karta
Så bestäms vem som får lägenheten
Läs mer om Boplats förmedlingsregler här.