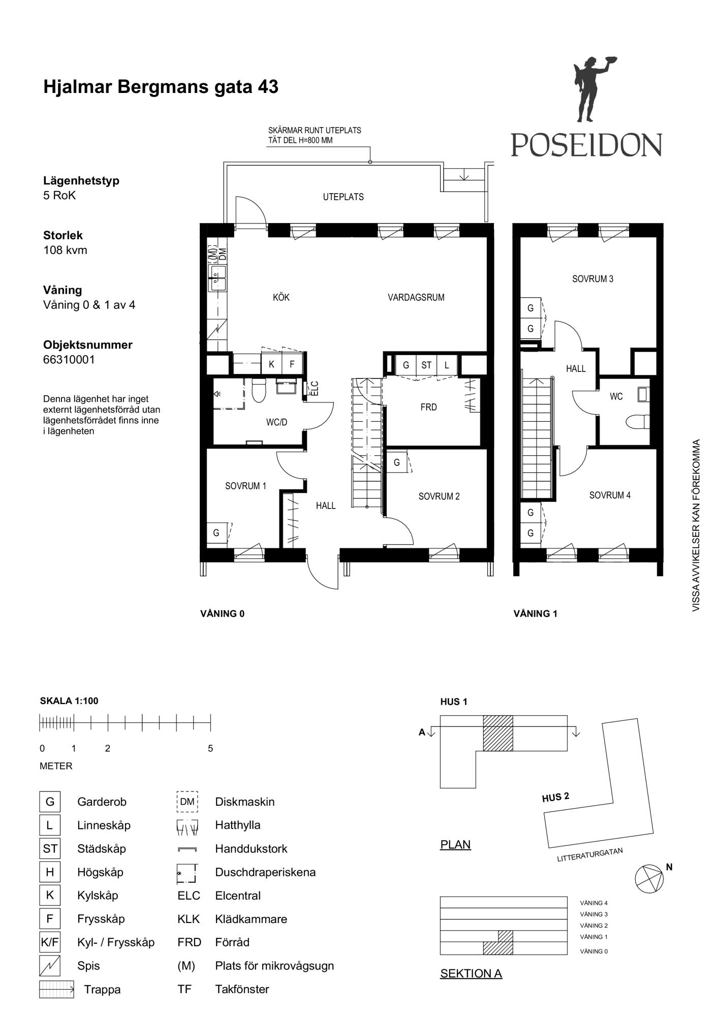
Hjalmar Bergmans gata 43
Backa, Norra Hisingen, Göteborg
Du har sökt denna lägenhet
Sista dagen att söka denna lägenhet är 11 april.
Ta bort min ansökanÄr du säker på att du vill ta bort din ansökan?
Antal rum: 5 rum fördelat på 108.0 m²
Hyra: 17 649 kr/mån
Inflyttning: 1 sep. 2026
Våning: 0 av 1
Anmäl senast: 11 april
Tillgänglighetsanpassad lägenhet med få trappsteg
Den här lägenheten kan passa för den som använder rullator eller käpp som hjälpmedel. Lägenheten har max fem trappsteg från entré till lägenhetsdörr.
- Antal personer är högst 10
- Antal vuxna är minst 1
- Antal vuxna är högst 10
- Antal barn är minst 0
- Antal barn är högst 9
- Ålder är minst 18
- Huvudsaklig inkomst är något av Studiemedel, A-kassa, Tjänst (lön), Pension
Rangordning: Ködagar hos Boplats .
Kötider i detta område Under de senaste 12 månaderna har 30 stycken liknande bostäder förmedlats i området. De har förmedlats med en genomsnittlig kötid på 15 år och 100 månader.
Du måste vara inloggad för att ansöka
Hyresvärdens beskrivning
Välkommen till kvarteret Återbruket! Här bor du i ett unikt hus, som till stor del är byggt av återbrukat material. Invändigt är så gott som allt material nytt. Etagelägenhet med egen ingång och uteplats. Förberett för tvättmaskin i badrummet. I huset finns gemensam terrass med ett orangeri för mindre odlingar. Varmvatten mäts och debiteras separat. Huset är helt rökfritt, även på loftgångar och uteplatser. Lätt att resa hållbart, du får prova Västtrafik i 90 dagar. Lägenheten annonseras med inkomstkrav. Inkomstkravet för denna lägenhet är att sökandes månadsinkomst efter skatt måste överstiga grundhyran. För att få skriva kontrakt behöver du kunna uppvisa anställningsbevis och senaste lönespecifikation. Finns inte anställningsbevis godkänner vi beslut om A-kassa, CSN eller pension. Lägenheten hyrs ut på ritning, då den är under produktion. Läs mer på: poseidon.goteborg.se/nya-bostader och under områdesbeskrivning nedan.
Beskrivning av området
Våra hus i Backa varierar mellan låghus, radhus och höghus med en blandning av nyproduktion och äldre fastigheter. I Backa har du alltid grönska inpå knuten, missa till exempel inte Poseidons egna blomsterhav i området - Värdens park. I Backa har du närhet till det mesta, i närområdet ligger Selma Lagerlöfs torg och Backaplan med ett brett utbud av service och handel. I området är det begränsad tillgång till p-platser och plats kan inte garanteras. Parkeringstillstånd söks via Parkering Göteborg, max ett per hushåll. Om du inte vill ha egen bil har du tillgång till en bilpool i området.
Viktigt om lägenheten
Lägenheten har
Vad ingår i hyran?
Hyresvärd
- Bostads AB Poseidon
- 031-3321000
- info@poseidon.goteborg.se
Så bestäms vem som får lägenheten
Läs mer om Boplats förmedlingsregler här.