Spannlandsgatan 5
Du har sökt denna lägenhet
Sista dagen att söka denna lägenhet är 5 april.
Ta bort min ansökanÄr du säker på att du vill ta bort din ansökan?
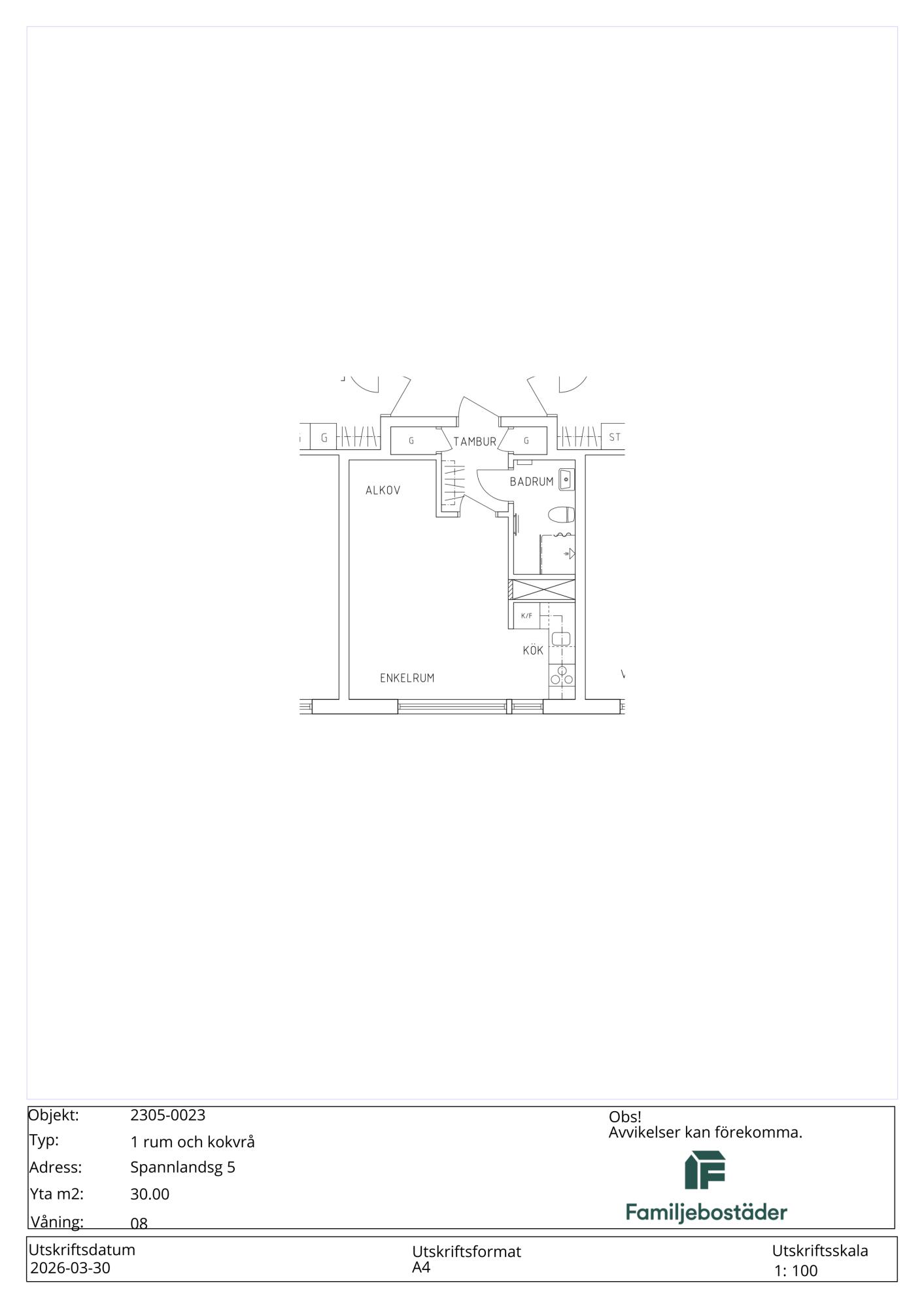
Antal rum: 1 rum fördelat på 30.0 m²
Hyra: 5 815 kr/mån
Inflyttning: 16 maj 2026
Våning: 8 av 8
Anmäl senast: 5 april
Tillgänglighetsanpassad lägenhet med få trappsteg
Den här lägenheten kan passa för den som använder rullator eller käpp som hjälpmedel. Lägenheten har max fem trappsteg från entré till lägenhetsdörr.
- Antal personer är högst 2
- Antal vuxna är minst 1
- Antal vuxna är högst 2
- Antal barn är minst 0
- Antal barn är högst 0
- Ålder är minst 65
Rangordning: Ködagar hos Boplats .
FÖRETRÄDE bland de som har anmält intresse
-
I första hand
- Ålder är minst 70
Rangordning: Ködagar hos Boplats .
-
I andra hand
- Ålder är minst 65
Rangordning: Ködagar hos Boplats .
Kötider i detta område Under de senaste 12 månaderna har 30 stycken liknande bostäder förmedlats i området. De har förmedlats med en genomsnittlig kötid på 15 år och 100 månader.
Du måste vara inloggad för att ansöka
Hyresvärdens beskrivning
Högsbo är centralt beläget med bara fem minuters cykelväg till Majorna eller Linnéplatsen. Axel Dahlströms Torg är Högsbos eget centrum. Här finns bank, restauranger och butiker av olika slag. Badrum med kakel och klinker samt dusch. Parkett på alla golv utom kök och badrum. Fysisk visning kommer ske på kontorstid, information om datum och tid tillhandahålls endast om du som sökande har gått vidare i processen och är aktuell för visning. Lägenheten hyrs ut som Trygghetsboende. För att få bo i en trygghetsanpassad lägenhet ska minst en i hushållet har fyllt 70 år och inte ha hemmavarande barn. Lägenheten anpassas med hjälpmedel som subventioneras från Göteborgs Stad. Bemannad gemensamhetslokal i närområdet för sociala aktiviteter.
Beskrivning av området
Välkommen till Högsbo! Högsbo är ett genuint 1950-talsområde. De flesta husen är byggda i tegel i tre eller fyra våningar, kompletterade med höga punkthus. Här finns ettor till femrumslägenheter. Området är centralt beläget med bara fem minuters cykelväg till Majorna eller Linnéplatsen. Husen är varsamt inpassade mellan gröna bergsknallar och lummiga träd. På senare år har detta populära område fått tillskott av nybyggda fastigheter. Service och butiker finns nära, på Axel Dahlströms Torg.
Viktigt om lägenheten
Lägenheten har
Vad ingår i hyran?
Karta
Hyresvärd
- Familjebostäder i Göteborg AB
- 031-7316700
- info@familjebostader.se
Så bestäms vem som får lägenheten
Läs mer om Boplats förmedlingsregler här.