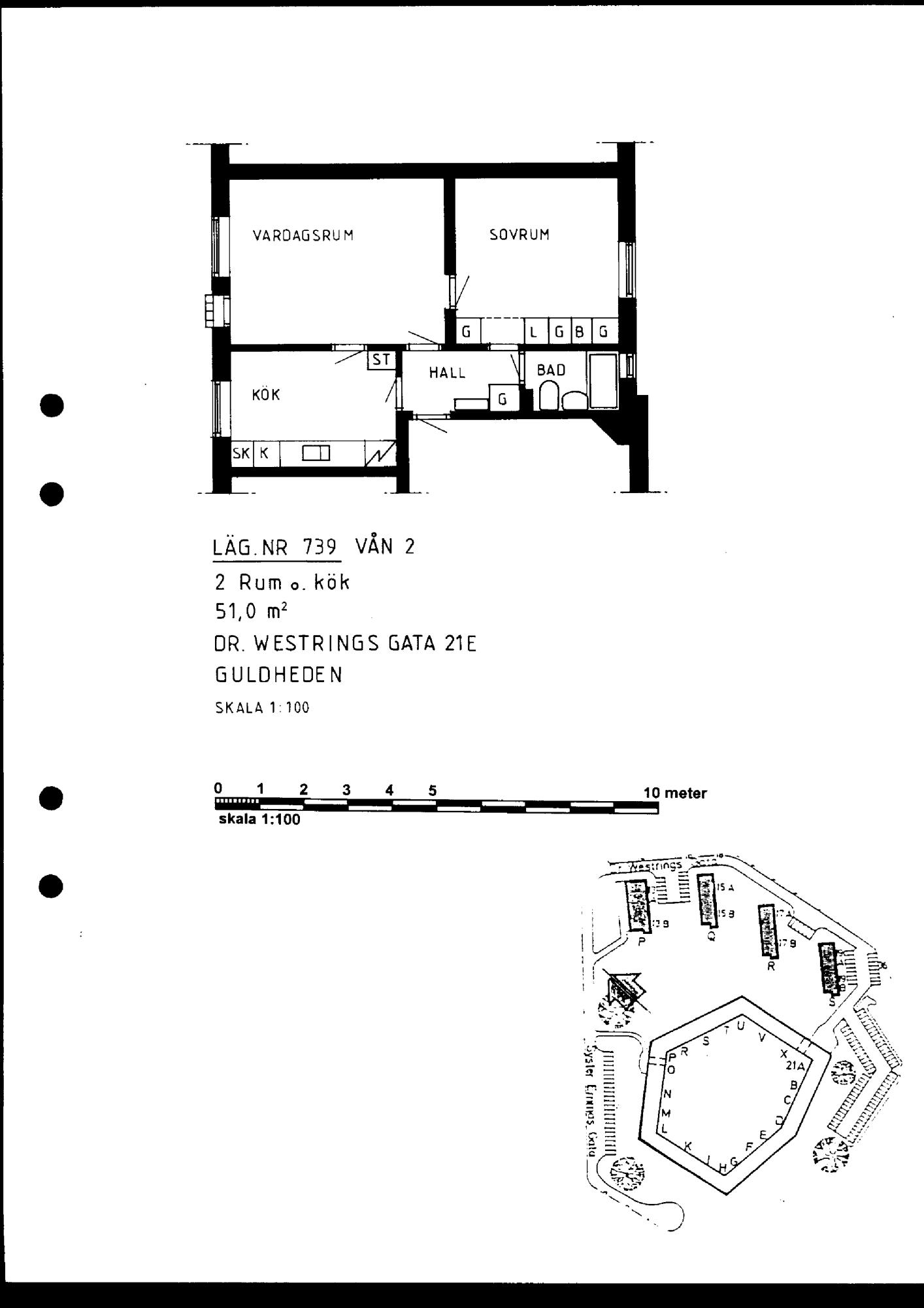
Doktor Westrings gata 21E
Du har sökt denna lägenhet
Sista dagen att söka denna lägenhet är 30 mars.
Ta bort min ansökanÄr du säker på att du vill ta bort din ansökan?
Antal rum: 2 rum fördelat på 51.0 m²
Hyra: 6 525 kr/mån
Inflyttning: 1 juni 2026
Våning: 1 av 2
Anmäl senast: 30 mars
- Antal personer är högst 4
- Antal vuxna är minst 1
- Antal vuxna är högst 4
- Antal barn är minst 0
- Antal barn är högst 3
- Ålder är minst 18
Rangordning: Ködagar hos Boplats .
Kötider i detta område Under de senaste 12 månaderna har 30 stycken liknande bostäder förmedlats i området. De har förmedlats med en genomsnittlig kötid på 15 år och 100 månader.
Du måste vara inloggad för att ansöka
Hyresvärdens beskrivning
I denna lägenhet målades väggar och tak i sovrum och vardagsrum 2007, i köket 2021 samt hallen 1997. Badrummet renoverades 2010. P-plats sökes via Bostadsbolagets hemsida. Visning utförs av Bostadsbolagets personal.
Beskrivning av området
Våra fastigheter ligger på södra Guldheden. Här är det gott om grönområden och bostäderna ligger mitt bland planteringar, björk- och talldungar. Det är gångavstånd ner till centrum, men det finns även ett torg precis i närheten, Dr Fries Torg med ett brett utbud av kommersiell service. Hustyperna är av två skiftande karaktärer. Dels finns det punkthus och dels mindre trevåningshus. Lägenhetsytorna är varierande, den minsta är på 18 kvm och den största på 124 kvm. De flesta lägenheter är två rum och kök på cirka 52 kvm. Under 2005 växte området mot Toltorpsdalen på Dr Wengbergs gata där 66 lägenheter byggdes och under 2019 byggdes ytterligare 66 nya lägenheter på Dr Sven Johanssons backe.
Lägenheten har
Vad ingår i hyran?
Karta
Hyresvärd
- Göteborgs stads bostadsaktiebolag
- 031-7315000
- info@bostadsbolaget.se
Så bestäms vem som får lägenheten
Läs mer om Boplats förmedlingsregler här.