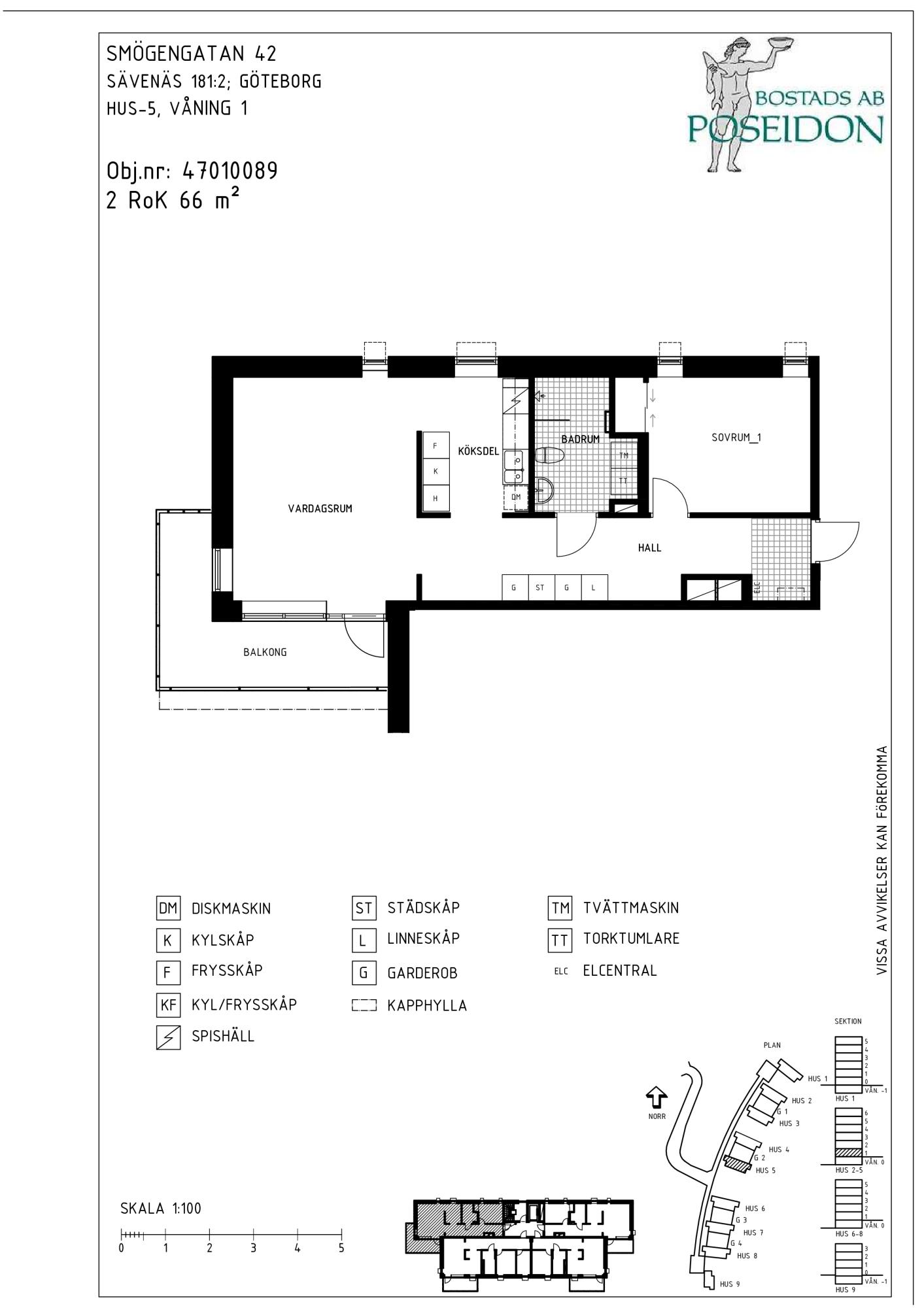
Smögengatan 42
Du har sökt denna lägenhet
Sista dagen att söka denna lägenhet är 5 april.
Ta bort min ansökanÄr du säker på att du vill ta bort din ansökan?
Antal rum: 2 rum fördelat på 66.0 m²
Hyra: 12 217 kr/mån
Inflyttning: 1 juni 2026
Våning: 1 av 6
Anmäl senast: 5 april
Tillgänglighetsanpassad lägenhet med få trappsteg
Den här lägenheten kan passa för den som använder rullator eller käpp som hjälpmedel. Lägenheten har max fem trappsteg från entré till lägenhetsdörr.
- Antal personer är högst 4
- Antal vuxna är minst 1
- Antal vuxna är högst 4
- Antal barn är minst 0
- Antal barn är högst 3
- Ålder är minst 18
Rangordning: Ködagar hos Boplats .
Kötider i detta område Under de senaste 12 månaderna har 30 stycken liknande bostäder förmedlats i området. De har förmedlats med en genomsnittlig kötid på 15 år och 100 månader.
Du måste vara inloggad för att ansöka
Hyresvärdens beskrivning
Välplanerad hörntvåa med öppen planlösning på första våningen i hus byggt år 2022. Balkong med utgång från vardagsrummet. Helkaklat badrum med klinkergolv och egen tvättutrustning. Ekparkett i alla övriga rum. Diskmaskin finns. I källaren ingår ett förråd. Fastigheten har elektroniskt portlås och elektronisk anslagstavla i entrén. Hela huset är rökfritt – även på balkonger och uteplatser. Parkeringstillstånd kan inte garanteras, utan söks på Parkering Göteborgs hemsida.
Beskrivning av området
Våra hus vid Smögengatan i Torpa ligger ett stenkast från Östra sjukhuset. Här bor du med Delsjöområdets strövstigar och badplatser på cykelavstånd och tar dig lätt till centrala staden med kollektivtrafik. Poseidons hus vid Smögengatan har ett högt och vackert läge precis vid skogsbrynet. I närheten finns både skolor, apotek och mindre närbutiker vid de lokala torgen.
Viktigt om lägenheten
Lägenheten har
Vad ingår i hyran?
Karta
Hyresvärd
- Bostads AB Poseidon
- 031-3321000
- info@poseidon.goteborg.se
Så bestäms vem som får lägenheten
Läs mer om Boplats förmedlingsregler här.