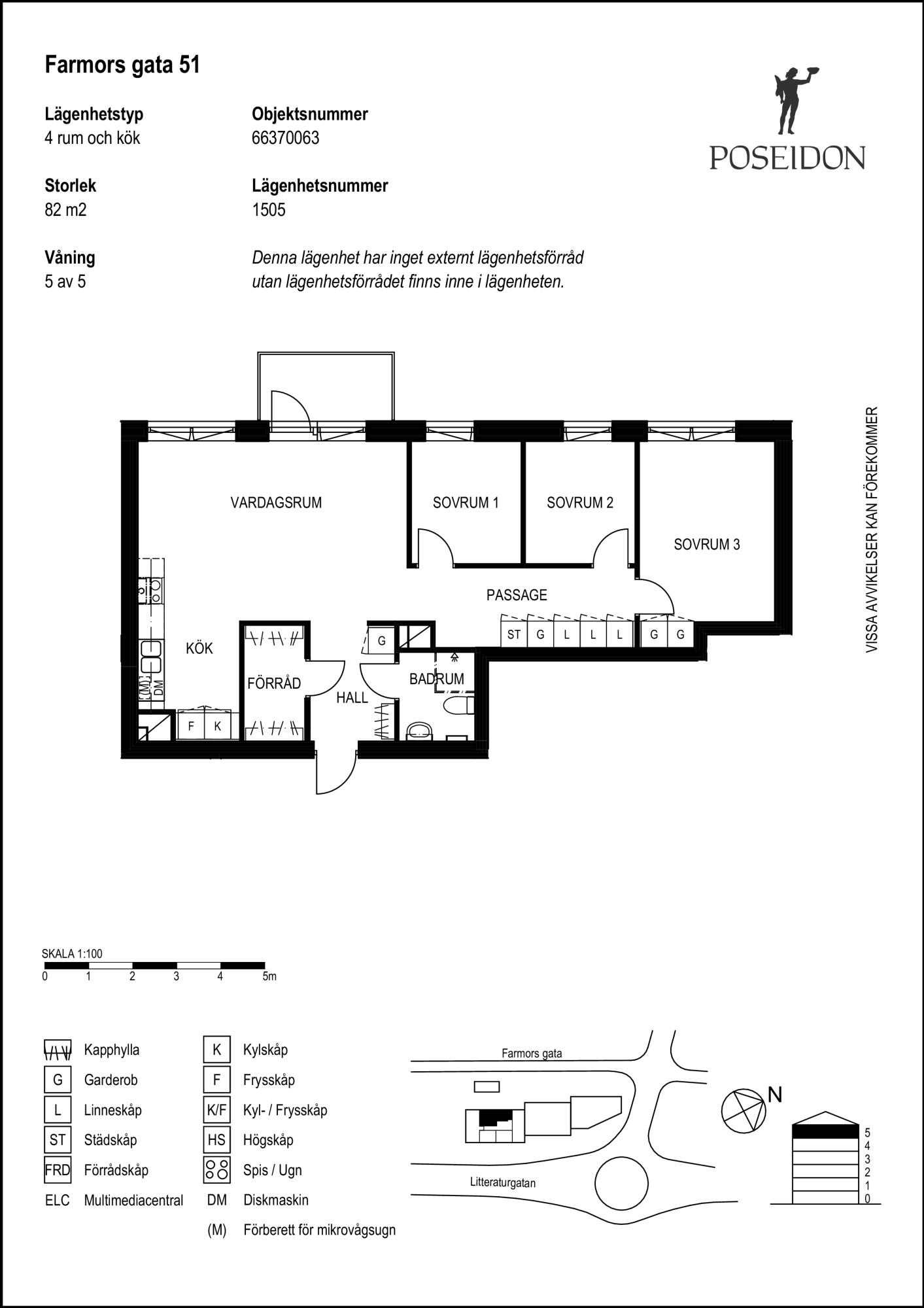
Farmors gata 51
Backa, Norra Hisingen, Göteborg
Du har sökt denna lägenhet
Sista dagen att söka denna lägenhet är 26 mars.
Ta bort min ansökanÄr du säker på att du vill ta bort din ansökan?
Antal rum: 4 rum fördelat på 82.0 m²
Hyra: 15 414 kr/mån
Inflyttning: 1 juni 2026
Våning: 5 av 5
Anmäl senast: 26 mars
Tillgänglighetsanpassad lägenhet med få trappsteg
Den här lägenheten kan passa för den som använder rullator eller käpp som hjälpmedel. Lägenheten har max fem trappsteg från entré till lägenhetsdörr.
- Antal personer är högst 8
- Antal vuxna är minst 1
- Antal vuxna är högst 8
- Antal barn är minst 0
- Antal barn är högst 7
- Ålder är minst 18
- Huvudsaklig inkomst är något av Studiemedel, A-kassa, Tjänst (lön), Pension
Rangordning: Ködagar hos Boplats .
Kötider i detta område Under de senaste 12 månaderna har 30 stycken liknande bostäder förmedlats i området. De har förmedlats med en genomsnittlig kötid på 15 år och 100 månader.
Du måste vara inloggad för att ansöka
Hyresvärdens beskrivning
Välkommen till nybyggda kvarteret Omställningen! Här kan du vara med och ställa om för ett bättre klimat och leva utan egen bil. Istället för att ha egen bil får du tillgång till gemensam bilpool samt cykelpool med el- och lastcyklar. Varje hushåll får även ett gratis Västtrafikkort i 90 dagar. Lägenheten har öppen planlösning med lägenhetsförråd. Finns möjlighet att hyra ytterigare förråd i området. Gemensam tvättstuga med självdoserande maskiner. Lägenheterna har individuell mätning av varmvatten. Hela huset är rökfritt, även på balkonger och uteplatser. Lägenheten annonseras med inkomstkrav. Inkomstkravet för denna lägenhet är att sökandes månadsinkomst efter skatt måste överstiga grundhyran. För att få skriva kontrakt behöver du kunna uppvisa anställningsbevis och senaste lönespecifikation. Finns inte anställningsbevis godkänner vi beslut om A-kassa, CSN eller pension. Läs mer om p-platser och området här nedanför.
Beskrivning av området
Våra hus i Backa varierar mellan låghus, radhus och höghus med en blandning av nyproduktion och äldre fastigheter. I Backa har du alltid grönska inpå knuten, missa till exempel inte Poseidons egna blomsterhav i området - Värdens park. I Backa har du närhet till det mesta, i närområdet ligger Selma Lagerlöfs torg och Backaplan med ett brett utbud av service och handel. I området är det begränsad tillgång till p-platser och plats kan inte garanteras. Parkeringstillstånd söks via Parkering Göteborg, max ett per hushåll. Om du inte vill ha egen bil har du tillgång till en bilpool i området.
Viktigt om lägenheten
Lägenheten har
Vad ingår i hyran?
Hyresvärd
- Bostads AB Poseidon
- 031-3321000
- info@poseidon.goteborg.se
Så bestäms vem som får lägenheten
Läs mer om Boplats förmedlingsregler här.