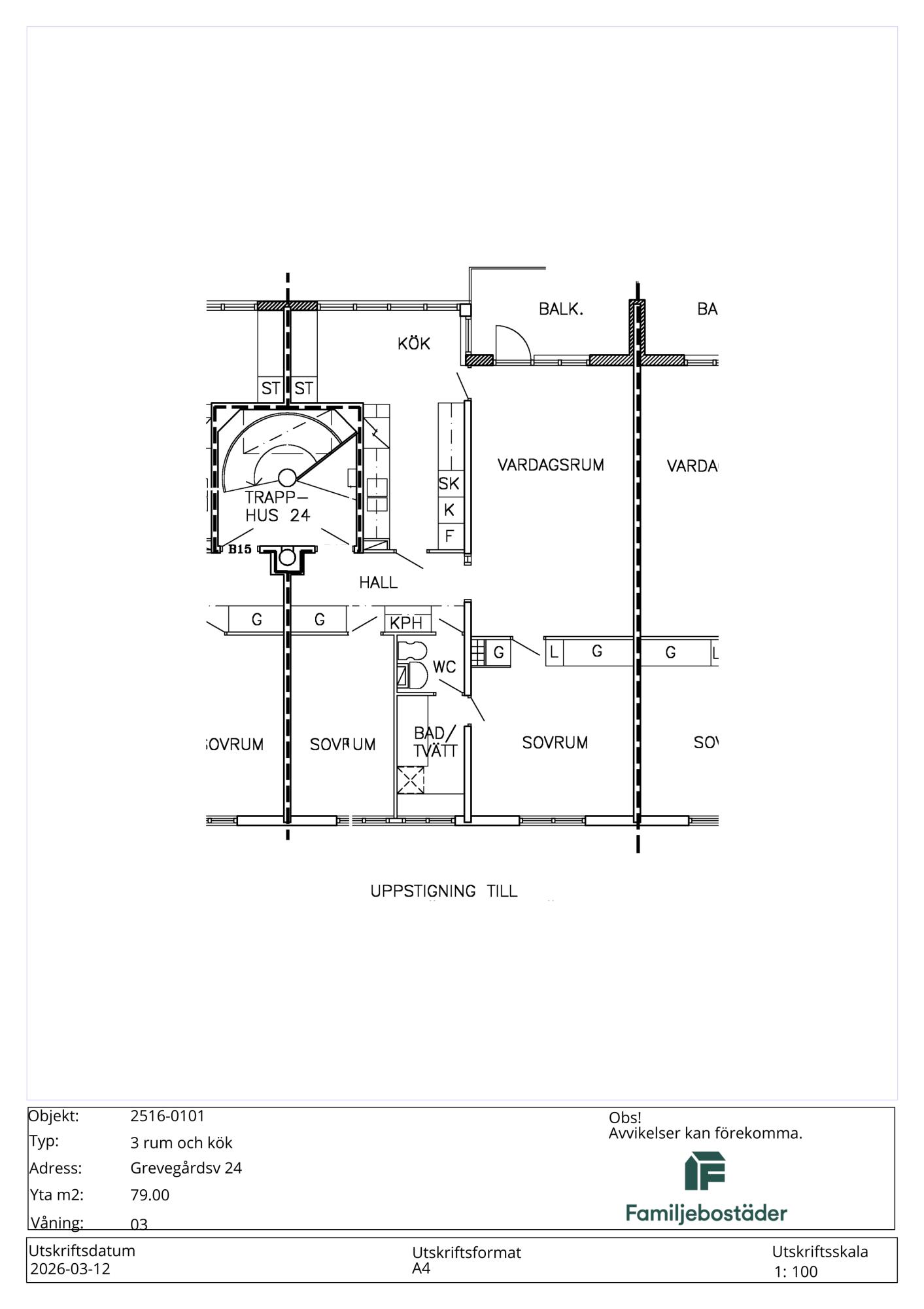
Grevegårdsvägen 24
Du har sökt denna lägenhet
Sista dagen att söka denna lägenhet är 22 mars.
Ta bort min ansökanÄr du säker på att du vill ta bort din ansökan?
Antal rum: 3 rum fördelat på 79.0 m²
Hyra: 10 290 kr/mån
Inflyttning: 1 maj 2026
Våning: 3 av 0
Anmäl senast: 22 mars
- Antal personer är högst 6
- Antal vuxna är minst 1
- Antal vuxna är högst 6
- Antal barn är minst 0
- Antal barn är högst 5
- Ålder är minst 18
- Huvudsaklig inkomst är något av Studiemedel, Näringsverksamhet, A-kassa, Tjänst (lön), Pension
Rangordning: Ködagar hos Boplats .
Kötider i detta område Under de senaste 12 månaderna har 30 stycken liknande bostäder förmedlats i området. De har förmedlats med en genomsnittlig kötid på 15 år och 100 månader.
Du måste vara inloggad för att ansöka
Hyresvärdens beskrivning
Familjebostäder vill skapa ett tryggt, trivsamt och klimatvänligt boende för alla sina hyresgäster. Vi lyssnar på våra boende, vilka behov som finns och vad som behöver utvecklas. Lägenheten annonseras med inkomstkrav. För att kunna söka lägenheten måste du uppvisa intyg på skattepliktig inkomst eller studiestöd från CSN. Denna 3 rums lägenhet på 3:e våning är belägen i Tynnered, för mer information om området se områdesbeskrivning nedan. Lägenhet under renovering där samtliga rum ska målas, nya innerdörrar samt ny träparkett i vardagsrum. I kök ska nya luckor med handtag, kakel, bänkskiva installeras. Badrum är nyrenoverat med helkaklade väggar, klinkergolv, dusch, handdukstork & förberett för tvättmaskin (Hyresgäst ansvarar för inköp & installation). Förråd finns. Denna lägenhet söks på planlösning. Om du som sökande går vidare i processen och blir aktuell för ett erbjudande kommer det att erbjudas en fysisk visning.
Beskrivning av området
Välkommen till Grevegården! Husen med de ljusa, putsade fasaderna byggdes på 1960- och 1970 talen. Några av husen är byggda 2019. Innergården och området runt huset är grönt och lummigt med bra promenadvägar och alldeles i närheten ligger den nybyggda Opalparken. Här är nära till Opaltorget med stor livsmedelsbutik, apotek, vårdcentral och bra kollektivtrafik. Läget ligger endast en cykeltur från havet och en kort spårvagnstur från Frölunda torg, Linnégatan och City. Under senare år har större uppfräschning gjorts i trappuppgångar och vindar, belysning har förbättrats och utökats. Gemensamma utrymmen har elektroniska och beröringsfria lås och belysning.
Lägenheten har
Vad ingår i hyran?
Karta
Hyresvärd
- Familjebostäder i Göteborg AB
- 031-7316700
- info@familjebostader.se
Så bestäms vem som får lägenheten
Läs mer om Boplats förmedlingsregler här.