Norra Krokslättsgatan 13
Du har sökt denna lägenhet
Sista dagen att söka denna lägenhet är 19 mars.
Ta bort min ansökanÄr du säker på att du vill ta bort din ansökan?
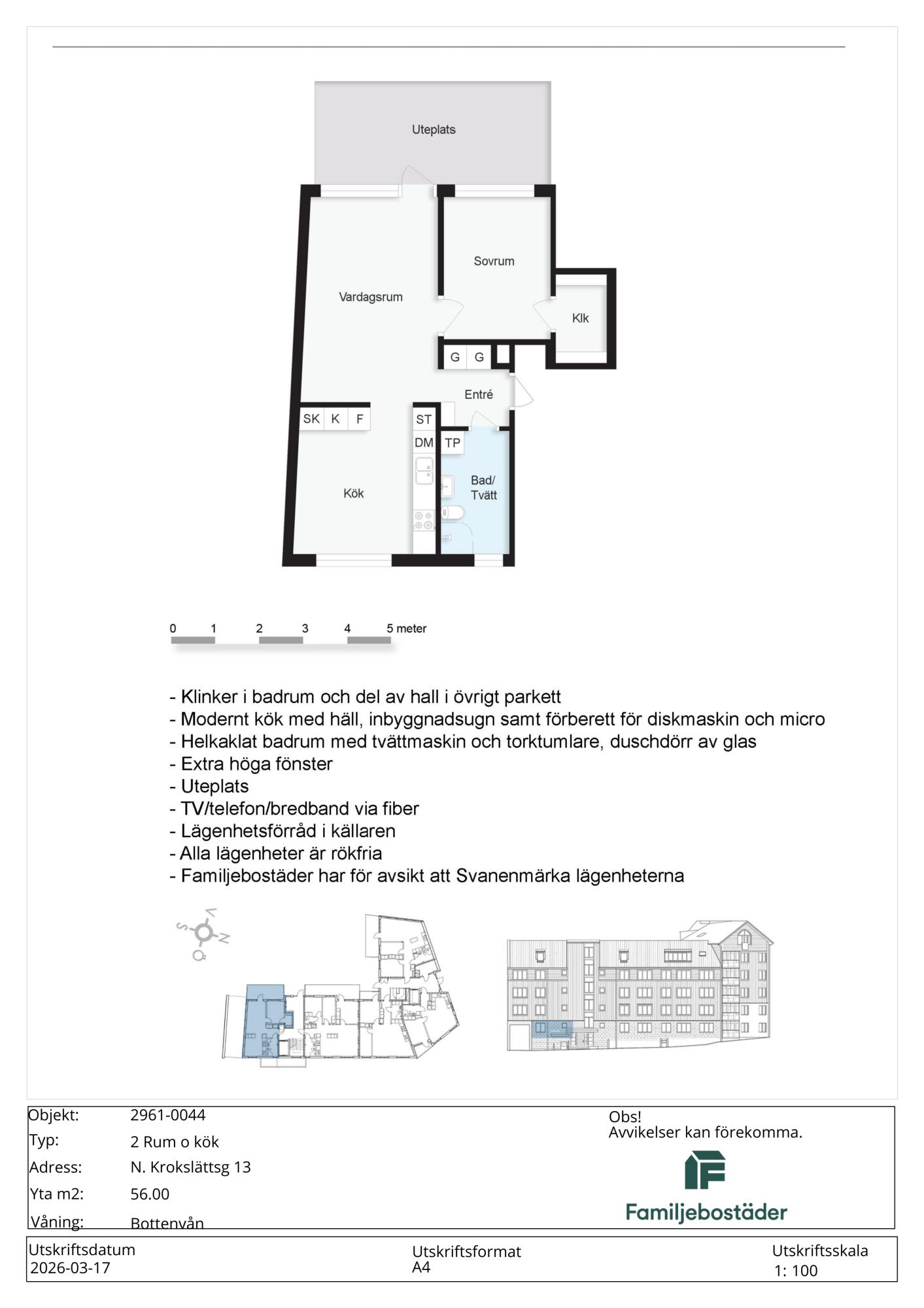
Antal rum: 2 rum fördelat på 56.0 m²
Hyra: 10 588 kr/mån
Inflyttning: 1 maj 2026
Våning: 0 av 5
Anmäl senast: 19 mars
Tillgänglighetsanpassad lägenhet med få trappsteg
Den här lägenheten kan passa för den som använder rullator eller käpp som hjälpmedel. Lägenheten har max fem trappsteg från entré till lägenhetsdörr.
- Antal personer är högst 4
- Antal vuxna är minst 1
- Antal vuxna är högst 4
- Antal barn är minst 0
- Antal barn är högst 3
- Ålder är minst 18
Rangordning: Ködagar hos Boplats .
Kötider i detta område Under de senaste 12 månaderna har 30 stycken liknande bostäder förmedlats i området. De har förmedlats med en genomsnittlig kötid på 15 år och 100 månader.
Du måste vara inloggad för att ansöka
Hyresvärdens beskrivning
Lägenhet med uteplats som byggdes 2015. Parkett i sovrum. vardagsrum, kök och klädkammare. Klinkers i hall. I badrummet är det kakel och klinker och det finns tvättmaskin och torktumlare. Lägenheten intresseanmäls på ritning. Fysisk visning kommer att ske på dag-/kontorstid. Information om datum och tid, samt bilder tillhandahålls om du som sökande har gått vidare i processen och är aktuell för att få ett erbjudande.
Beskrivning av området
Välkommen till Krokslätt! I Krokslätt, mellan Guldheden och Mölndal, råder en småskalig charm med gott om grönområden och parker. Trots det centrala läget med bra kommunikationer, uppfattas omgivningen som tyst och harmonisk. I området finns såväl nya bostäder som äldre hus. Familjebostäder har två landshövdingehus i Krokslätt byggda på 1930-talet. Och ett nyare, modernt landshövdingehus som smälter väl in i miljön. Här finns mestadels mindre lägenheter; ettor, tvåor och treor.
Viktigt om lägenheten
Lägenheten har
Vad ingår i hyran?
Karta
Hyresvärd
- Familjebostäder i Göteborg AB
- 031-7316700
- info@familjebostader.se
Så bestäms vem som får lägenheten
Läs mer om Boplats förmedlingsregler här.