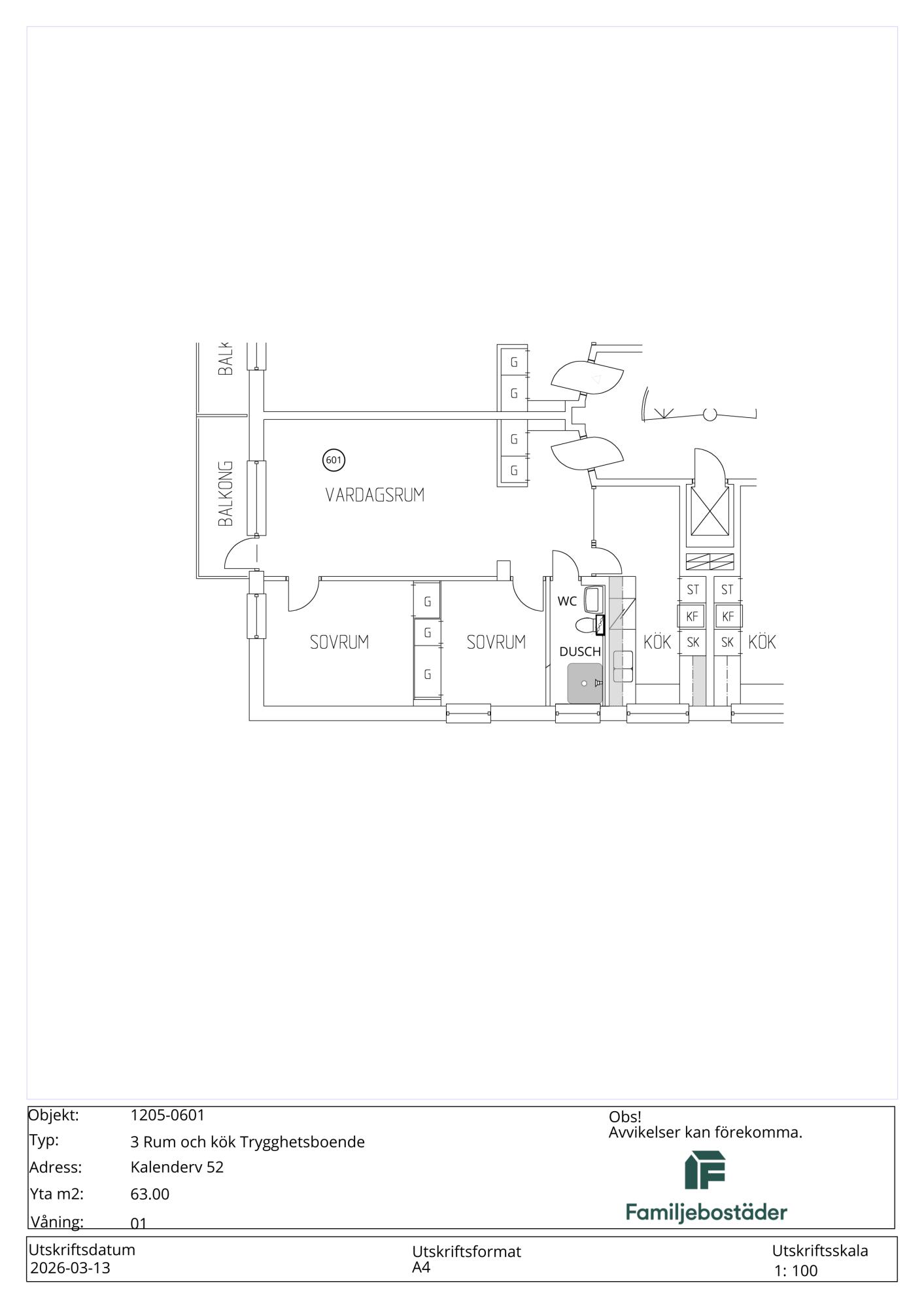
Kalendervägen 52
Du har sökt denna lägenhet
Sista dagen att söka denna lägenhet är 17 mars.
Ta bort min ansökanÄr du säker på att du vill ta bort din ansökan?
Antal rum: 3 rum fördelat på 63.0 m²
Hyra: 7 384 kr/mån
Inflyttning: 1 maj 2026
Våning: 1 av 9
Anmäl senast: 17 mars
Tillgänglighetsanpassad lägenhet med få trappsteg
Den här lägenheten kan passa för den som använder rullator eller käpp som hjälpmedel. Lägenheten har max fem trappsteg från entré till lägenhetsdörr.
- Antal personer är högst 2
- Antal vuxna är minst 1
- Antal vuxna är högst 2
- Antal barn är minst 0
- Antal barn är högst 0
- Ålder är minst 65
Rangordning: Ködagar hos Boplats .
FÖRETRÄDE bland de som har anmält intresse
-
I första hand
- Ålder är minst 70
Rangordning: Ködagar hos Boplats .
-
I andra hand
- Ålder är minst 65
Rangordning: Ködagar hos Boplats .
Kötider i detta område Under de senaste 12 månaderna har 30 stycken liknande bostäder förmedlats i området. De har förmedlats med en genomsnittlig kötid på 15 år och 100 månader.
Du måste vara inloggad för att ansöka
Hyresvärdens beskrivning
Familjebostäder vill skapa ett tryggt, trivsamt och klimatvänligt boende för alla sina hyresgäster. Vi lyssnar på våra boende, vilka behov som finns och vad som behöver utvecklas. Trygghetsboende är för de som fyllt 70 och inte har hemmavarande barn. Lägenheterna är utrustade för att passa på äldre dar och har t ex spisvakt och stödhandtag i badrum. Det finns gemensamhetslokal för olika aktiviteter Denna 3 rums lägenhet på 1:a våning är belägen i Kortedala, för mer information om området se områdesbeskrivning nedan. Lägenheten ska målas/tapetseras om, golv ska slipas, sovrummen ska få ny träparkett, nya vita innedörrar, ny spis/kyl/frys och spisfläkt i kök. Åtgärder kommer vara klart till inflytt. Badrum med dusch. Förråd finns. Denna lägenhet söks på planlösning. Om du som sökande går vidare i processen och blir aktuell för ett erbjudande kommer det att erbjudas en fysisk visning.
Beskrivning av området
Välkommen till Kortedala! Området ligger på en höjd, omgivet av skog. De flesta hus går i typisk 1950-talsstil med tre våningar, balkonger och röda, bruna eller gula tegelfasader. På Kalendervägen finns några högre punkthus som lockar med imponerande utsikt från inglasade balkonger. Här finns ettor till fyror. I Kortedala bor man med naturen som närmaste granne. För motionären finns här flera motionsslingor, idrottsföreningar, en motionscentral och ishall.
Viktigt om lägenheten
Lägenheten har
Vad ingår i hyran?
Karta
Hyresvärd
- Familjebostäder i Göteborg AB
- 031-7316700
- info@familjebostader.se
Så bestäms vem som får lägenheten
Läs mer om Boplats förmedlingsregler här.