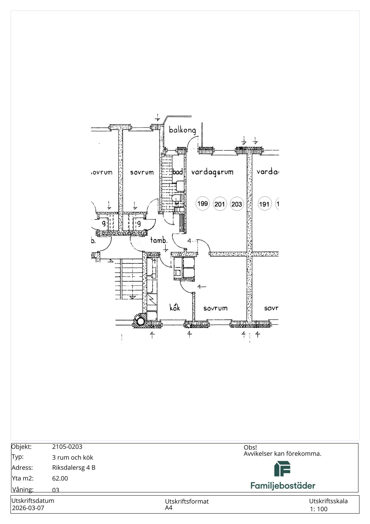
Riksdalersgatan 4B
Du har sökt denna lägenhet
Sista dagen att söka denna lägenhet är 10 mars.
Ta bort min ansökanÄr du säker på att du vill ta bort din ansökan?
Antal rum: 3 rum fördelat på 62.0 m²
Hyra: 7 316 kr/mån
Inflyttning: 16 apr. 2026
Våning: 3 av 0
Anmäl senast: 10 mars
- Antal personer är högst 6
- Antal vuxna är minst 1
- Antal vuxna är högst 6
- Antal barn är minst 0
- Antal barn är högst 5
- Ålder är minst 18
Rangordning: Ködagar hos Boplats .
Kötider i detta område Under de senaste 12 månaderna har 30 stycken liknande bostäder förmedlats i området. De har förmedlats med en genomsnittlig kötid på 15 år och 100 månader.
Du måste vara inloggad för att ansöka
Hyresvärdens beskrivning
Familjebostäder vill skapa ett tryggt, trivsamt och klimatvänligt boende för alla sina hyresgäster. Vi lyssnar på våra boende, vilka behov som finns och vad som behöver utvecklas.Denna 3 rums lägenhet på 3:e våning är belägen i Högsbo, för mer information om området se områdesbeskrivning nedan. Lägenheten intresseanmäls på ritning. Fysisk visning kommer att ske på dag-/kontorstid. Information om datum och tid tillhandahålls om du som sökande har gått vidare i processen och är aktuell för att få ett erbjudande.
Beskrivning av området
Välkommen till Högsbo! Högsbo är ett genuint 1950-talsområde. De flesta husen är byggda i tegel i tre eller fyra våningar, kompletterade med höga punkthus. Här finns ettor till femrumslägenheter. Området är centralt beläget med bara fem minuters cykelväg till Majorna eller Linnéplatsen. Husen är varsamt inpassade mellan gröna bergsknallar och lummiga träd. På senare år har detta populära område fått tillskott av nybyggda fastigheter. Service och butiker finns nära, på Axel Dahlströms Torg.
Lägenheten har
Vad ingår i hyran?
Karta
Hyresvärd
- Familjebostäder i Göteborg AB
- 031-7316700
- info@familjebostader.se
Så bestäms vem som får lägenheten
Läs mer om Boplats förmedlingsregler här.