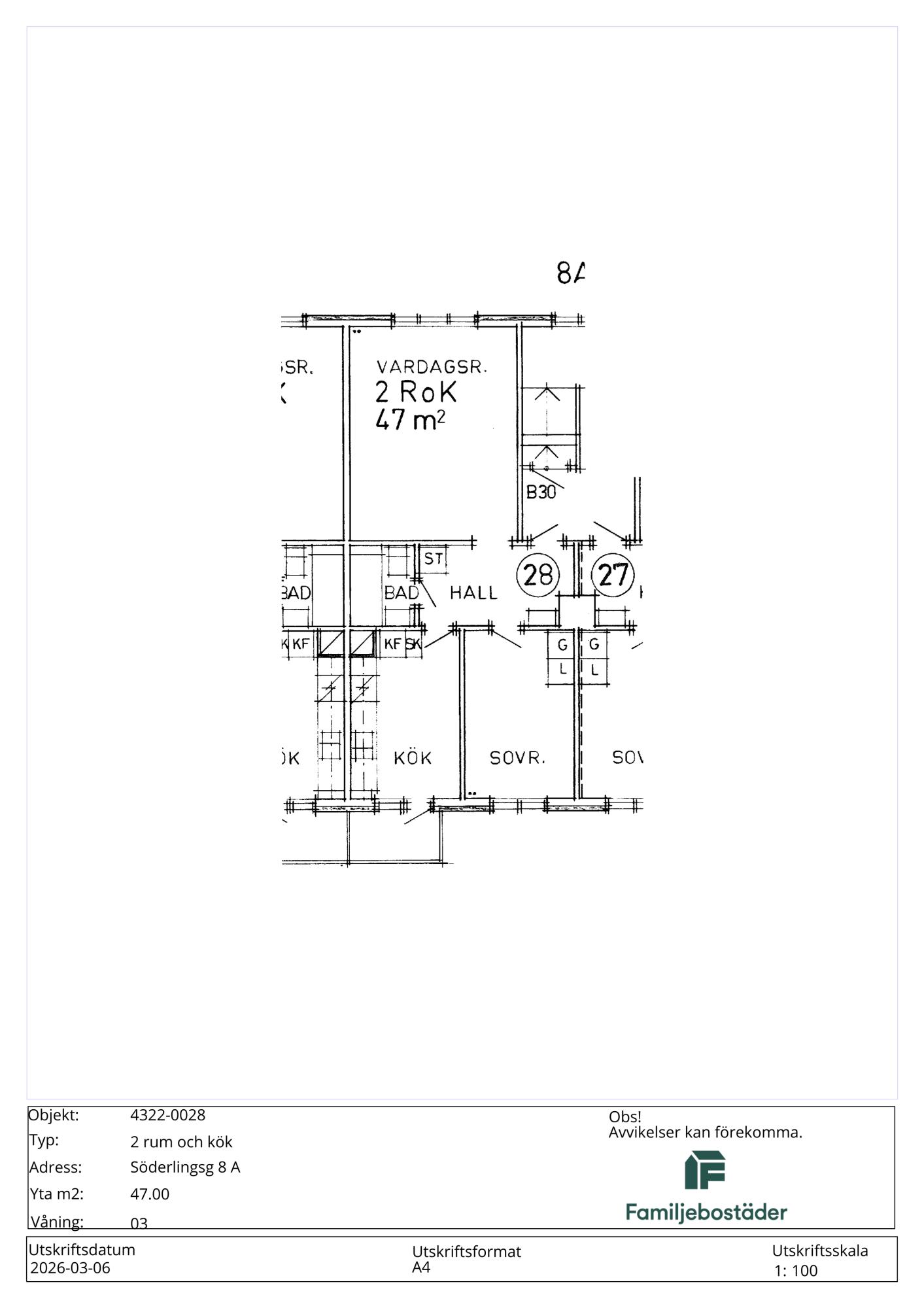
Söderlingsgatan 8A
Du har sökt denna lägenhet
Sista dagen att söka denna lägenhet är 11 mars.
Ta bort min ansökanÄr du säker på att du vill ta bort din ansökan?
Antal rum: 2 rum fördelat på 47.0 m²
Hyra: 6 742 kr/mån
Inflyttning: 1 juni 2026
Våning: 3 av 3
Anmäl senast: 11 mars
- Antal personer är högst 4
- Antal vuxna är minst 1
- Antal vuxna är högst 4
- Antal barn är minst 0
- Antal barn är högst 3
- Ålder är minst 18
Rangordning: Ködagar hos Boplats .
Kötider i detta område Under de senaste 12 månaderna har 30 stycken liknande bostäder förmedlats i området. De har förmedlats med en genomsnittlig kötid på 15 år och 100 månader.
Du måste vara inloggad för att ansöka
Hyresvärdens beskrivning
Familjebostäder vill skapa ett tryggt, trivsamt och klimatvänligt boende för alla sina hyresgäster. Vi lyssnar på våra boende, vilka behov som finns och vad som behöver utvecklas. Denna 2 rums vindslägenhet på 3:e våning är belägen i Majorna, för mer information om området se områdesbeskrivning nedan. Mysig tvåa med fint ljusinsläpp, balkong med förmiddagssol och badrum med badkar. Träparkett i samtliga rum förutom kök och badrum. Nära till både Slottskogen och Majvallens hållplats. Lägenheten intresseanmäls på ritning. Fysisk visning kommer att ske på dag-/kontorstid. Information om datum och tid om du som sökande har gått vidare i processen och är aktuell för att få ett erbjudande.
Beskrivning av området
Välkommen till Majorna! Stadsdelen domineras av landshövdingehus, med den understa våningen i sten och de två övre i trä, som byggdes i slutet av 1800-talet och början av 1900-talet. Området präglas av grönskande innergårdar och mysiga kvarter. Fastigheterna renoverades under 1970- och 1980-talen. Då slogs många små lägenheter samman till större bostäder och husen moderniserades. Men även efter renoveringarna består charmen kvar i de gamla trähusen.
Lägenheten har
Vad ingår i hyran?
Karta
Hyresvärd
- Familjebostäder i Göteborg AB
- 031-7316700
- info@familjebostader.se
Så bestäms vem som får lägenheten
Läs mer om Boplats förmedlingsregler här.