Bredfjällsgatan 66
Du har sökt denna lägenhet
Sista dagen att söka denna lägenhet är 8 mars.
Ta bort min ansökanÄr du säker på att du vill ta bort din ansökan?
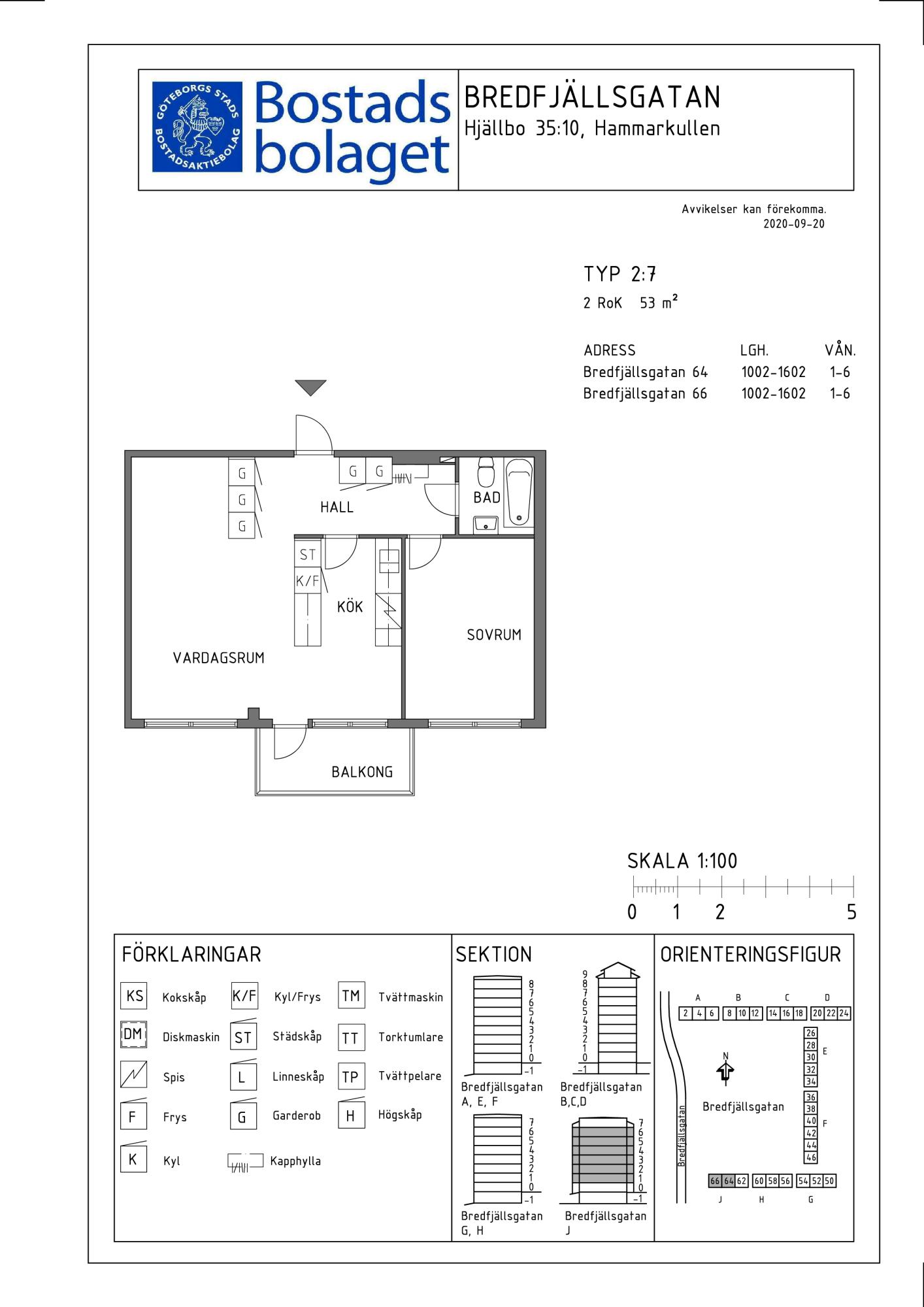
Antal rum: 2 rum fördelat på 53.0 m²
Hyra: 5 250 kr/mån
Inflyttning: 1 maj 2026
Våning: 2 av 7
Anmäl senast: 8 mars
- Antal personer är högst 4
- Antal vuxna är minst 1
- Antal vuxna är högst 4
- Antal barn är minst 0
- Antal barn är högst 3
- Ålder är minst 18
Rangordning: Ködagar hos Boplats .
Kötider i detta område Under de senaste 12 månaderna har 30 stycken liknande bostäder förmedlats i området. De har förmedlats med en genomsnittlig kötid på 15 år och 100 månader.
Du måste vara inloggad för att ansöka
Hyresvärdens beskrivning
Välkommen att ansöka om en lägenhet hos oss på Bostadsbolaget. Lägenheten har ett visst slitage. Obs! Individuell mätning av varm- och kallvatten, kostnad tillkommer på hyran. De första två månaderna debiteras en schablonkostnad och därefter debiteras för faktiskt vattenförbrukning samt 25% moms. Visning utförs av Bostadsbolagets personal som gärna svarar på frågor på plats, vi rekommenderar att alltid gå på visning om du får erbjudande om det
Beskrivning av området
Hammarkullen är ett grönt område med nära till naturen. Lägenheterna är byggda på 1970-talet och varierar i storlek mellan 1 till 4 rum och kök och de flesta har balkong eller uteplats. Hiss finns i alla hus på Hammarkulletorget och Bredfjällsgatan. I området finns fritidsgård, skolor, simhall och bibliotek. Du tar dig enkelt in till stan med spårvagn på cirka 15 minuter.
Lägenheten har
Vad ingår i hyran?
Karta
Hyresvärd
- Göteborgs stads bostadsaktiebolag
- 031-7315000
- info@bostadsbolaget.se
Så bestäms vem som får lägenheten
Läs mer om Boplats förmedlingsregler här.