Bredfjällsgatan 20
Du har sökt denna lägenhet
Sista dagen att söka denna lägenhet är 2 mars.
Ta bort min ansökanÄr du säker på att du vill ta bort din ansökan?
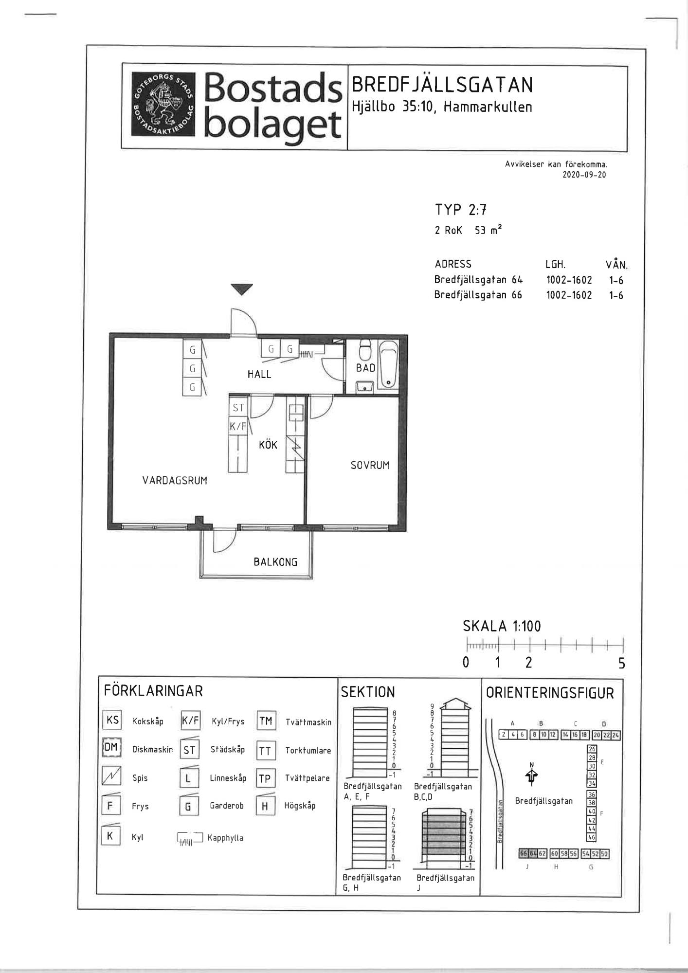
Antal rum: 2 rum fördelat på 53.0 m²
Hyra: 4 950 kr/mån
Inflyttning: 16 maj 2026
Våning: 2 av 9
Anmäl senast: 2 mars
- Antal personer är högst 4
- Antal vuxna är minst 1
- Antal vuxna är högst 4
- Antal barn är minst 0
- Antal barn är högst 3
- Ålder är minst 18
- Huvudsaklig inkomst är något av Studiemedel, A-kassa, Tjänst (lön), Pension
Rangordning: Ködagar hos Boplats .
Kötider i detta område Under de senaste 12 månaderna har 30 stycken liknande bostäder förmedlats i området. De har förmedlats med en genomsnittlig kötid på 15 år och 100 månader.
Du måste vara inloggad för att ansöka
Hyresvärdens beskrivning
Lägenheten har ett visst slitage. Visning utförs av Bostadsbolagets personal som gärna svarar på frågor på plats. Det finns tillval gjorda i lägenheten, avser köksluckor och bänkskiva i kök, garderobsluckor i hall samt säkerhetsdörr. Kostnad för tillval är inräknad i angiven hyra. Obs! Individuell mätning av varm- och kallvatten, kostnad tillkommer på hyran. De första två månaderna debiteras en schablonkostnad och därefter debiteras för faktiskt vattenförbrukning samt 25% moms. Lägenheten annonseras med inkomstkrav, för att få skriva kontrakt behöver du kunna uppvisa inkomst av tjänst, pension, studiemedel och/eller a-kassa.
Beskrivning av området
Hammarkullen är ett grönt område med nära till naturen. Lägenheterna är byggda på 1970-talet och varierar i storlek mellan 1 till 4 rum och kök och de flesta har balkong eller uteplats. Hiss finns i alla hus på Hammarkulletorget och Bredfjällsgatan. I området finns fritidsgård, skolor, simhall och bibliotek. Du tar dig enkelt in till stan med spårvagn på cirka 15 minuter.
Lägenheten har
Vad ingår i hyran?
Karta
Hyresvärd
- Göteborgs stads bostadsaktiebolag
- 031-7315000
- info@bostadsbolaget.se
Så bestäms vem som får lägenheten
Läs mer om Boplats förmedlingsregler här.