Stinsens väg
Du har sökt denna lägenhet
Sista dagen att söka denna lägenhet är 9 mars.
Ta bort min ansökanÄr du säker på att du vill ta bort din ansökan?
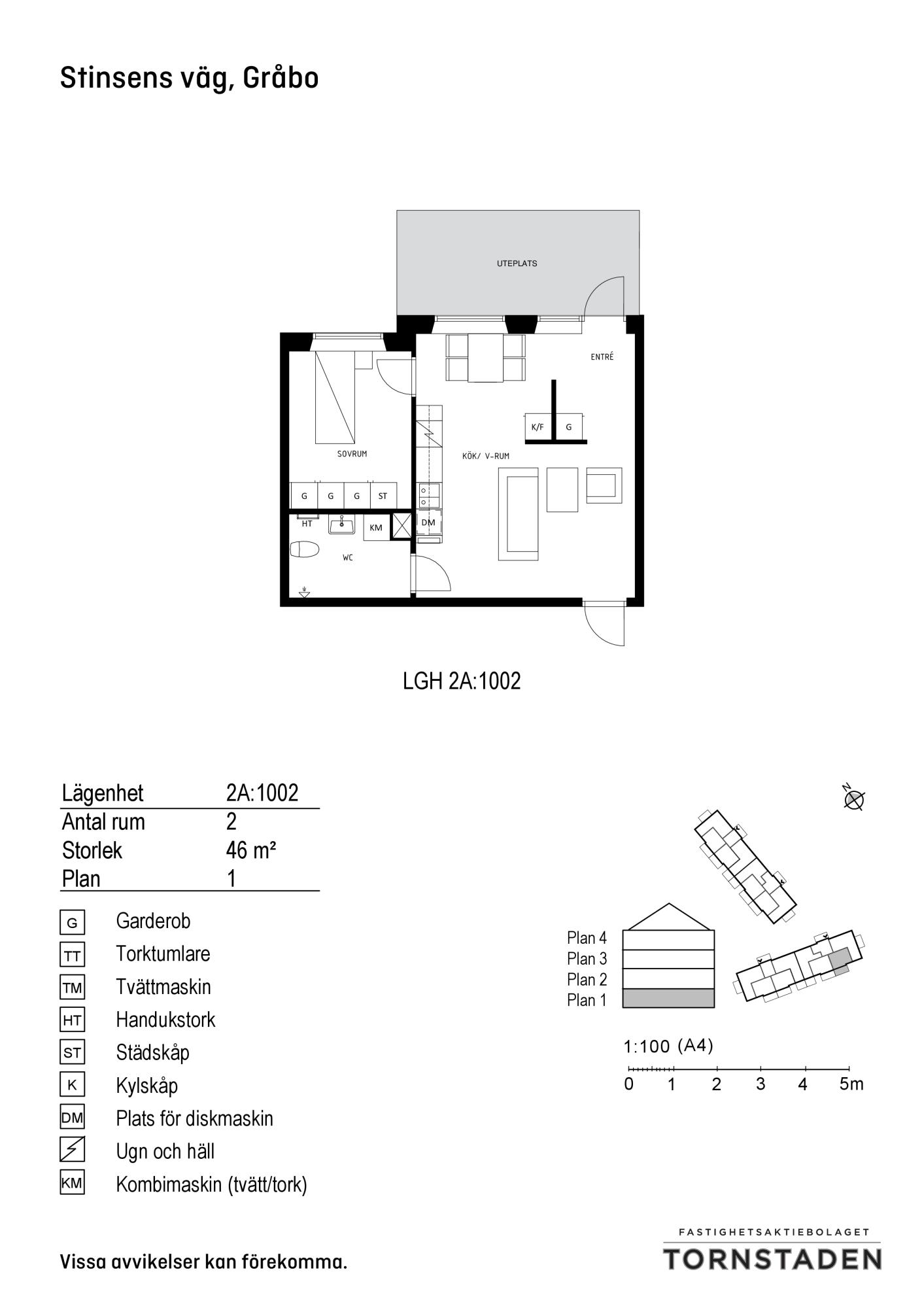
Antal rum: 2 rum fördelat på 46.0 m²
Hyra: 7 748 kr/mån
Inflyttning: 1 juni 2026
Våning: 0 av 4 (Markplan)
Anmäl senast: 9 mars
Tillgänglighetsanpassad lägenhet med få trappsteg
Den här lägenheten kan passa för den som använder rullator eller käpp som hjälpmedel. Lägenheten har max fem trappsteg från entré till lägenhetsdörr.
- Huvudsaklig sysselsättning är något av Arbete, Studier, Pension, Annan
- Ingen i hushållet röker
- Antal vuxna är högst 2
- Antal personer är högst 4
- Områden är Lerum / Gråbo
- Årsinkomst före skatt är minst 380000
Rangordning: Ködagar hos Boplats .
Kötider i detta område Under de senaste 12 månaderna har 30 stycken liknande bostäder förmedlats i området. De har förmedlats med en genomsnittlig kötid på 15 år och 100 månader.
Du måste vara inloggad för att ansöka
Hyresvärdens beskrivning
Välplanerad 2 a med generös uteplats. Öppen planlösning mellan kök och vardagsrum
Vi har som krav att hyresgästen tecknar en hemförsäkring.
Lägenheten ska vara hyresgästens permanenta bostad.
Tornstaden godkänner inte att två syskon eller två vänner står på hyresavtalet.
Den som avser att bo i bostaden ska stå som kontraktsinnehavare.
Beskrivning av området
Planskiss
Viktigt om lägenheten
- Tidigare inflyttning möjligt
Lägenheten har
Vad ingår i hyran?
Karta
Så bestäms vem som får lägenheten
Läs mer om Boplats förmedlingsregler här.