Steen Priwins Gata 5
Du har sökt denna lägenhet
Sista dagen att söka denna lägenhet är 22 februari.
Ta bort min ansökanÄr du säker på att du vill ta bort din ansökan?
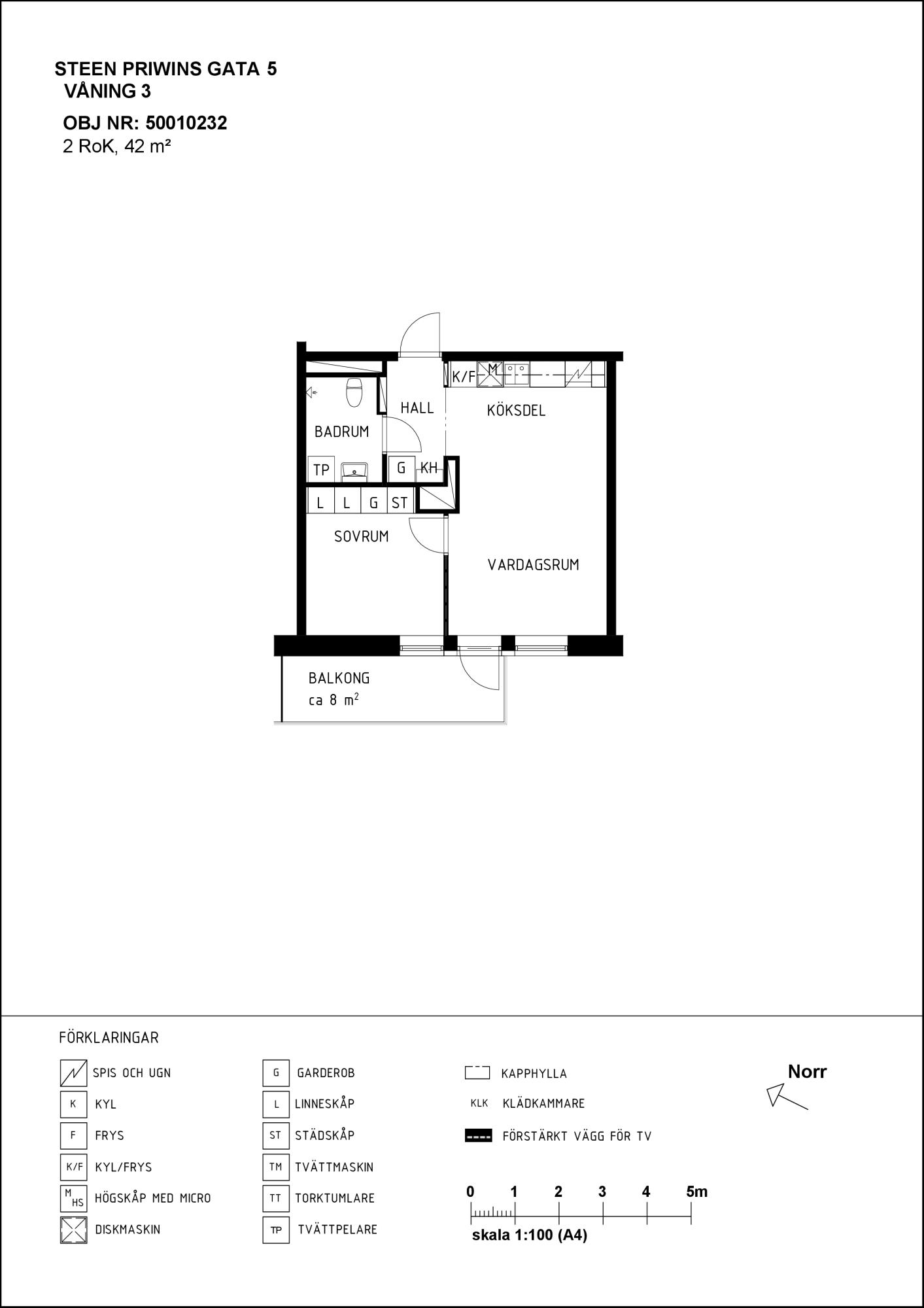
Antal rum: 2 rum fördelat på 42.0 m²
Hyra: 10 177 kr/mån
Inflyttning: 1 maj 2026
Våning: 2 av 6
Anmäl senast: 22 februari
Tillgänglighetsanpassad lägenhet med få trappsteg
Den här lägenheten kan passa för den som använder rullator eller käpp som hjälpmedel. Lägenheten har max fem trappsteg från entré till lägenhetsdörr.
- Antal personer är högst 4
- Antal vuxna är minst 1
- Antal vuxna är högst 4
- Antal barn är minst 0
- Antal barn är högst 3
- Ålder är minst 18
Rangordning: Ködagar hos Boplats .
Kötider i detta område Under de senaste 12 månaderna har 30 stycken liknande bostäder förmedlats i området. De har förmedlats med en genomsnittlig kötid på 15 år och 100 månader.
Du måste vara inloggad för att ansöka
Hyresvärdens beskrivning
Fin tvårumslägenhet med öppen planlösning. Helkaklat badrum med klinkergolv och egen tvätt-utrustning. Ekparkett i alla övriga rum. I lägenheten ingår ett källarförråd. Diskmaskin finns. Fastigheten har elektroniskt portlås och elektronisk anslagstavla i entrén. Hela huset är rökfritt – även på balkonger och uteplatser.
Beskrivning av området
I Kärralund (Örgryte/Torp) bor du nära både staden och naturen. Med Delsjöområdets naturreservat alldeles runt hörnet har du nära till naturen samtidigt som du når Avenyn på bara tio minuter. Poseidons lägenheter i Kärralund ligger samlade i nybyggda området Örgryte Torp. Gatorna i området har namn efter tv-personligheter. Och vad kan passa bättre för ett område som byggs där tidigare SVT-huset låg? I närområdet finns några mindre livsmedelsbutiker. Närmsta spårvagnshållplats ligger utmed Delsjövägen.
Viktigt om lägenheten
Lägenheten har
Vad ingår i hyran?
Karta
Hyresvärd
- Bostads AB Poseidon
- 031-3321000
- info@poseidon.goteborg.se
Så bestäms vem som får lägenheten
Läs mer om Boplats förmedlingsregler här.