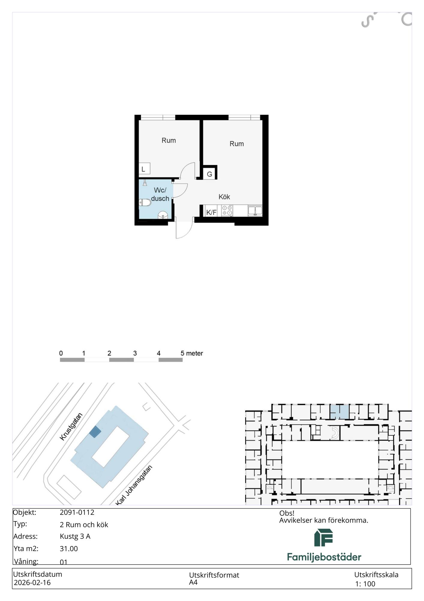
Kustgatan 3 A
Du har sökt denna lägenhet
Sista dagen att söka denna lägenhet är 19 februari.
Ta bort min ansökanÄr du säker på att du vill ta bort din ansökan?
Antal rum: 2 rum fördelat på 31.0 m²
Hyra: 7 919 kr/mån
Inflyttning: 1 apr. 2026
Våning: 1 av 4
Anmäl senast: 19 februari
Tillgänglighetsanpassad lägenhet med få trappsteg
Den här lägenheten kan passa för den som använder rullator eller käpp som hjälpmedel. Lägenheten har max fem trappsteg från entré till lägenhetsdörr.
- Antal personer är högst 4
- Antal vuxna är minst 1
- Antal vuxna är högst 4
- Antal barn är minst 0
- Antal barn är högst 3
- Ålder är minst 18
Rangordning: Ködagar hos Boplats .
Kötider i detta område Under de senaste 12 månaderna har 30 stycken liknande bostäder förmedlats i området. De har förmedlats med en genomsnittlig kötid på 15 år och 100 månader.
Du måste vara inloggad för att ansöka
Hyresvärdens beskrivning
Familjebostäder vill skapa ett tryggt, trivsamt och klimatvänligt boende för alla sina hyresgäster. Vi lyssnar på våra boende, vilka behov som finns och vad som behöver utvecklas. Denna 2 rums lägenhet på 1:a våning är belägen i Majorna, för mer information om området se områdesbeskrivning nedan. Lägenheten hyrs ut med beröringsfritt lås. Renoverades 2022. Fönster ut mot hamninloppet. Förråd finns i källare. Ny hyresgäst erbjuds Västtrafikkort 30 dag 1 st/hushåll. Denna lägenhet söks på planlösning. Om du som sökande går vidare i processen och blir aktuell för ett erbjudande kommer det att erbjudas en fysisk visning på lägenheten.
Beskrivning av området
Välkommen till Kungsladugård! Här finns några av Göteborgs allra finaste och bäst bevarade landshövdingehus. De kännetecknas av sina tre våningar, varav den första är byggd i sten och de övriga två i trä. Landshövdingehusen kom på modet i mitten av 1800-talet och byggdes ända fram till 1940-talet. Lägenheterna är av varierande storlek. Innergårdarna är stora och gröna, perfekta lekplatser för de mindre. Smågatorna runt kvarteren är lummiga och fridfulla, trots närheten till centrum. Runt Maria- och Sannaplan hittar du affärer, mysiga caféer och pubar. Här finns även en stor plaskdamm, populär bland barnfamiljer. En sann idyll tycker många av dem som bor här idag - de gamla husens charm, närheten till vattnet tillsammans med stark granngemenskap.
Viktigt om lägenheten
Lägenheten har
Vad ingår i hyran?
Karta
Hyresvärd
- Familjebostäder i Göteborg AB
- 031-7316700
- info@familjebostader.se
Så bestäms vem som får lägenheten
Läs mer om Boplats förmedlingsregler här.