Wilhelm Thams väg 5
Du har sökt denna lägenhet
Sista dagen att söka denna lägenhet är 8 februari.
Ta bort min ansökanÄr du säker på att du vill ta bort din ansökan?
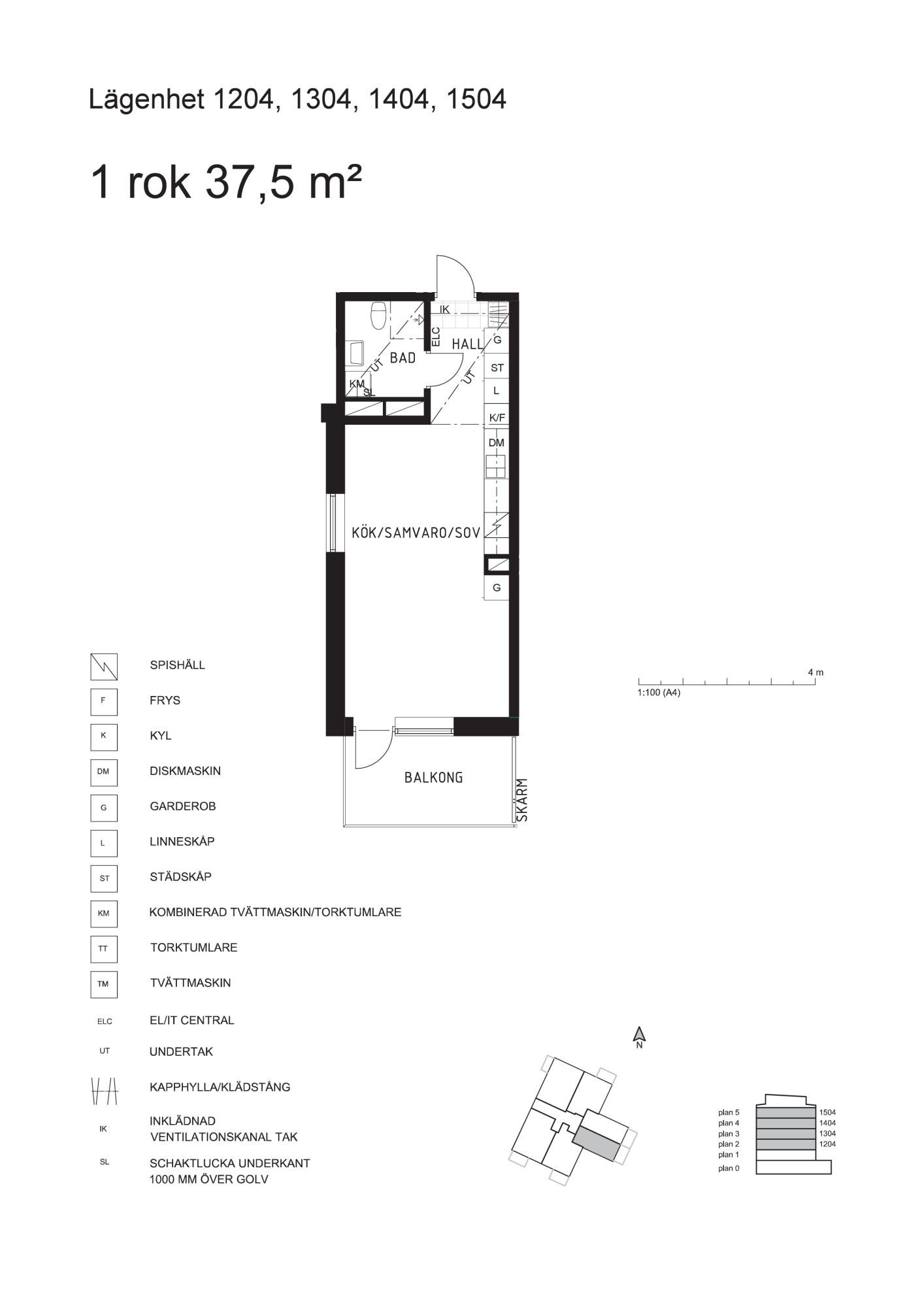
Antal rum: 1 rum fördelat på 37.0 m²
Hyra: 7 549 kr/mån
Inflyttning: 1 mars 2026
Våning: 2 av 5 (Markplan)
Anmäl senast: 8 februari
- Någon i hushållet röker
- Antal personer är högst 2
- Huvudsaklig inkomst är något av Tjänst (lön), Studiemedel
- Årsinkomst före skatt är minst 250000
- Områden är Lerum / Floda
- Ålder är minst 0
Rangordning: Ködagar hos Boplats .
Kötider i detta område Under de senaste 12 månaderna har 30 stycken liknande bostäder förmedlats i området. De har förmedlats med en genomsnittlig kötid på 15 år och 100 månader.
Du måste vara inloggad för att ansöka
Hyresvärdens beskrivning
Lägenhet: 1062-0204 ( 1204 på ritning)
Hyra: 7 549:- /månad from 2026-04-01. Nuvarande hyra 7 336:- inkl vatten & värme. Eget el-abonnemang tillkommer.
Kriterier:
Som hyresgäst hos oss vill vi att du uppfyller följande
kriterier:
Du får inte ha betalningsanmärkningar och/eller oreglerade skulder (en
kredit-upplysning görs alltid).
Du ska vara myndig.
Du ska ha goda boendereferenser från eventuella tidigare hyresvärdar.
Du ska ha en Fast inkomst, Fast inkomst innebär att du har inkomst genom
anställning, pension, eller statliga studiemedel.
Beskrivning av området
Floda ligger vackert beläget vid Säveån , och vackert
omgiven av natur.
Wilhelm Thams väg 5 byggdes under 2018 och stod inflyttningsklart i Februari
2019.
Wilhelm Thams väg 5 är beläget i centrala Floda med gångavstånd till Floda
centrum, samt pendelstation.
Avståndet till Göteborg är ca 30 km, med en restid med tåg på ca 30 min .
Näromgivningen utgörs huvudsakligen av äldre flerbostadshus, och punkthus.
Här finns också skola, förskola och diverse handel.
Planskiss
Lägenheten har
Vad ingår i hyran?
Karta
Så bestäms vem som får lägenheten
Läs mer om Boplats förmedlingsregler här.