Hogenskildsgatan 13
Du har sökt denna lägenhet
Sista dagen att söka denna lägenhet är 29 januari.
Ta bort min ansökanÄr du säker på att du vill ta bort din ansökan?
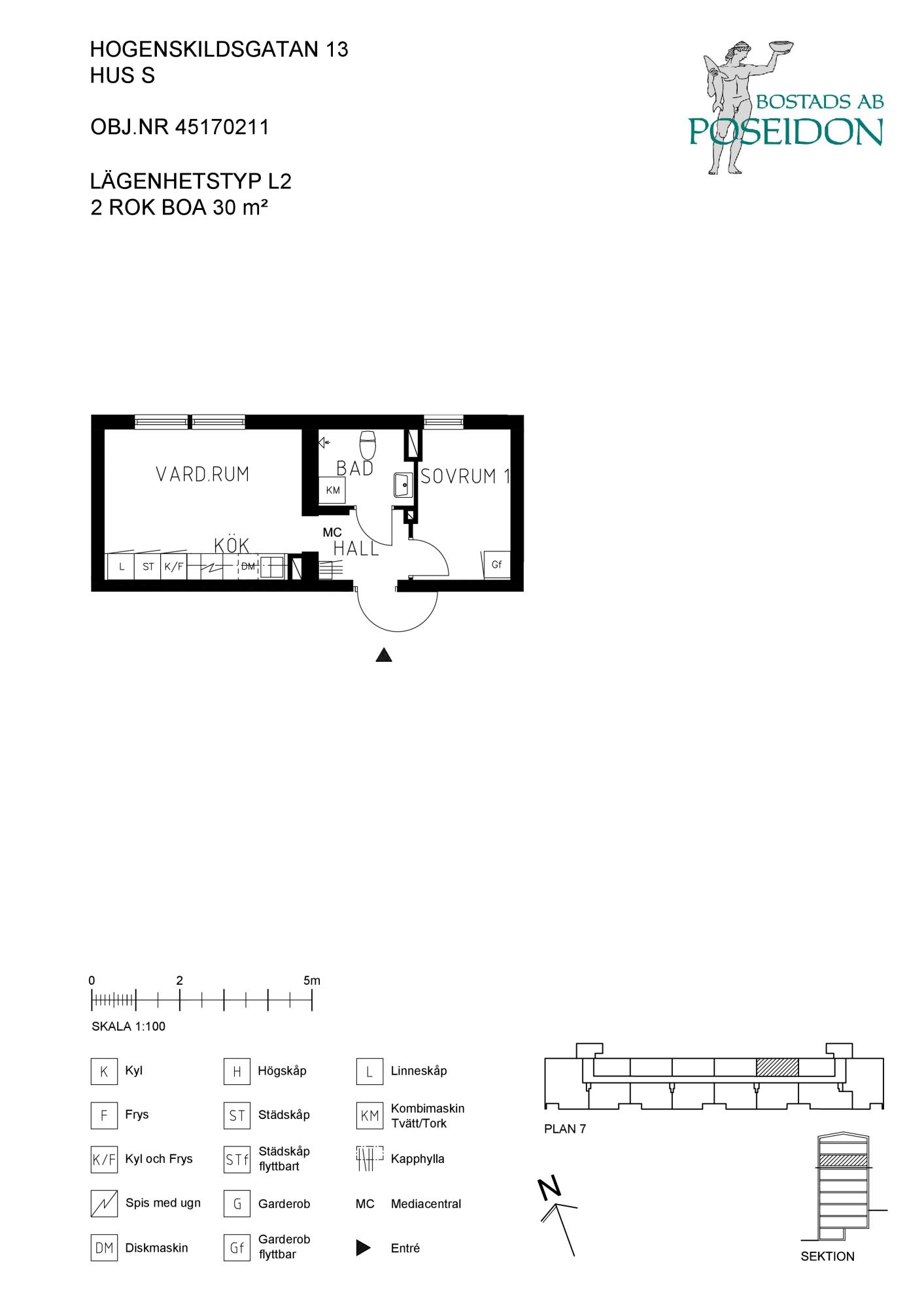
Antal rum: 2 rum fördelat på 30.0 m²
Hyra: 7 903 kr/mån
Inflyttning: 16 feb. 2026
Våning: 4 av 5
Anmäl senast: 29 januari
Tillgänglighetsanpassad lägenhet med få trappsteg
Den här lägenheten kan passa för den som använder rullator eller käpp som hjälpmedel. Lägenheten har max fem trappsteg från entré till lägenhetsdörr.
- Antal personer är högst 4
- Antal vuxna är minst 1
- Antal vuxna är högst 4
- Antal barn är minst 0
- Antal barn är högst 3
- Ålder är minst 18
Rangordning: Ködagar hos Boplats .
Kötider i detta område Under de senaste 12 månaderna har 30 stycken liknande bostäder förmedlats i området. De har förmedlats med en genomsnittlig kötid på 15 år och 100 månader.
Du måste vara inloggad för att ansöka
Hyresvärdens beskrivning
Tvåa i fint skick näst högst upp på fjärde våningen med hiss och öppen planlösning. Parkett i hela lägenheten förutom badrum som har klinkergolv med golvvärme. Tvättmaskin och diskmaskin finns. Fastigheten har elektroniskt portlås och elektronisk anslagstavla i entrén. Lägenheten är rökfri inomhus. Parkeringsplats kan inte garanteras, utan söks separat via Poseidons hemsida. Kostnad för förbrukning av varmvatten tillkommer.
Beskrivning av området
Våra två bostadsområden i Lunden ligger på var sin sida av Danska vägen och erbjuder både äldre lägenheter från 1940- och 1950-talet samt ett antal nyare bostäder. Här bor man centralt, men ändå med staden på behagligt avstånd. Högst uppe på höjden åt väster, i Gamla Lunden, är utsikten över Göteborg magnifik. På andra sidan av Danska vägen, med utblick över naturreservatet kring Delsjön, ligger bostäderna i Nya Lunden. Vid Olskrokstorget finns service, butiker och torghandel.
Viktigt om lägenheten
Lägenheten har
Vad ingår i hyran?
Karta
Hyresvärd
- Bostads AB Poseidon
- 031-3321000
- info@poseidon.goteborg.se
Så bestäms vem som får lägenheten
Läs mer om Boplats förmedlingsregler här.