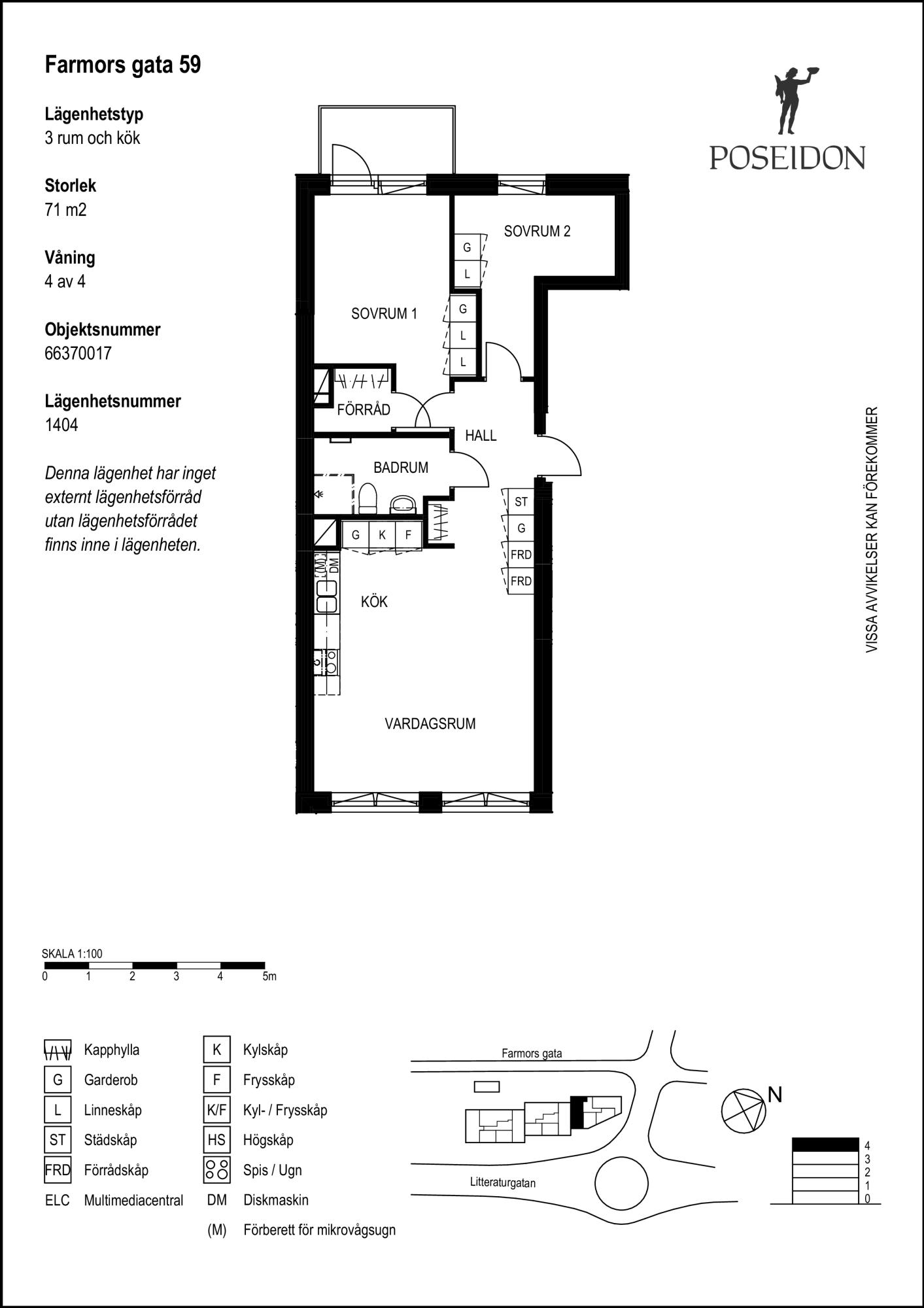
Farmors gata 59
Backa, Norra Hisingen, Göteborg
Du har sökt denna lägenhet
Sista dagen att söka denna lägenhet är 22 januari.
Ta bort min ansökanÄr du säker på att du vill ta bort din ansökan?
Antal rum: 3 rum fördelat på 71.0 m²
Hyra: 13 921 kr/mån
Inflyttning: 1 apr. 2026
Våning: 4 av 4
Anmäl senast: 22 januari
Tillgänglighetsanpassad lägenhet med få trappsteg
Den här lägenheten kan passa för den som använder rullator eller käpp som hjälpmedel. Lägenheten har max fem trappsteg från entré till lägenhetsdörr.
- Antal personer är högst 6
- Antal vuxna är minst 1
- Antal vuxna är högst 6
- Antal barn är minst 0
- Antal barn är högst 5
- Ålder är minst 18
- Huvudsaklig inkomst är något av Studiemedel, A-kassa, Tjänst (lön), Pension
Rangordning: Ködagar hos Boplats .
Kötider i detta område Under de senaste 12 månaderna har 30 stycken liknande bostäder förmedlats i området. De har förmedlats med en genomsnittlig kötid på 15 år och 100 månader.
Du måste vara inloggad för att ansöka
Hyresvärdens beskrivning
Nybyggd lägenhet från april 2025. När du bor i det här huset - som kallas Omställningen- kan du vara med och ställa om för ett bättre klimat och leva utan bil. I stället för att äga en bil får du tillgång till gemensam bilpool och cykelpool med både el- och lastcyklar. Varje hushåll får även ett gratis Västtrafikkort i 90 dagar. Gemensam tvättstuga finns på markplan. Varmvattnet mäts och debiteras separat. Hela huset är rökfritt, även på balkonger och uteplatsen. Inga renoveringsåtgärder kommer att göras i lägenheten. Lägenheten annonseras med inkomstkrav. Inkomstkravet för denna lägenhet är att sökandes månadsinkomst efter skatt måste överstiga grundhyran. För att kunna söka lägenheten måste du ladda ner/kunna visa anställningsbevis och senaste lönespecifikationen. Finns inte anställningsbevis godkänner vi beslut om A-kassa, CSN eller pension. Det är brist på parkeringsplatser i området och en plats kan inte garanteras. P-plats söks via Parkering Göteborg, max en plats per hushåll.
Beskrivning av området
I Backa Röd i stadsdelen Backa på Hisingen har du alltid grönska inpå knuten. Gårdarna mellan husen är lummiga oaser med plats för lek och umgänge. Missa inte heller Poseidons eget 8 000 kvm blomsterhav i området – Värdens Park med plats för både lek och avkoppling. Husen i Backa varierar mellan låghus, radhus och höghus. I närområdet ligger Selma Lagerlöfs Torg och Backaplan med ett brett utbud av service och handel. Från Backa tar du dig in till centrala stan med buss på 17 minuter.
Viktigt om lägenheten
Lägenheten har
Vad ingår i hyran?
Hyresvärd
- Bostads AB Poseidon
- 031-3321000
- info@poseidon.goteborg.se
Så bestäms vem som får lägenheten
Läs mer om Boplats förmedlingsregler här.