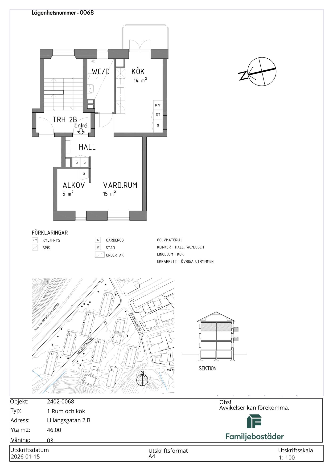
Lillängsgatan 2B
Du har sökt denna lägenhet
Sista dagen att söka denna lägenhet är 18 januari.
Ta bort min ansökanÄr du säker på att du vill ta bort din ansökan?
Antal rum: 1 rum fördelat på 46.0 m²
Hyra: 8 916 kr/mån
Inflyttning: 1 apr. 2026
Våning: 3 av 3
Anmäl senast: 18 januari
- Antal personer är högst 3
- Antal vuxna är minst 1
- Antal vuxna är högst 3
- Antal barn är minst 0
- Antal barn är högst 2
- Ålder är minst 18
Rangordning: Ködagar hos Boplats .
Kötider i detta område Under de senaste 12 månaderna har 30 stycken liknande bostäder förmedlats i området. De har förmedlats med en genomsnittlig kötid på 15 år och 100 månader.
Du måste vara inloggad för att ansöka
Hyresvärdens beskrivning
I Änggården, nära Änggårdsbergen och bara en kort promenad från Botaniska trädgården, möts stadsliv och hållbarhet i ett boende för alla. Du som bor här är inte bara hyresgäst, du är också medskapare. Genom delning, odling och återbruk formas ett mer hållbart sätt att leva tillsammans, där social samhörighet och miljöhänsyn går hand i hand. Lägenheten är hållbart renoverad med ljusa ytskikt, parkettgolv i vardags- och sovrum. Kakel och klinker i badrum. Köket har ljusa skåpluckor och förberett för diskmaskin. Växthus, odling, hönshus och cykelpool ingår i det gemensamma kvarteret. Som hyresgäst i Änggården får du som hyresgäst signera en avsiktsförklaring – ett tillägg till hyresavtalet som speglar våra gemensamma ambitioner om ett mer omtänksamt sätt att leva.Lägenheten intresseanmäls på ritning. Fysisk visning sker på dag-/kontorstid. Information om datum och tid ges om du går vidare i processen och är aktuell för erbjudande. Det råder rökförbud.
Beskrivning av området
Välkommen till Högsbo! Högsbo är ett genuint 1950-talsområde. De flesta husen är byggda i tegel i tre eller fyra våningar, kompletterade med höga punkthus. Här finns ettor till femrumslägenheter. Området är centralt beläget med bara fem minuters cykelväg till Majorna eller Linnéplatsen. Husen är varsamt inpassade mellan gröna bergsknallar och lummiga träd. På senare år har detta populära område fått tillskott av nybyggda fastigheter. Service och butiker finns nära, på Axel Dahlströms Torg.
Lägenheten har
Vad ingår i hyran?
Karta
Hyresvärd
- Familjebostäder i Göteborg AB
- 031-7316700
- info@familjebostader.se
Så bestäms vem som får lägenheten
Läs mer om Boplats förmedlingsregler här.