Spelargången 4
Du har sökt denna lägenhet
Sista dagen att söka denna lägenhet är 20 januari.
Ta bort min ansökanÄr du säker på att du vill ta bort din ansökan?
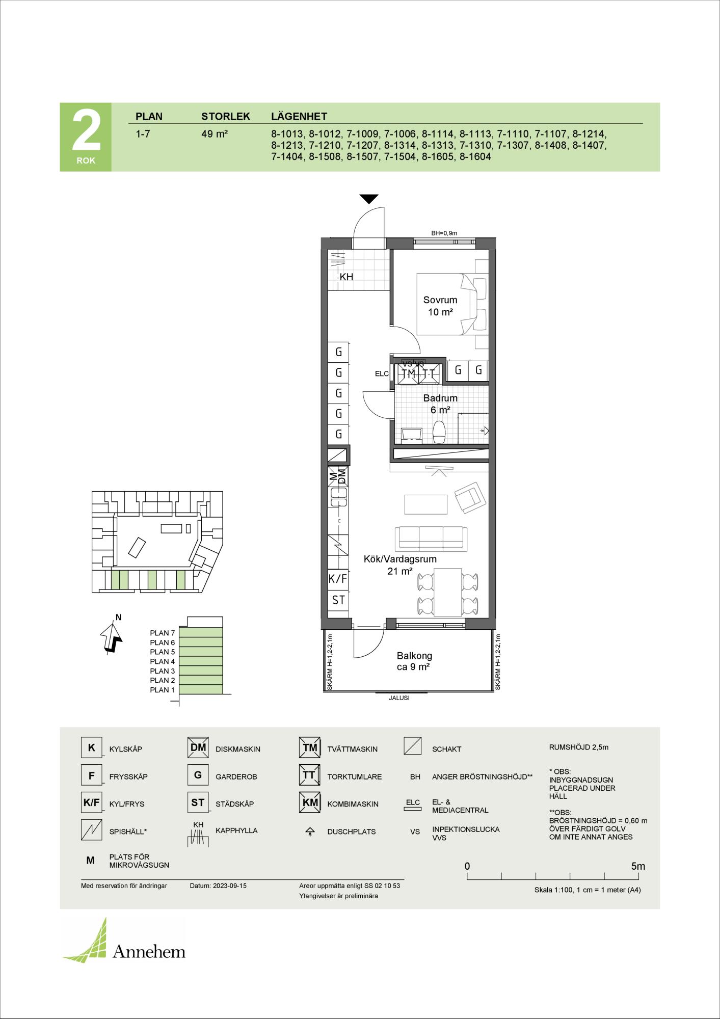
Antal rum: 2 rum fördelat på 48.6 m²
Hyra: 9 712 kr/mån
Inflyttning: 1 apr. 2024
Våning: 3 av 7
Anmäl senast: 20 januari
- Årsinkomst före skatt är minst 283000
- Huvudsaklig inkomst är något av Tjänst (lön), Näringsverksamhet, Studiemedel, Pension, A-kassa, Aktivitetsersättning, Etableringsersättning
- Antal personer är högst 3
- Antal vuxna är högst 2
- Ingen i hushållet röker
Rangordning: Ködagar hos Boplats .
Kötider i detta område Under de senaste 12 månaderna har 30 stycken liknande bostäder förmedlats i området. De har förmedlats med en genomsnittlig kötid på 15 år och 100 månader.
Du måste vara inloggad för att ansöka
Hyresvärdens beskrivning
Varmt välkommen att söka denna lägenhet som blev klar i mars 2024!
Inga betalningsanmärkningar godkänns.
Lägenheterna har genomgående målade väggar i bruten vit färg och golv i ekparkett. Badrummen har klinker på golven och är helkaklade. Duschhörnan är utrustad med duschdörrar. Det finns tvättmaskin och torktumlare i varje lägenhet. Köken har vit köksinredning från Vedum, vitt kakel ovanför en bänkskiva i laminat, spis med ugn, inbyggd Micro, kyl/frys samt fläktkåpa. Fönsterbänkar i natursten. Balkong alt. uteplats finns till alla lägenheter. Förråden till lägenheterna ligger på vinden.
Värme ingår i hyran.
El och vatten mäts individuellt och kommer att läggas till på hyresavi efter avläsning.
Det är installerat ett öppet nät via Telia i lägenheterna. Internet/ TV-leverantör väljs av lägenhetsinnehavaren genom tecknade av abonnemang direkt med leverantören.
Hiss från markplan finns. Fastigheten består av 7 våningar.
På innegården finns cykelparkering, förråd/cykelverkstad och miljörum.
Garage finns i källaren på fastigheten. I mån av plats kommer det finnas möjlighet att hyra parkering efter inflyttning. Kölista till parkeringsplatserna kommer att upprättas i samband med intresseanmälan. Kostnaden för en parkeringsplats utan el-laddare är 1200kr/mån, en parkeringsplats med el-laddare 1400kr/mån.
Det kommer även att finnas Poolbilar/cyklar från Ourgreencar för uthyrning. I poolen finns det två elbilar, en el-cykel samt en el-lådcykel.
Beskrivning av området
Områdesbeskrivning Partille
Fastigheten är belägen i Partille Kommun, 10 minuter från Göteborgs centrum.
Fastigheten ligger i den nya stadsdelen Partille Port som är den nyatablerade delen av Partille centrum. I ett stråk i form av en arkad i området finns service i form av Coop, Apoteket Kronan, restaurang, gym och café. Ett stenkast öster om området finns McDonald´s, bensinstation, Jysk, Jula, Byggmax, Blomsterlandet, Biltema, Lidl och kort västerut finns Partille gymnasium och Kulturrum med bland annat bibliotek och bio. Drygt en kilometer från området finns det populära shoppingcentret Allum samt Hälsohuset med vårdcentral, folktandvård och BVC.
Bredvid fastigheten ligger Partille Arena som är en multiarena. Här finns förutom två sporthallar också restaurang, pub, bowling och gym.
Boende i Partille Port har nära tillgång till natursköna områden, vandringsleder, sjöar och inte minst flyter Säveån endast ett par hundra meter från Fastigheten. En kort promenad från fastigheten, precis intill Säveån, har kommunen uppfört en stadspark som är utrustad med lek- och sportredskap, klätterställningar och studsmattor för att inbjuda till motion, lek och uteidrott. Bokedalens naturreservat, ett Natura 2000-område på ca 275 hektar, ligger i Jonsered i Partilles nordöstra del, några minuter från fastigheten. Området består av mycket variationsrik natur och många sjöar och flera välbesökta naturstigar och vandringsleder.
Kollektivtrafiken mellan Partille och Göteborg är väletablerad.
Gul Express avgår från hållplats Partille Arena i höjd med fastigheten varje kvart med få stopp i till Göteborg centrum. Via centrala Partille och Allum nås Nordstan och centralstationen i Göteborg på 17 minuter. Partille tågstation ligger endast 1,8 kilometer från Fastigheten och endast några minuters promenad från Allum. Härifrån avgår Västtåg till Göteborg och Alingsås.Planskiss
Viktigt om lägenheten
Lägenheten har
Vad ingår i hyran?
Karta
Så bestäms vem som får lägenheten
Läs mer om Boplats förmedlingsregler här.