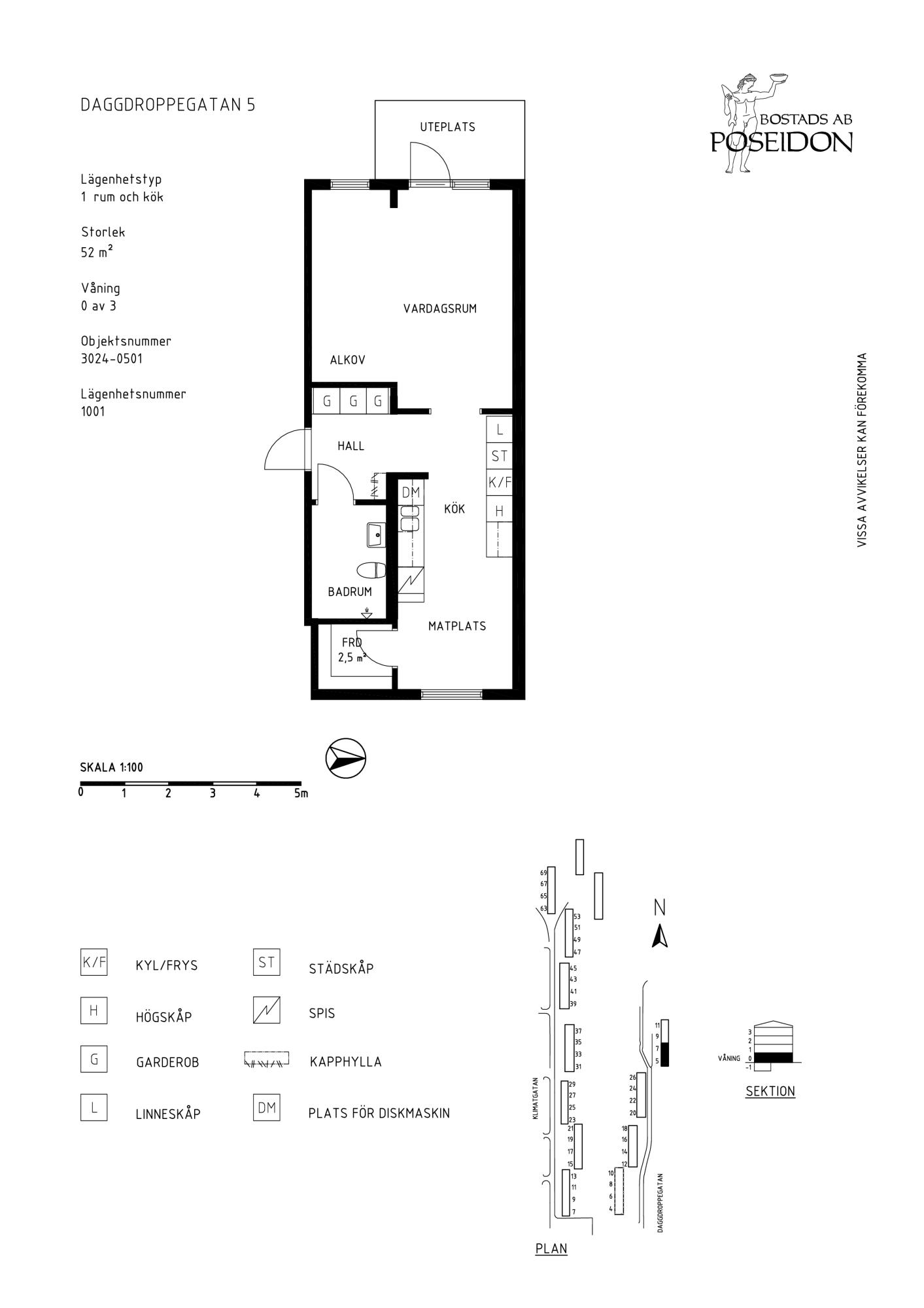
Daggdroppegatan 5
Du har sökt denna lägenhet
Sista dagen att söka denna lägenhet är 11 januari.
Ta bort min ansökanÄr du säker på att du vill ta bort din ansökan?
Antal rum: 1 rum fördelat på 52.0 m²
Hyra: 9 944 kr/mån
Inflyttning: 1 mars 2026
Våning: 0 av 3
Anmäl senast: 11 januari
Tillgänglighetsanpassad lägenhet med få trappsteg
Den här lägenheten kan passa för den som använder rullator eller käpp som hjälpmedel. Lägenheten har max fem trappsteg från entré till lägenhetsdörr.
- Antal personer är högst 3
- Antal vuxna är minst 1
- Antal vuxna är högst 3
- Antal barn är minst 0
- Antal barn är högst 2
- Ålder är minst 18
- Huvudsaklig inkomst är något av Studiemedel, A-kassa, Tjänst (lön), Pension
- Huvudsaklig sysselsättning är något av Arbete, Studier, Pension
Rangordning: Ködagar hos Boplats .
Kötider i detta område Under de senaste 12 månaderna har 30 stycken liknande bostäder förmedlats i området. De har förmedlats med en genomsnittlig kötid på 15 år och 100 månader.
Du måste vara inloggad för att ansöka
Hyresvärdens beskrivning
Välkommen till denna rymliga och smart planerade enrumslägenhet med kök på 52 kvm, belägen på markplan. Här bor du bekvämt med egen uteplats, generösa sociala ytor och genomtänkta förvaringslösningar. Lägenheten har en öppen och ljus planlösning där vardagsrum, matplats och kök flyter samman på ett naturligt sätt. Den stora uteplatsen nås direkt från vardagsrummet. I anslutning till vardagsrummet finns en alkov. Hallen erbjuder gott om förvaring i flertalet garderober. I detta område har man ett brett grönområde alldeles in på knuten. Det är bra kommunikationer med både bussar och spårvagnar. Här finns både parkeringar och parkering i parkeringsdäck att hyra. Lägenheten annonseras med inkomstkrav. För att få skriva kontrakt behöver du kunna uppvisa anställningsbevis och senaste lönespecifikation. Finns inte anställningsbevis godkänner vi beslut om A-kassa, CSN eller pension.
Beskrivning av området
Att bo i Länsmansgården på Hisingen ger närhet till både staden de stora naturområdena som omger stadsdelen. Ljusa, fina fasader och välkomnande entréer möter besökaren på Daggdroppegatan och Klimatgatan. Mellan husen finns generösa grönområden med plats för lek och umgänge. På Länsmanstorget finns livsmedelsaffär samt viss övrig service. I stadsdelens södra ände vid sjön Svarte Mosse hittar du löpspår och naturstigar.
Viktigt om lägenheten
Lägenheten har
Vad ingår i hyran?
Karta
Hyresvärd
- Bostads AB Poseidon
- 031-3321000
- info@poseidon.goteborg.se
Så bestäms vem som får lägenheten
Läs mer om Boplats förmedlingsregler här.