Glasmästaregatan 21
Du har sökt denna lägenhet
Sista dagen att söka denna lägenhet är 28 december.
Ta bort min ansökanÄr du säker på att du vill ta bort din ansökan?
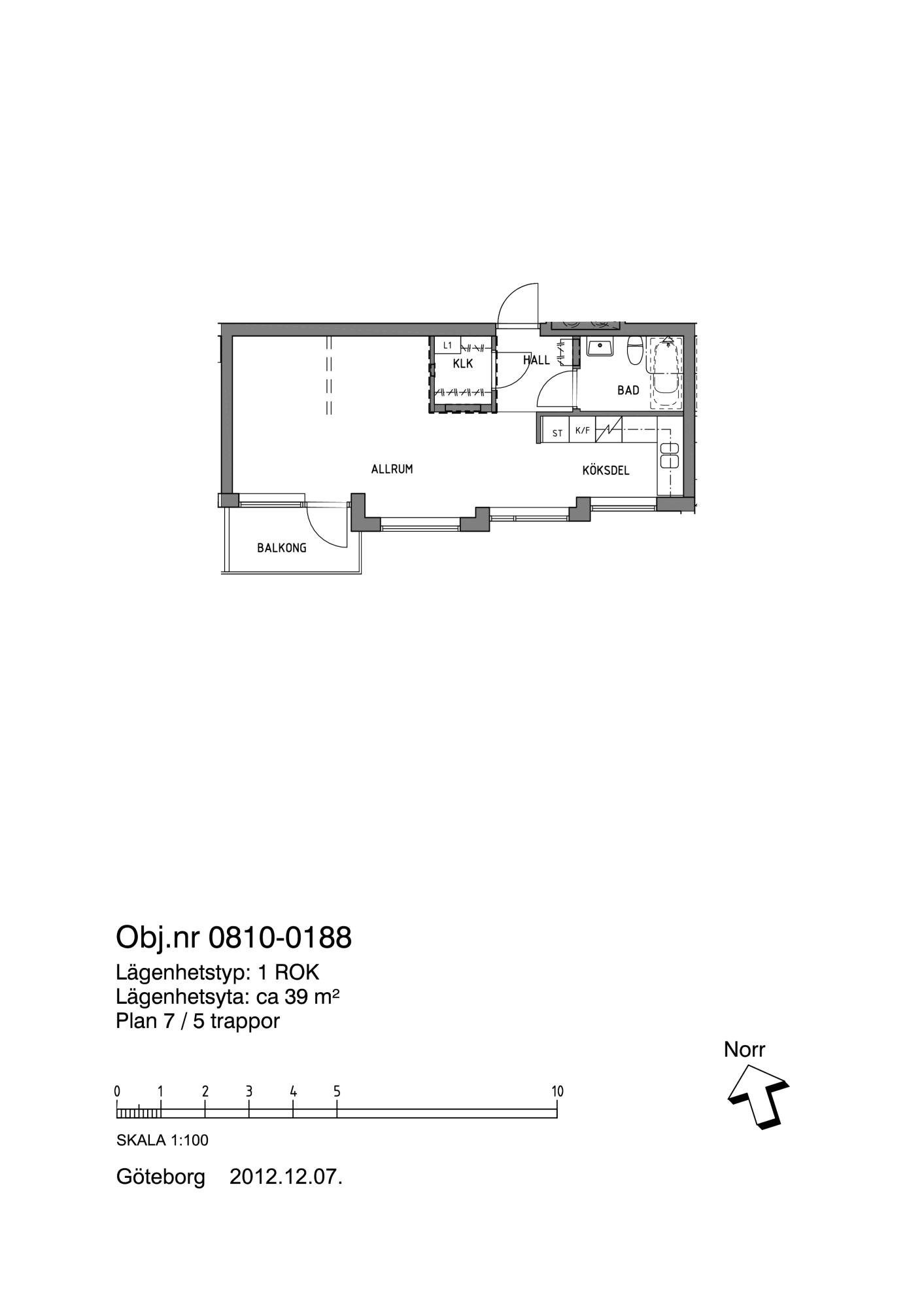
Antal rum: 1 rum fördelat på 39.0 m²
Hyra: 8 061 kr/mån
Inflyttning: 1 feb. 2026
Våning: 4 av 5
Anmäl senast: 28 december
Tillgänglighetsanpassad lägenhet med få trappsteg
Den här lägenheten kan passa för den som använder rullator eller käpp som hjälpmedel. Lägenheten har max fem trappsteg från entré till lägenhetsdörr.
- Antal personer är högst 3
- Antal vuxna är minst 1
- Antal vuxna är högst 3
- Antal barn är minst 0
- Antal barn är högst 2
- Ålder är minst 18
Rangordning: Ködagar hos Boplats .
Kötider i detta område Under de senaste 12 månaderna har 30 stycken liknande bostäder förmedlats i området. De har förmedlats med en genomsnittlig kötid på 15 år och 100 månader.
Du måste vara inloggad för att ansöka
Hyresvärdens beskrivning
Lägenhet på våning 4 med balkong i söderläge. Entrédörren är en säkerhetsdörr. Bostaden består av ett rum och kök med öppen planlösning. Köket är utrustat med keramisk spishäll och spisfläkt. Badrummet är helkaklat och utrustat med dusch. Lediga parkeringsplatser finns i området och söks separat via Poseidons hemsida efter inflyttning.
Beskrivning av området
I lugna och gröna Krokslätt, beläget i sluttningarna mellan Guldheden och Mölndal, råder en småskalig charm med gott om grönområden och parker. I området finns såväl nya, moderna bostäder som äldre hus. I kvarteren finns några mindre butiker. Det centrala läget och goda kommunikationer ger dessutom tillgång till Göteborgs stadskärnas hela utbud av shopping,
Viktigt om lägenheten
Lägenheten har
Vad ingår i hyran?
Karta
Hyresvärd
- Bostads AB Poseidon
- 031-3321000
- info@poseidon.goteborg.se
Så bestäms vem som får lägenheten
Läs mer om Boplats förmedlingsregler här.