Betselvägen 10
Du har sökt denna lägenhet
Sista dagen att söka denna lägenhet är 21 december.
Ta bort min ansökanÄr du säker på att du vill ta bort din ansökan?
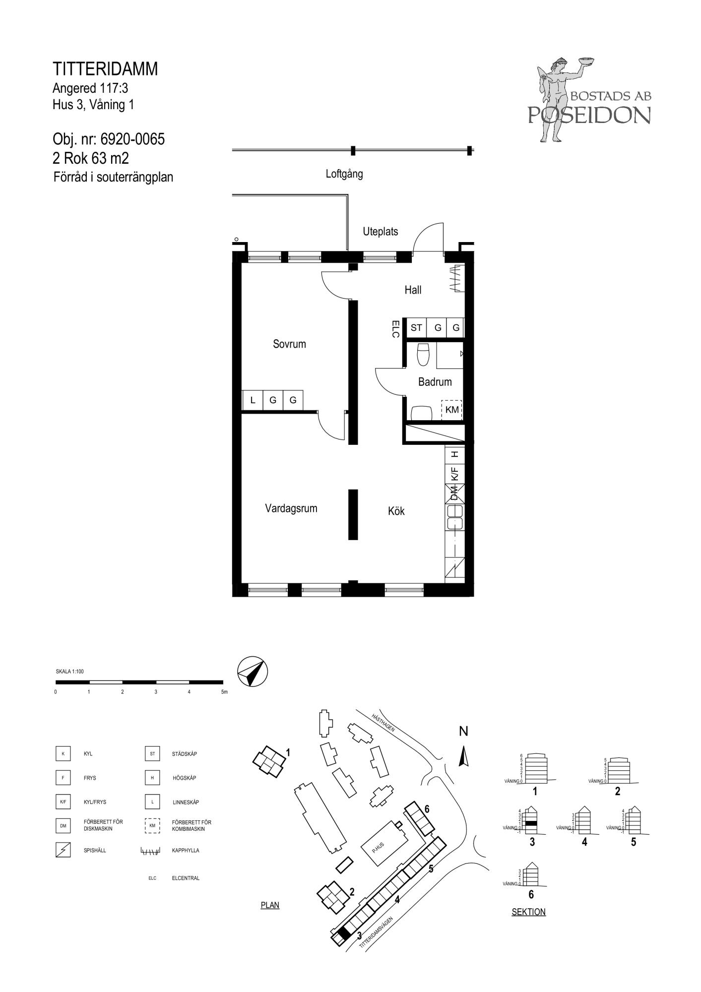
Antal rum: 2 rum fördelat på 63.0 m²
Hyra: 11 299 kr/mån
Inflyttning: 1 feb. 2026
Våning: 1 av 4
Anmäl senast: 21 december
Tillgänglighetsanpassad lägenhet med få trappsteg
Den här lägenheten kan passa för den som använder rullator eller käpp som hjälpmedel. Lägenheten har max fem trappsteg från entré till lägenhetsdörr.
- Antal personer är högst 4
- Antal vuxna är minst 1
- Antal vuxna är högst 4
- Antal barn är minst 0
- Antal barn är högst 3
- Ålder är minst 18
- Huvudsaklig inkomst är något av Studiemedel, A-kassa, Tjänst (lön), Pension
- Antal personer är minst 1
Rangordning: Ködagar hos Boplats .
Kötider i detta område Under de senaste 12 månaderna har 30 stycken liknande bostäder förmedlats i området. De har förmedlats med en genomsnittlig kötid på 15 år och 100 månader.
Du måste vara inloggad för att ansöka
Hyresvärdens beskrivning
En smakfullt planerad och öppen tvårumslägenhet med kök på våning 1 av 4. Här möts du av genomgående ekparkettgolv, ett stilrent vitt kök och ett helkaklat badrum i tidlös design. Här erbjuds även goda förvaringsmöjligheter, generösa fönsterpartier som släpper in rikligt med ljus samt en stor härlig uteplats - perfekt för sociala stunder. Tillhörande förråd finns antingen på vinden eller i källaren. Parkeringsplats ansöks via Göteborgs stad. Lägenheten annonseras med inkomstkrav. Inkomstkravet för denna lägenhet är att sökandes månadsinkomst efter skatt måste överstiga grundhyran. För att kunna söka lägenheten måste du ladda upp anställningsbevis och senaste lönespecifikation. Finns inte anställningsbevis godkänner vi beslut om A-kassa, CSN eller pension.
Beskrivning av området
Poseidons bostäder i Angered Centrum ligger på Länkharvs- och Fjäderharvsgatan. Här finns radhus i två eller tre våningsplan med entréer från gården, samt fyravåningshus där lägenheterna i markplan har uteterrasser. Vid Angered centrum finns bland annat Angereds Närsjukhus, ett resecentrum, Angered Arena med sim- och ishall, mataffärer, klädbutiker och annan service. Angered har naturen inpå knuten och här är det nära till både bad och friluftsliv i naturreservatet Vättlefjäll med sin orörda natur.
Viktigt om lägenheten
Lägenheten har
Vad ingår i hyran?
Karta
Hyresvärd
- Bostads AB Poseidon
- 031-3321000
- info@poseidon.goteborg.se
Så bestäms vem som får lägenheten
Läs mer om Boplats förmedlingsregler här.