Krimlanns Gård 24
Du har sökt denna lägenhet
Sista dagen att söka denna lägenhet är 8 december.
Ta bort min ansökanÄr du säker på att du vill ta bort din ansökan?
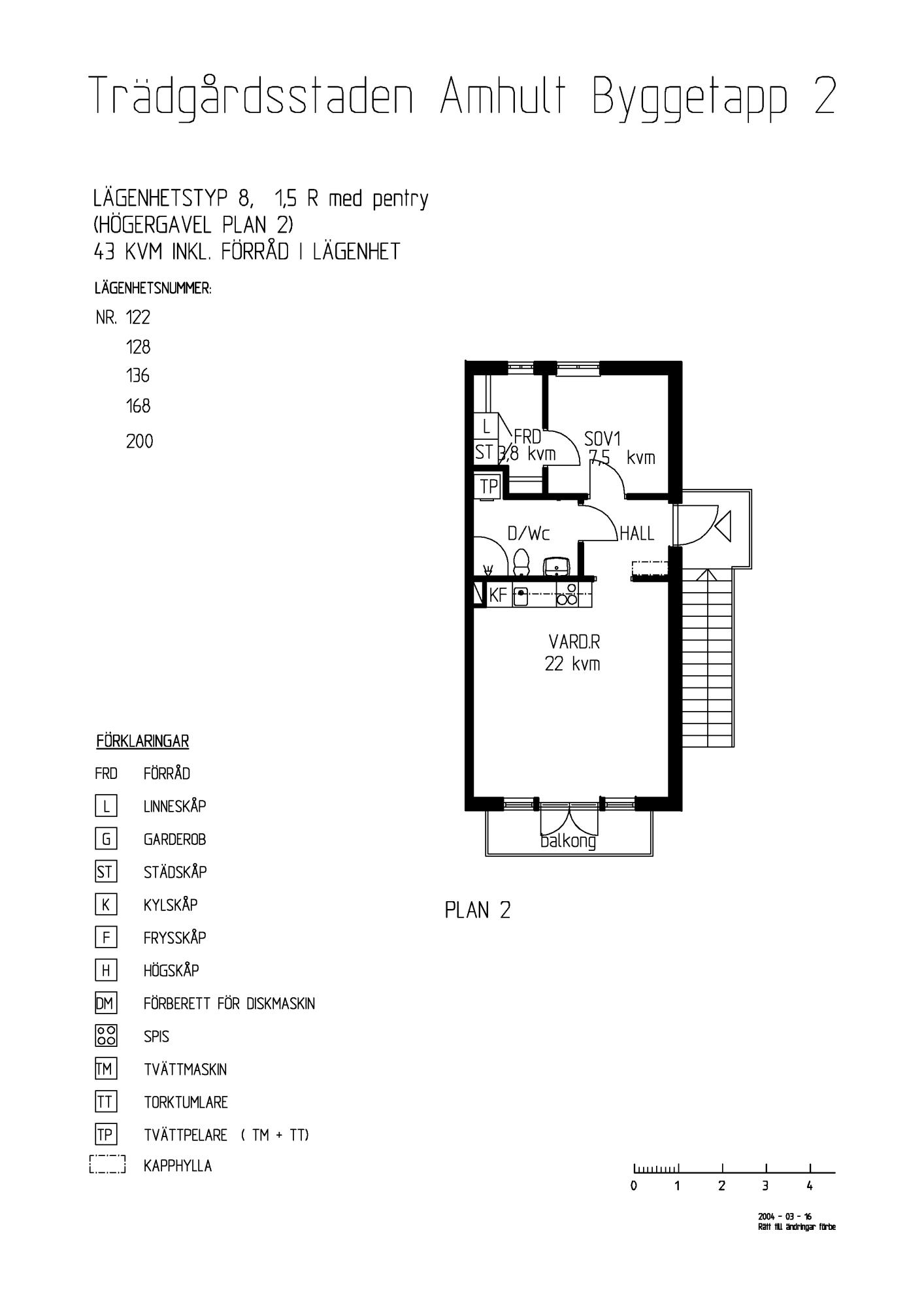
Antal rum: 2 rum fördelat på 43.0 m²
Hyra: 6 915 kr/mån
Inflyttning: 16 jan. 2026
Våning: 1 av 1
Anmäl senast: 8 december
- Antal personer är högst 4
- Antal vuxna är minst 1
- Antal vuxna är högst 4
- Antal barn är minst 0
- Antal barn är högst 3
- Ålder är minst 18
Rangordning: Ködagar hos Boplats .
Kötider i detta område Under de senaste 12 månaderna har 30 stycken liknande bostäder förmedlats i området. De har förmedlats med en genomsnittlig kötid på 15 år och 100 månader.
Du måste vara inloggad för att ansöka
Hyresvärdens beskrivning
Lägenhet på 2 rum och kokvrå med balkong i Amhult Trädgårdsstaden. Trappan till lägenheten är på utsidan av huset, ej hiss. Öppen planlösning mellan kokvrå och vardagsrum. Tvättpelare i badrummet. Yttre skötselansvar av ett begränsat område i anslutning till lägenheten ingår. Underhåll från 2025: målning/tapetsering av väggar, nytt linoleumgolv i sovrum och förråd, nytt parkettgolv i kokvrå/vardagsrum. Spis, tvättmaskin och torktumlare är från 2025. Kyl/frys är från 2023. Visning utförs av Bostadsbolagets personal.
Beskrivning av området
En lummig oas nära Amhults centrum och med cykelavstånd till havet. Husen går i varma färger på två och en halv våning. Många lägenheter har uteplatser och bor man högre upp i huset har man balkong. Vi har två rum och kokvrå upp till fem rum och kök. Vanligast är treor. Alla lägenheter har egen tvättmaskin och torktumlare. För den som vill finns det även odlingslotter att hyra.
Lägenheten har
Vad ingår i hyran?
Karta
Hyresvärd
- Göteborgs stads bostadsaktiebolag
- 031-7315000
- info@bostadsbolaget.se
Så bestäms vem som får lägenheten
Läs mer om Boplats förmedlingsregler här.