Lantbruksgatan 23A
Du har sökt denna lägenhet
Sista dagen att söka denna lägenhet är 11 december.
Ta bort min ansökanÄr du säker på att du vill ta bort din ansökan?
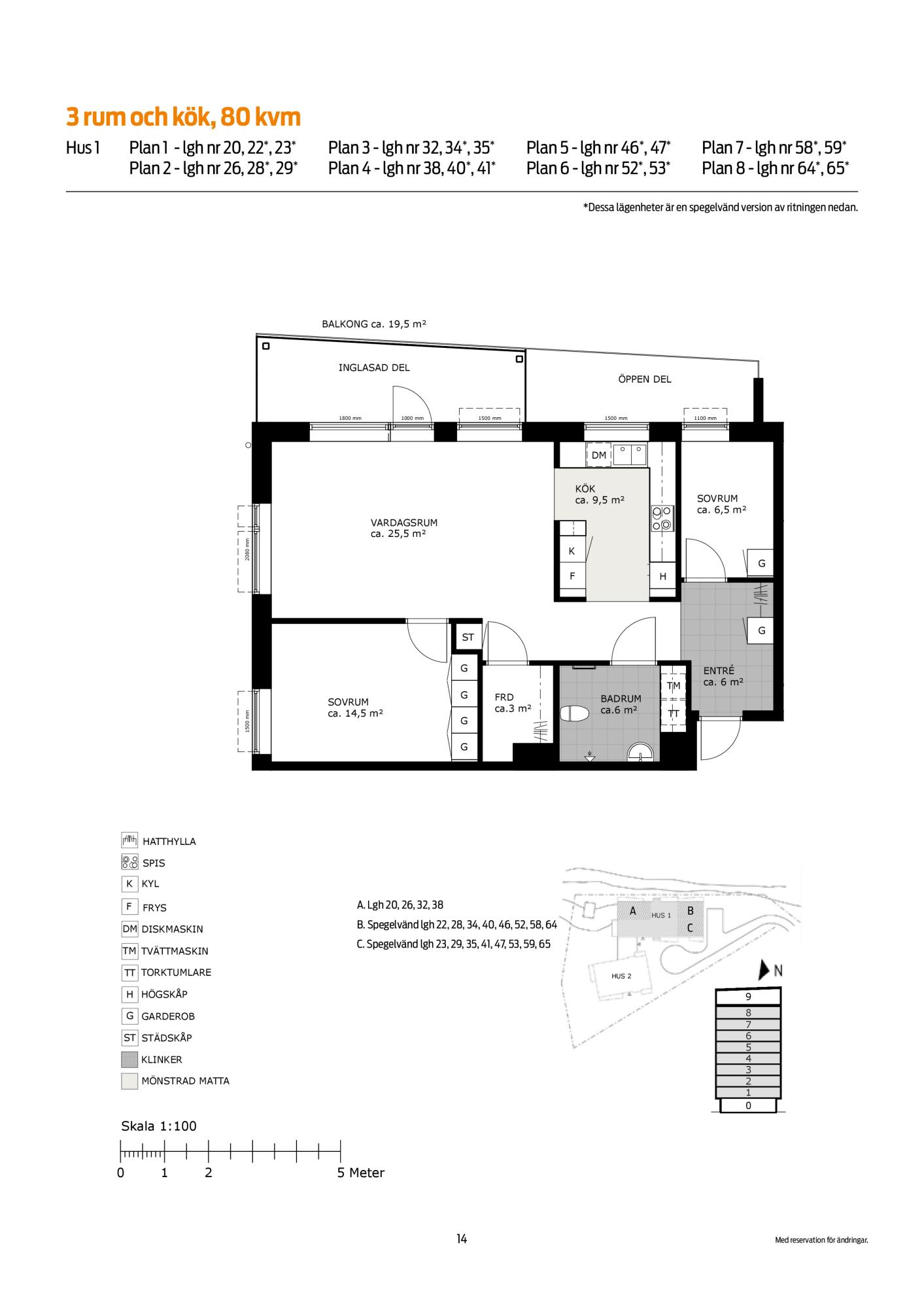
Antal rum: 3 rum fördelat på 80.0 m²
Hyra: 13 816 kr/mån
Inflyttning: 1 feb. 2026
Våning: 2 av 8
Anmäl senast: 11 december
- Ålder är minst 65
Rangordning: Ködagar hos Boplats .
FÖRETRÄDE bland de som har anmält intresse
- Nuvarande hyresvärd är Mölndalsbostäder
- Nuvarande boendeform är Hyresrätt
- Dagar hos hyresvärden är minst 1
Rangordning: Dagar hos hyresvärden .
Kötider i detta område Under de senaste 12 månaderna har 30 stycken liknande bostäder förmedlats i området. De har förmedlats med en genomsnittlig kötid på 15 år och 100 månader.
Du måste vara inloggad för att ansöka
Hyresvärdens beskrivning
Om lägenheten
I lägenheten finns genomgående ekparkett, vitmålade väggar och fönsterbänkar av marmor. Lägenheterna har tvättmaskin, torktumlare och diskmaskin.
Fastigheten är tillgänglighetsanpassad.
Om Trygghetsboende Bifrost
Här bor du i ljusa och funktionella lägenheter. Trygghetsboendet är fördelat på två byggnader, med en välkomnande entré och lounge som knyter ihop de båda huskropparna. Boendet är bemannad med en värd under vissa tider, som till exempel kan bistå med organisering av gemensamma aktiviteter dagtid. Övriga tjänster som t.ex. hemtjänst söks sedvanligt hos kommun.
Som boende på Trygghetsboendet har du tillgång till flera gemensamma utrymmen – bland annat en lounge, ett kombinerat bibliotek och vardagsrum med kök, gym, bastu, relaxavdelning samt en gemensam takterrass. En serviceavgift för dessa bekvämligheter ingår i hyran. Det finns även en gemensam trädgård med boulebana och ett växthus – perfekt för dig som vill odla egna grönsaker eller bara njuta av grönskan tillsammans med grannar.
Boendet vänder sig till hushåll där minst en person fyllt 60 år.
Trygghetsboendet i Bifrost ligger lugnt och naturskönt vid foten av Änggårdsbergen, med fina promenadstråk inpå knuten.
Beskrivning av området
Kommunikationer
Utmärkta kommunikationer i form av buss mot Mölndals innerstad eller mot Göteborg centrum. Närmaste livsmedelsbutik ligger cirka 400 meter bort och till Mölndals innerstad är det två kilometer. Där finns ett fint utbud av butiker, restauranger, kaféer, bibliotek och kultur.
Parkering
Parkeringar i området hyrs ut digitalt av Mölndals Parkering. Har du frågor om kostnader och möjligheter till parkering, vänligen ta kontakt med Mölndals Parkering.
Vill du veta mer? Läs mer om boendeformen trygghetsboende här
Viktigt om lägenheten
Lägenheten har
Vad ingår i hyran?
Karta
Hyresvärd
- Mölndalsbostäder
- 031-720 84 00
- kundcenter@molndalsbostader.se
Så bestäms vem som får lägenheten
Läs mer om Boplats förmedlingsregler här.