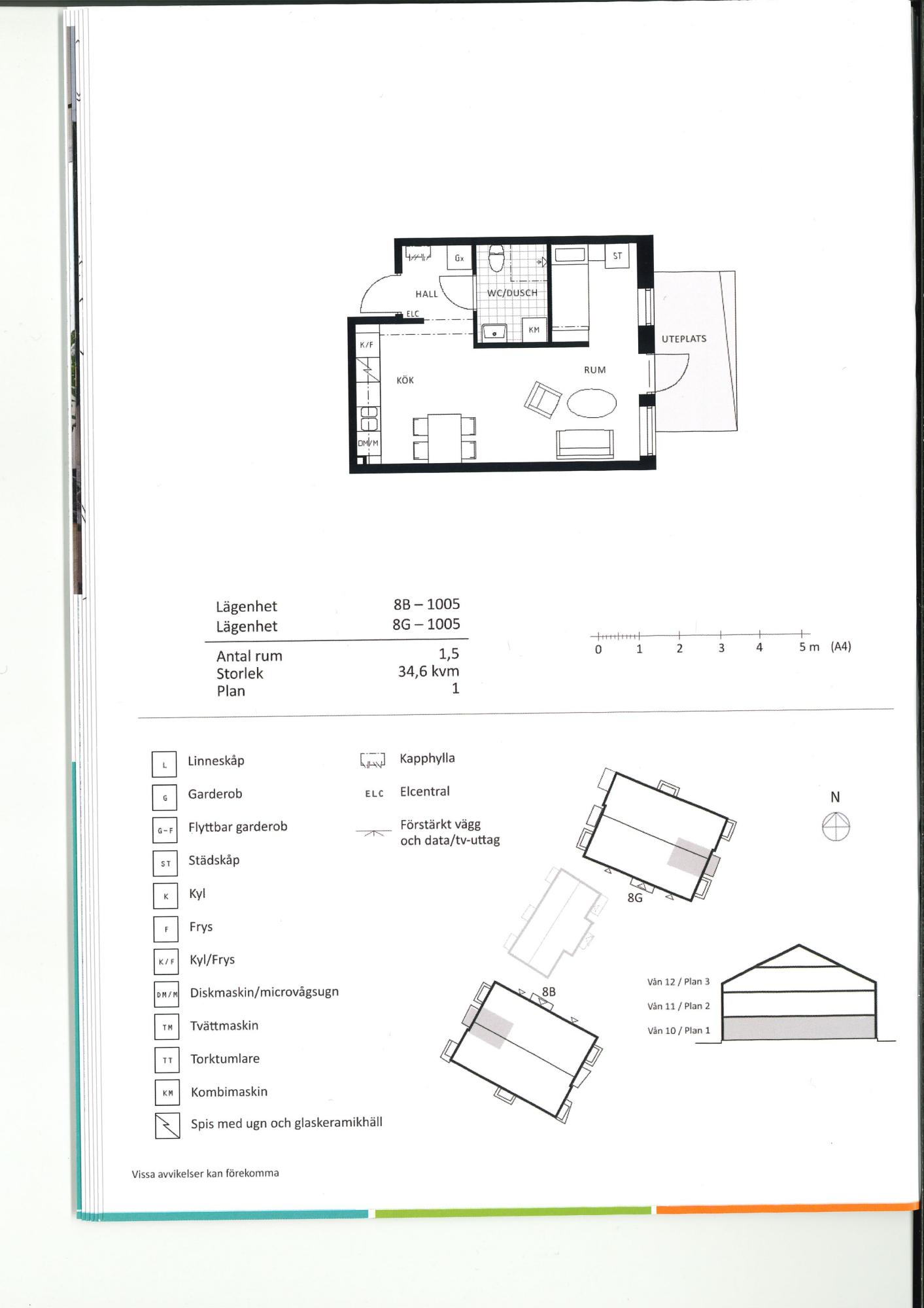
Kyrkvägen 8B
Du har sökt denna lägenhet
Sista dagen att söka denna lägenhet är 11 mars.
Ta bort min ansökanÄr du säker på att du vill ta bort din ansökan?
Antal rum: 1 rum fördelat på 35.0 m²
Hyra: 6 722 kr/mån
Inflyttning: 1 juni 2026
Våning: 0 av 2 (Markplan)
Anmäl senast: 11 mars
- Årsinkomst före skatt är minst 161330
- Antal personer är högst 2
Rangordning: Ködagar hos Boplats .
FÖRETRÄDE bland de som har anmält intresse
-
I första hand
- Poäng hos hyresvärden är minst 1
Rangordning: Poäng hos hyresvärden .
-
I andra hand
- Ålder är minst 18
Rangordning: Ködagar hos Boplats .
Kötider i detta område Under de senaste 12 månaderna har 30 stycken liknande bostäder förmedlats i området. De har förmedlats med en genomsnittlig kötid på 15 år och 100 månader.
Du måste vara inloggad för att ansöka
Hyresvärdens beskrivning
Beskrivning av området
Mitt på Björkö producerar vi på Öckerö Fastigheter 39 nya hyreslägenheter. Bostadsområdet byggs centralt på Björkö med korta avstånd till såväl förskola/grundskola, kollektivtrafik och livsmedelsbutik.
Alla lägenheter kommer ha tvättmaskin och torktumlare (kombimaskiner i 1:or & 2:or), diskmaskin, induktionshäll och inbyggnadsugn. Alla badrum förses med kakel och klinker. Golv i sovrum och vardagsrum är av laminat i träimitation. Separata lägenhetsförråd finns för varje lägenhet. Dessa finns antingen i bottenplan på hus 2 eller på våning 3 i hus 1 och 3.
I hyran ingår uppvärmning. Hyresgäst betalar för sin egna förbrukning av varm- och kallvatten samt tecknar eget el abonnemang. Alla lägenheter ansluts med fiber men man tecknar egna abonnemang för bredband och TV genom det öppna stadsnätet. Områdesparkering kommer finnas i området via digitalt parkeringstillstånd. Månadskostnad 500 kr. Korttidsparkering för besökare erbjuds inom samma område.
Planskiss
Lägenheten har
Vad ingår i hyran?
Karta
Så bestäms vem som får lägenheten
Läs mer om Boplats förmedlingsregler här.