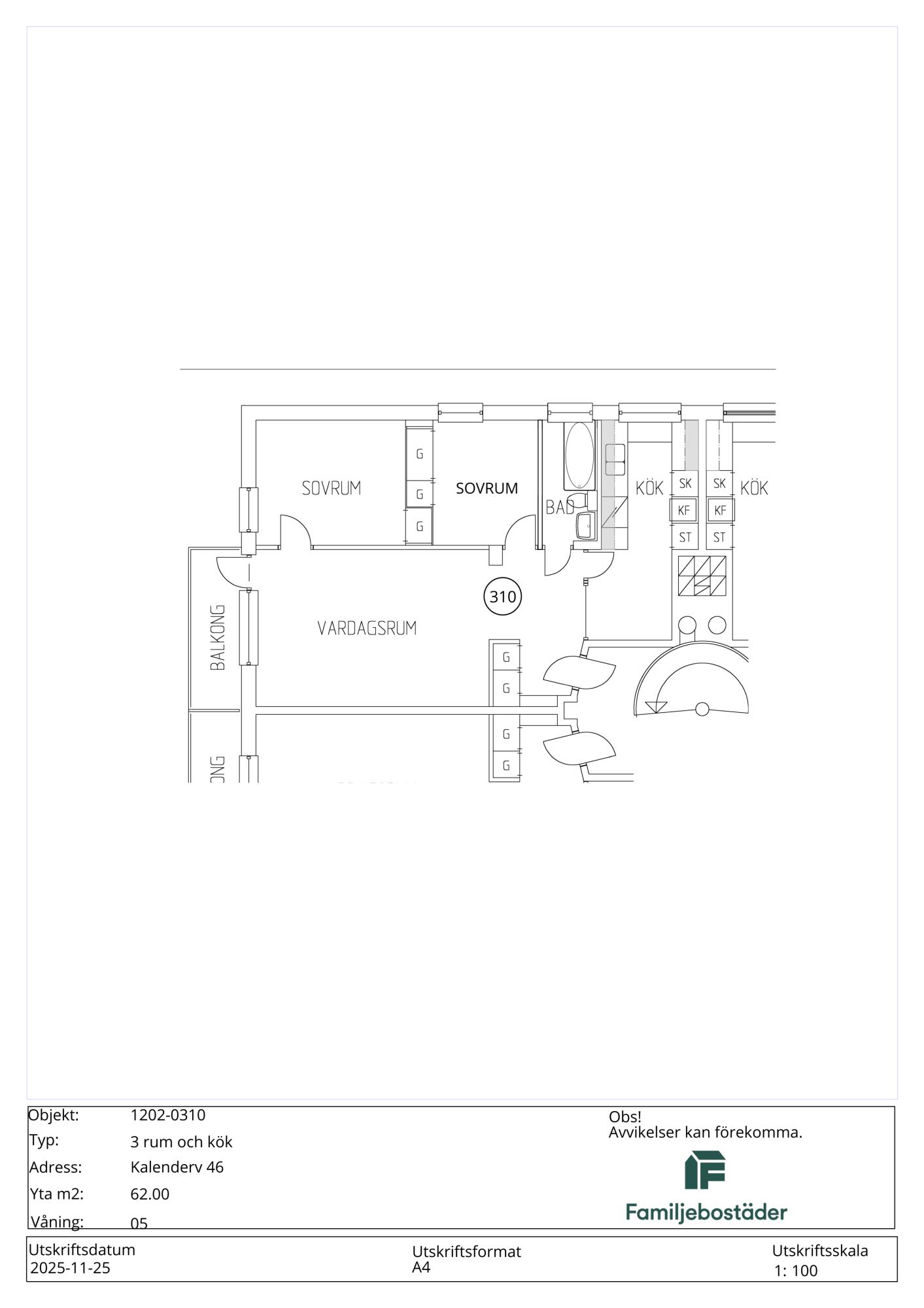
Kalendervägen 46
Du har sökt denna lägenhet
Sista dagen att söka denna lägenhet är 27 november.
Ta bort min ansökanÄr du säker på att du vill ta bort din ansökan?
Antal rum: 3 rum fördelat på 62.0 m²
Hyra: 7 296 kr/mån
Inflyttning: 1 feb. 2026
Våning: 5 av 10
Anmäl senast: 27 november
Tillgänglighetsanpassad lägenhet med få trappsteg
Den här lägenheten kan passa för den som använder rullator eller käpp som hjälpmedel. Lägenheten har max fem trappsteg från entré till lägenhetsdörr.
- Antal personer är högst 6
- Antal vuxna är minst 1
- Antal vuxna är högst 6
- Antal barn är minst 0
- Antal barn är högst 5
- Ålder är minst 18
Rangordning: Ködagar hos Boplats .
Kötider i detta område Under de senaste 12 månaderna har 30 stycken liknande bostäder förmedlats i området. De har förmedlats med en genomsnittlig kötid på 15 år och 100 månader.
Du måste vara inloggad för att ansöka
Hyresvärdens beskrivning
Familjebostäder vill skapa ett tryggt, trivsamt och klimatvänligt boende för alla sina hyresgäster. Vi lyssnar på våra boende, vilka behov som finns och vad som behöver utvecklas. Denna 3 rums lägenhet på 5:e våning är belägen i Kortedala, för mer information om området se områdesbeskrivning nedan. Lägenhet med genomgående ljusa vägggar. Vardagsrum med träparkett & utgång till inglasad balkong. Kök med linoleumgolv, ljusa luckor, vitt kakel & brun bänkskiva. Badrum med klinkersgolv, kaklade väggar, handdukstork & badkar. Denna lägenhet söks på planlösning. Om du som sökande går vidare i processen och blir aktuell för ett erbjudande kommer det att erbjudas en fysisk visning samt bilder på lägenheten.
Beskrivning av området
Välkommen till Kortedala! Området ligger på en höjd, omgivet av skog. De flesta hus går i typisk 1950-talsstil med tre våningar, balkonger och röda, bruna eller gula tegelfasader. På Kalendervägen finns några högre punkthus som lockar med imponerande utsikt från inglasade balkonger. Här finns ettor till fyror. I Kortedala bor man med naturen som närmaste granne. För motionären finns här flera motionsslingor, idrottsföreningar, en motionscentral och ishall.
Viktigt om lägenheten
Lägenheten har
Vad ingår i hyran?
Karta
Hyresvärd
- Familjebostäder i Göteborg AB
- 031-7316700
- info@familjebostader.se
Så bestäms vem som får lägenheten
Läs mer om Boplats förmedlingsregler här.