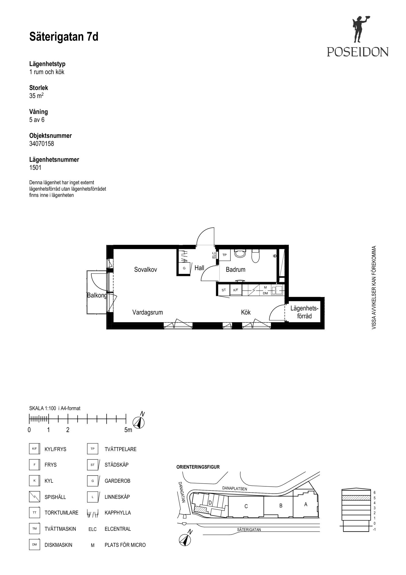
Säterigatan 7D
Du har sökt denna lägenhet
Sista dagen att söka denna lägenhet är 9 november.
Ta bort min ansökanÄr du säker på att du vill ta bort din ansökan?
Antal rum: 1 rum fördelat på 35.0 m²
Hyra: 8 197 kr/mån
Inflyttning: 4 mars 2026
Våning: 5 av 6
Anmäl senast: 9 november
Tillgänglighetsanpassad lägenhet med få trappsteg
Den här lägenheten kan passa för den som använder rullator eller käpp som hjälpmedel. Lägenheten har max fem trappsteg från entré till lägenhetsdörr.
- Antal personer är högst 3
- Antal vuxna är minst 1
- Antal vuxna är högst 3
- Antal barn är minst 0
- Antal barn är högst 2
- Ålder är minst 18
- Huvudsaklig inkomst är något av Försörjningsstöd, Studiemedel, A-kassa, Tjänst (lön), Pension
- Ålder är högst 99
- Antal personer är minst 1
Rangordning: Ködagar hos Boplats .
Kötider i detta område Under de senaste 12 månaderna har 30 stycken liknande bostäder förmedlats i området. De har förmedlats med en genomsnittlig kötid på 15 år och 100 månader.
Du måste vara inloggad för att ansöka
Hyresvärdens beskrivning
Dessa lägenheter hyrs ut på ritning och är i 2025 års hyresnivå. Välkommen till vårt nybyggda hus på Säterigatan! Här bor du nära Eriksberg och den vackra strandpromenaden längs kajen. Lägenheterna är ljusa med öppen planlösning och vitlaserad parkett i alla rum. Badrummen är kaklade med klinkergolv och egen tvättpelare. Vi gör det enkelt för dig att resa hållbart. Du får tillgång till cykelpool med el- och lastcyklar, cykelservicerum och i närheten finns en bilpool om du behöver låna bil. Du som flyttar in får även resa gratis med Västtrafik i 90 dagar. Läs mer om kvarteret och se lägenheterna i vår bostadsväljare på: poseidon.goteborg.se/nya-bostader Lägenheten annonseras med inkomstkrav. Inkomstkravet för denna lägenhet är att sökandes månadsinkomst efter skatt måste överstiga grundhyran. För att få skriva kontrakt behöver du kunna uppvisa anställningsbevis och senaste lönespecifikation. Finns inte anställningsbevis godkänner vi beslut om A-kassa, CSN, försörjningsstöd eller pension.
Beskrivning av området
Kyrkbyn på Hisingen är ett trivsamt område med gott om gröna ytor och plats för aktiviteter. Norra Älvstrandens hamnstråk och växande utbud av service ligger bara ett stenkast bort. Kyrkbytorget på Eketrägatan erbjuder bra kommunikationer samt ett mindre utbud av närservice och butiker. Våra hus i Kyrkbyn och Lundby, som också ingår i området, varierar mellan allt från göteborgstypiska landshövdingehus och tre- och flervånings 1950-talshus till Fyrväpplingsgatans nybyggda hus.
Viktigt om lägenheten
Lägenheten har
Vad ingår i hyran?
Karta
Hyresvärd
- Bostads AB Poseidon
- 031-3321000
- info@poseidon.goteborg.se
Så bestäms vem som får lägenheten
Läs mer om Boplats förmedlingsregler här.