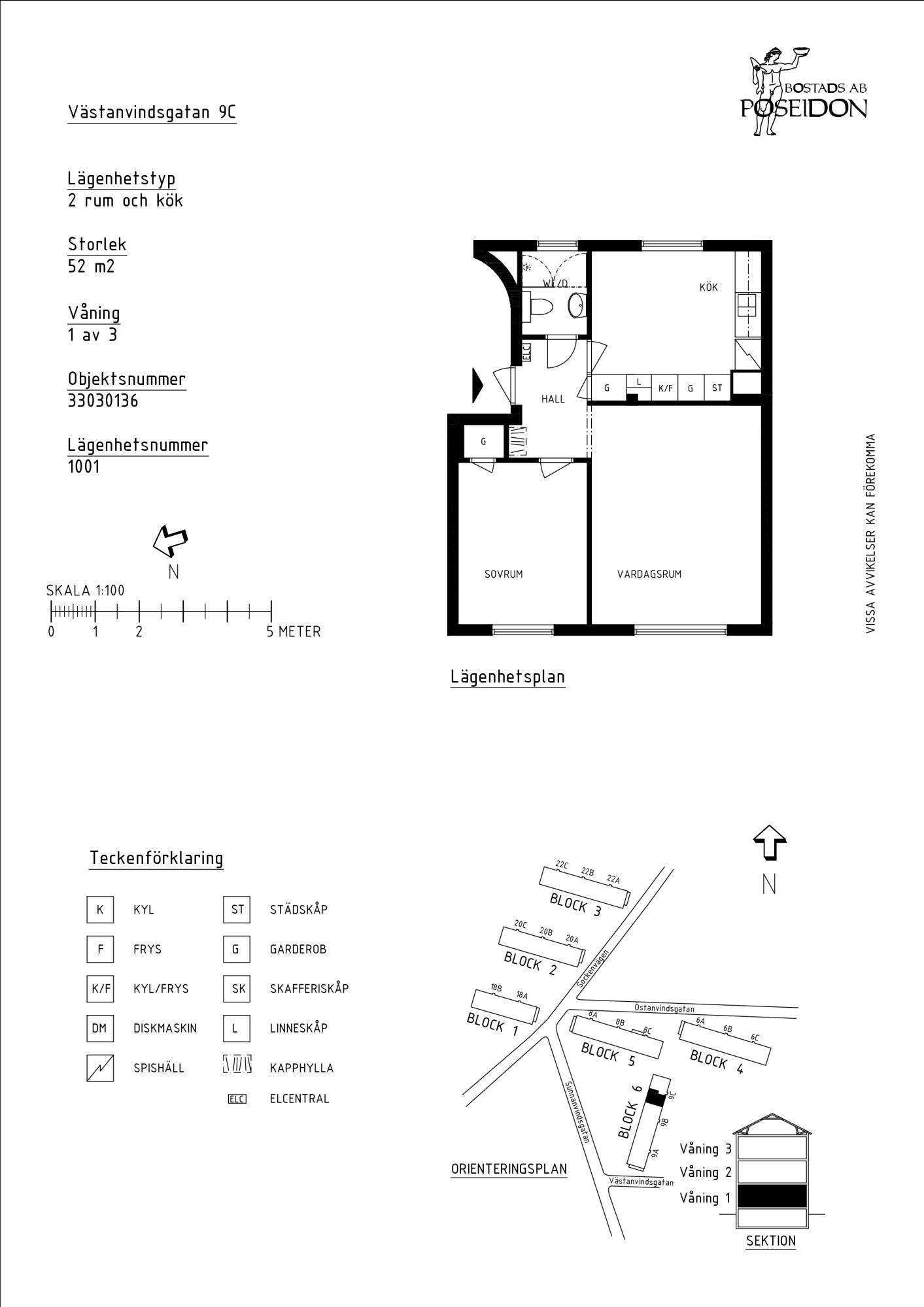
Västanvindsgatan 9C
Du har sökt denna lägenhet
Sista dagen att söka denna lägenhet är 4 november.
Ta bort min ansökanÄr du säker på att du vill ta bort din ansökan?
Antal rum: 2 rum fördelat på 50.8 m²
Hyra: 8 479 kr/mån
Inflyttning: 1 dec. 2025
Våning: 0 av 2
Anmäl senast: 4 november
- Antal personer är högst 4
 - Antal vuxna är minst 1
 - Antal vuxna är högst 4
 - Antal barn är minst 0
 - Antal barn är högst 3
 - Ålder är minst 18
 
Rangordning: Ködagar hos Boplats .
Kötider i detta område Under de senaste 12 månaderna har 30 stycken liknande bostäder förmedlats i området. De har förmedlats med en genomsnittlig kötid på 15 år och 100 månader.
Du måste vara inloggad för att ansöka
Hyresvärdens beskrivning
Nu har vi en helt nyrenoverad fin lägenhet att publicera i detta omtyckta område, med både närhet till grönområden och bra kommunikationer från Wieselgrensplatsen. Parkering söker ni på vår hemsida.
Beskrivning av området
I Kvillebäcken på centrala Hisingen bor du nära både innerstan och lummiga park- och strövområden. Bostäderna består av allt ifrån nybyggda lägenheter till 1950-talshus och göteborgstypiska landshövdingehus från 1930- till 40-talet. Här bor man med närhet till kommunikationer, service och handel på Wieselgrensplatsen samt köpcentrat Backaplan. Med S.A. Hedlunds park och uppskattade Flunsåsparken runt hörnet har man också nära till ströv- och motionsområden.
Lägenheten har
Vad ingår i hyran?
Karta
Hyresvärd
- Bostads AB Poseidon
 - 031-3321000
 - info@poseidon.goteborg.se
 
Så bestäms vem som får lägenheten
Läs mer om Boplats förmedlingsregler här.