Torggatan 8
Du har sökt denna lägenhet
Sista dagen att söka denna lägenhet är 6 november.
Ta bort min ansökanÄr du säker på att du vill ta bort din ansökan?
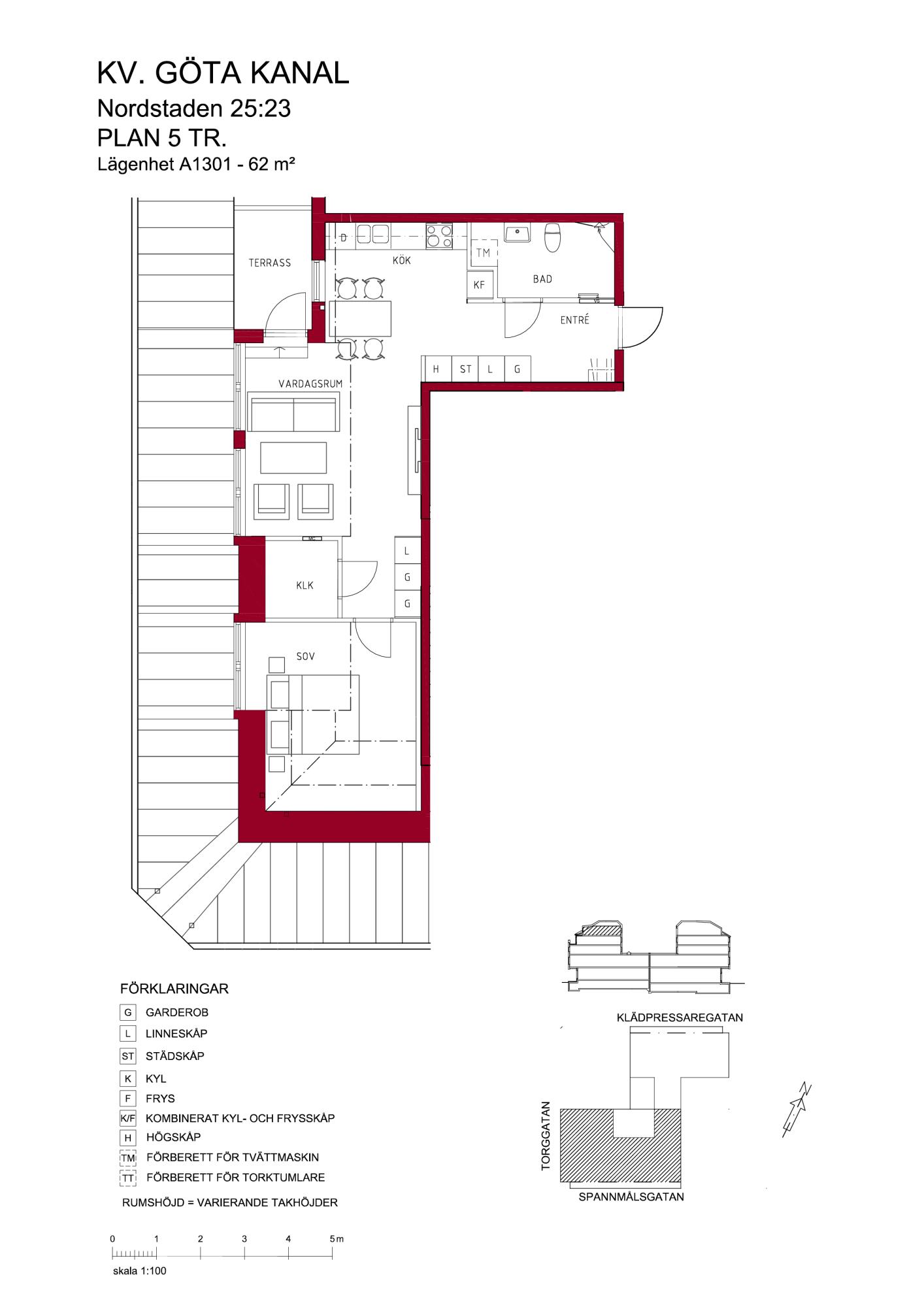
Antal rum: 2 rum fördelat på 62.0 m²
Hyra: 12 132 kr/mån
Inflyttning: 1 feb. 2026
Våning: 4 av 4
Anmäl senast: 6 november
- Ålder är minst 18
 - Huvudsaklig inkomst är något av Tjänst (lön), Näringsverksamhet, Pension
 - Årsinkomst före skatt är minst 286000
 - Antal personer är högst 2
 - Ingen i hushållet röker
 
Rangordning: Ködagar hos Boplats .
Kötider i detta område Under de senaste 12 månaderna har 30 stycken liknande bostäder förmedlats i området. De har förmedlats med en genomsnittlig kötid på 15 år och 100 månader.
Du måste vara inloggad för att ansöka
Hyresvärdens beskrivning
T o r g g a t a n 8 G B G N O R D S T A D E N 2 5 : 2 4 Lägenheternas standard Kök: Kök från Ballingslöv med vita skåpsluckor Kombinerad kyl- och frys i vitt Varmluftsugn Induktionshäll Stänkskydd i glas med en blå eller grön kulör målad bakom Förberett för diskmaskin. Badrum: Vitt kakel på väggarna Grått klinker på golvet Golvvärme Handdukstork Duschväggar i glas Förberett för tvättmaskin.
Beskrivning av området
Planskiss
Lägenheten har
Vad ingår i hyran?
Karta
Så bestäms vem som får lägenheten
Läs mer om Boplats förmedlingsregler här.