Smörslottsgatan 83
Du har sökt denna lägenhet
Sista dagen att söka denna lägenhet är 26 oktober.
Ta bort min ansökanÄr du säker på att du vill ta bort din ansökan?
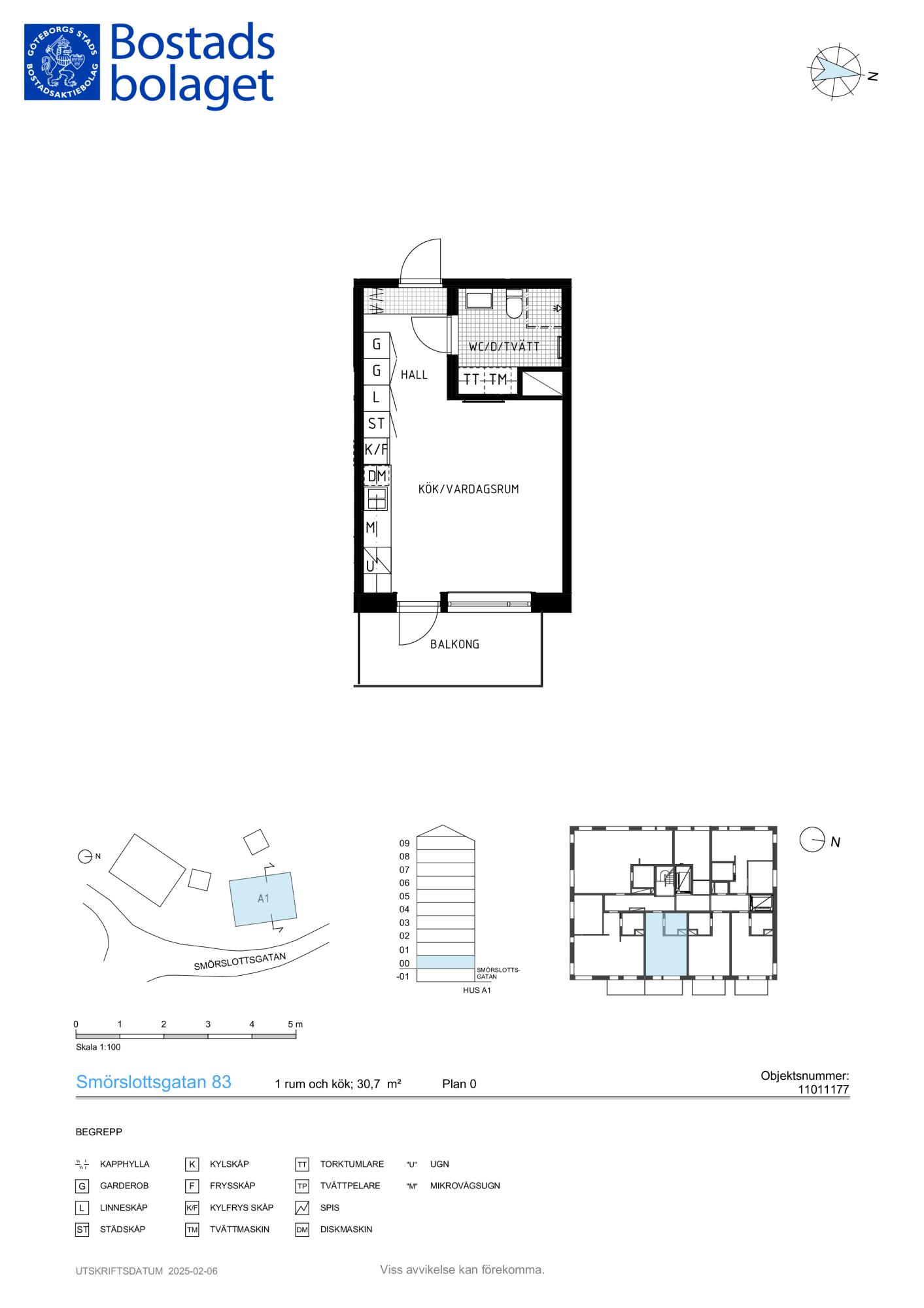
Antal rum: 1 rum fördelat på 30.0 m²
Hyra: 7 917 kr/mån
Inflyttning: 1 jan. 2026
Våning: 0 av 9
Anmäl senast: 26 oktober
Tillgänglighetsanpassad lägenhet utan trappsteg
Den här lägenheten kan passa för den som använder rullstol som hjälpmedel. Lägenheten är nivåfri från entré fram till lägenhetsdörr.
- Antal personer är högst 2
- Antal vuxna är minst 1
- Antal vuxna är högst 2
- Antal barn är minst 0
- Antal barn är högst 0
- Ålder är minst 70
- Årsinkomst före skatt är minst 0
Rangordning: Ködagar hos Boplats .
Kötider i detta område Under de senaste 12 månaderna har 30 stycken liknande bostäder förmedlats i området. De har förmedlats med en genomsnittlig kötid på 15 år och 100 månader.
Du måste vara inloggad för att ansöka
Hyresvärdens beskrivning
Just nu hyr vi ut en trygghetslägenhet för dig som är 70 år eller äldre i vårt nybyggda område Robertshöjd. Här bor du i en modern, ljus lägenhet med stilren inredning – nästan alla har balkong eller uteplats. Lägenheten är trygghetsanpassad med, spisvakt, digitalt tittöga, låga trösklar och stödhandtag i badrummet. I huset finns en gemensamhetslokal och en trygghetsvärd som finns på plats vid flera tillfällen i veckan för att skapa trivsel och gemenskap. Badrummet är helkaklat med klinkergolv och utrustat med tvättmaskin och torktumlare. Det finns möjlighet till tidigare inflytt. Du bor nära naturen med Härlanda tjärns badplats och Delsjöområdet runt hörnet. Intill finns även nya Härlandatjärnskolan. Här finns goda möjligheter till ett hållbart liv – med cykel- och bilpool, lastcykelparkering och cykelservicerum. Som nyinflyttad får du dessutom ett kostnadsfritt 90-dagars Västtrafikkort. Läs mer på vår hemsida, https://bostadsbolaget.se/nyabostader/smorlottsgatan/.
Beskrivning av området
Robertshöjd och Östra Kålltorp erbjuder en trivsam kombination av stadens bekvämligheter och naturens lugn. Här finns närhet till Härlanda Tjärn och Skatås för bad och friluftsliv, charmiga kvarter med caféer och butiker samt goda kommunikationer som snabbt tar dig till centrala Göteborg. Området passar både barnfamiljer och den som vill bo grönt men ändå ha staden runt hörnet.
Viktigt om lägenheten
Lägenheten har
Vad ingår i hyran?
Karta
Hyresvärd
- Göteborgs stads bostadsaktiebolag
- 031-7315000
- info@bostadsbolaget.se
Så bestäms vem som får lägenheten
Läs mer om Boplats förmedlingsregler här.