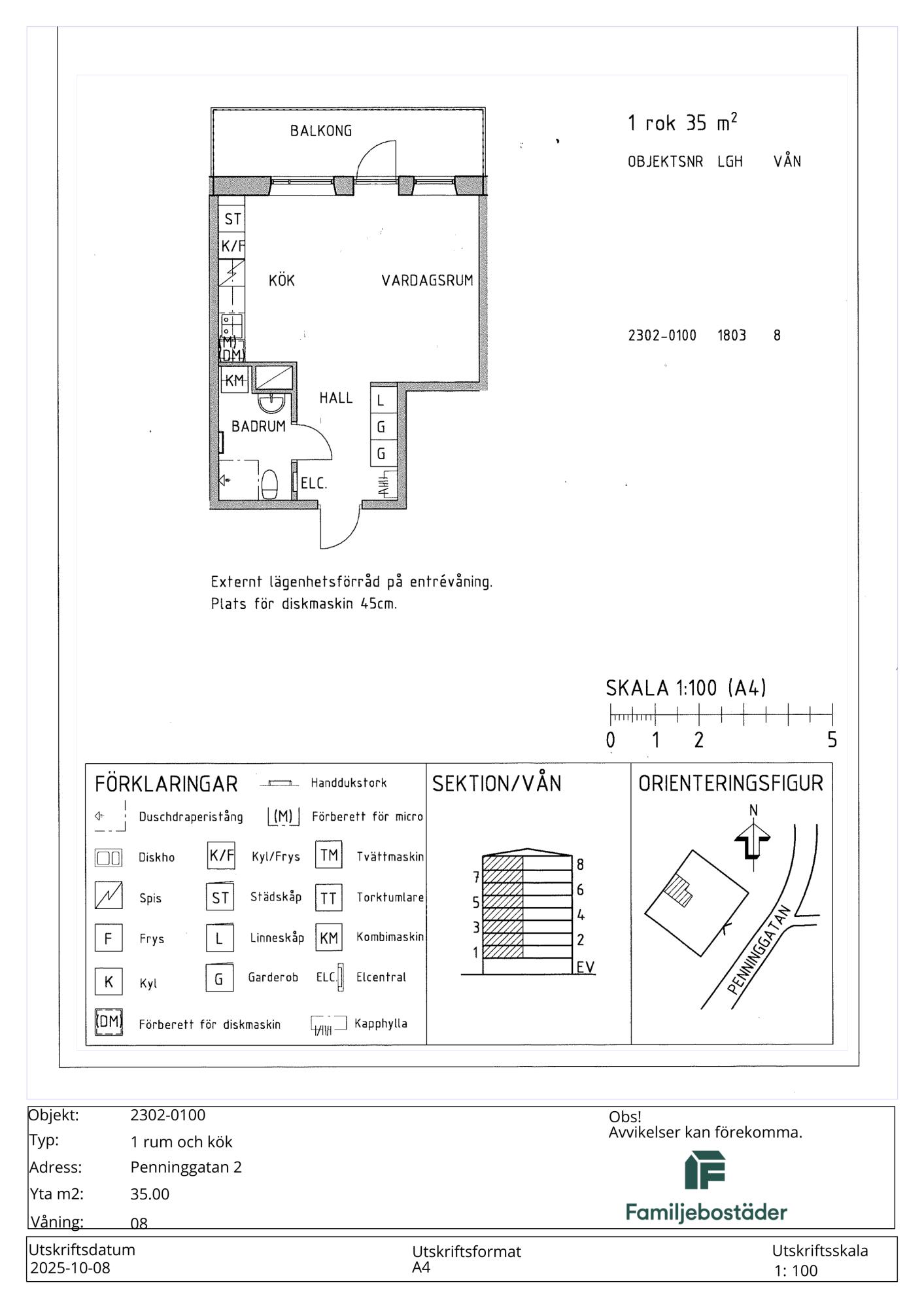
Penninggatan 2
Du har sökt denna lägenhet
Sista dagen att söka denna lägenhet är 12 oktober.
Ta bort min ansökanÄr du säker på att du vill ta bort din ansökan?
Antal rum: 1 rum fördelat på 35.0 m²
Hyra: 6 892 kr/mån
Inflyttning: 1 jan. 2026
Våning: 8 av 8
Anmäl senast: 12 oktober
Tillgänglighetsanpassad lägenhet med få trappsteg
Den här lägenheten kan passa för den som använder rullator eller käpp som hjälpmedel. Lägenheten har max fem trappsteg från entré till lägenhetsdörr.
- Antal personer är högst 3
- Antal vuxna är minst 1
- Antal vuxna är högst 3
- Antal barn är minst 0
- Antal barn är högst 2
- Ålder är minst 18
Rangordning: Ködagar hos Boplats .
Kötider i detta område Under de senaste 12 månaderna har 30 stycken liknande bostäder förmedlats i området. De har förmedlats med en genomsnittlig kötid på 15 år och 100 månader.
Du måste vara inloggad för att ansöka
Hyresvärdens beskrivning
Fastigheten byggdes 2021 och härifrån finns möjligheter att lätt ta sig till city via kollektivtrafik eller cykel. Lägenheterna är målade i ljusa kulörer och har parkettgolv. Köken är öppna och ljusa, ofta i nära anslutning till lägenhetens balkong/uteplats. Badrummen är helkaklade och utrustade med handdukstork samt fullgoda tvättmöjligheter. Förråd finns i/till varje lägenhet samt tillgång till barnvagns- och cykelrum med enklare cykelservice. I samband med inflyttning erbjuds hushållet fria resor med Västtrafik under 90 dagar. Hyran avser 2025 års hyresnivå.
Beskrivning av området
Välkommen till Högsbo! Högsbo är ett genuint 1950-talsområde. De flesta husen är byggda i tegel i tre eller fyra våningar, kompletterade med höga punkthus. Här finns ettor till femrumslägenheter. Området är centralt beläget med bara fem minuters cykelväg till Majorna eller Linnéplatsen. Husen är varsamt inpassade mellan gröna bergsknallar och lummiga träd. På senare år har detta populära område fått tillskott av nybyggda fastigheter. Service och butiker finns nära, på Axel Dahlströms Torg.
Viktigt om lägenheten
Lägenheten har
Vad ingår i hyran?
Karta
Hyresvärd
- Familjebostäder i Göteborg AB
- 031-7316700
- info@familjebostader.se
Så bestäms vem som får lägenheten
Läs mer om Boplats förmedlingsregler här.