Famngatan 6
Du har sökt denna lägenhet
Sista dagen att söka denna lägenhet är 7 oktober.
Ta bort min ansökanÄr du säker på att du vill ta bort din ansökan?
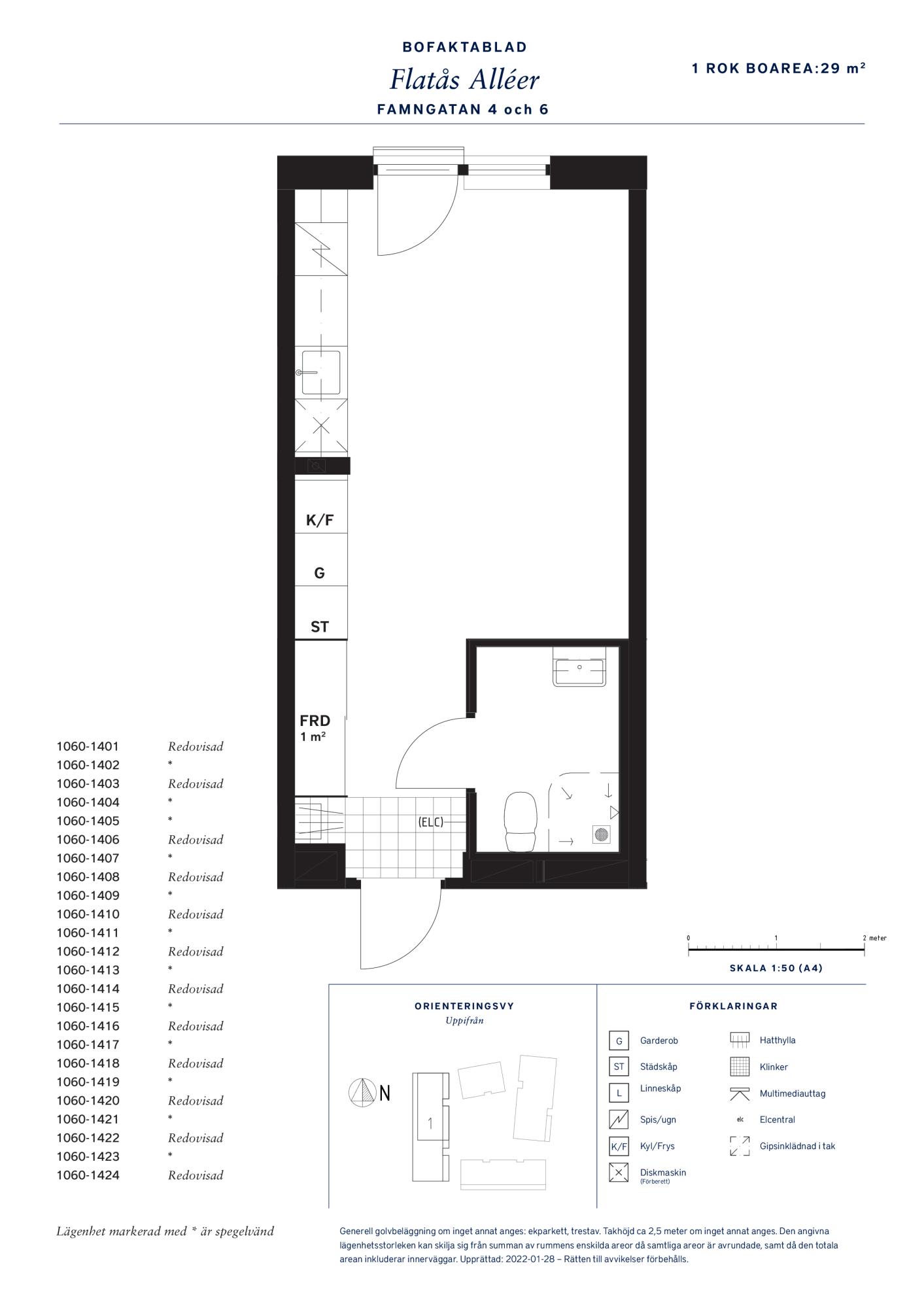
Antal rum: 1 rum fördelat på 29.0 m²
Hyra: 5 318 kr/mån
Inflyttning: 15 dec. 2025
Våning: 4 av 6
Anmäl senast: 7 oktober
Tillgänglighetsanpassad lägenhet med få trappsteg
Den här lägenheten kan passa för den som använder rullator eller käpp som hjälpmedel. Lägenheten har max fem trappsteg från entré till lägenhetsdörr.
- Ålder är minst 18
- Ålder är högst 35
- Ingen i hushållet röker
- Antal personer är högst 2
- Huvudsaklig sysselsättning är något av Arbete, Studier
- Huvudsaklig inkomst är något av Tjänst (lön), Näringsverksamhet, Studiemedel
- Årsinkomst före skatt är minst 174384
Rangordning: Ködagar hos Boplats .
Kötider i detta område Under de senaste 12 månaderna har 30 stycken liknande bostäder förmedlats i området. De har förmedlats med en genomsnittlig kötid på 15 år och 100 månader.
Du måste vara inloggad för att ansöka
Hyresvärdens beskrivning
Välplanerade mindre lägenheter som är utformade för unga vuxna.
Samtliga lägenheter håller en god standard på både materialval och vitvaror. Badrummen är helkaklade och övriga rum är inrett med parkett.
Det finns tvättstugor i fastigheterna. Lägenheterna är förberedda för tvättmaskin och diskmaskin.
Nyproduktion. Hyran avser 2025 års hyresnivå
Hela projektet byggs för att kunna hålla en mycket låg energiförbrukning.
Byggnaderna är klassade med Miljöbyggnad Silver. Detta medverkar till låga energikostnader och mindre klimatpåverkan, vilket följer vår vision om ett klimatsmart tänk som vi eftersträvar i våra projekt.
Beskrivning av området
Flatås Alléer är beläget i stadsdelen Högsbo alldeles i utkanten av Göteborgs centrum.
Intill husen (ca. 50meter) ligger spårvagnshållplatsen, Nymilsgatan, där 3 olika linjer tar dig in till city på några minuter. Med cykel tar det endast 10 minuter till Linnéplatsen med ett stort utbud av trevliga caféer och restauranger. Änggårdsbergen och slottsskogen med dess fantastiska natur ligger även det några minuter från Flatås.
Planskiss
Viktigt om lägenheten
Lägenheten har
Vad ingår i hyran?
Karta
Så bestäms vem som får lägenheten
Läs mer om Boplats förmedlingsregler här.